to
Reset
Houses
Townhouses
Condos
Land
Price
to
SQFT
to
Bdrms
to
Baths
to
Lot
to
Yr Built
to
Sold
Listed within...
Listed at least...
Offer Review
New Construction
Waterfront
Short-Sales
REO
Parking
to
Unit Flr
to
Unit Nbr
Listings
Neighborhoods
Complexes
Developments
Cities
Counties
Zip Codes
Neighborhood · Condo · Development
School District
Zip Code
City
County
Builder
Listing Numbers
Broker LAG
Boundary Lines
Labels
View
Sort
Pending Went pending in 88 days
$459,995
Originally $479,995
5 Bedrooms
2.25 Bathrooms
2,335 Sqft House
Lot 22
New Construction
Built 2025
6,120 Sqft Lot
3-Car Garage
HOA Dues $78 / month
The seller has reached an agreement with a buyer to sell this property. If things go as planned, the sale will become final in the near future. The buyer and seller have agreed on a price but it's not public until the sale closes. The last published list price was $459,995.
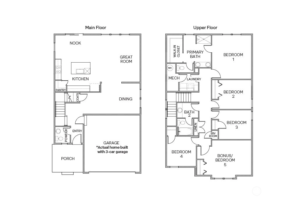
**Red Tag Home** Refrigerator included. Welcome home to the Cambridge with a 3-car garage. This popular floorplan boasts a spacious great room open to a cozy nook and versatile kitchen, including a walk-in pantry and central island with solid quartz countertops. You’ll also appreciate the adjacent dining room with plenty of room for entertaining. Upstairs, relax in your private, spa-like shower with double undermount sinks and walk-in closet. Or enjoy movie night in the expansive bonus room. Three additional bedrooms, a guest bath, and convenient upstairs laundry complete the second floor. Front yard dry scape with drip system & AC. Buyers must register their broker on first visit, including open houses.
Offer Review
No offer review date was specified
Builder
D.R. Horton (DR Horton)
Project
Mallard Meadows
Listing source NWMLS MLS #
2451583
Listed by
Curtis Goodwin, D.R. Horton
Todd Bickel, D.R. Horton
We don't currently have a buyer representative in this area. To be sure that you're getting objective advice, we always suggest buyers work with their own agent, someone who is not affiliated with the seller.
Bedroom & Bathroom Layout
SECOND
BDRM
BDRM
BDRM
BDRM
BDRM
FULL
BATH
¾
BATH
MAIN
½
BATH
Property History
Jan 28, 2026
Went Pending
$459,995
NWMLS #2451583
Jan 27, 2026
Price Reduction arrow_downward
$459,995
NWMLS #2451583
Nov 01, 2025
Listed
$479,995
NWMLS #2451583
More
Listing Details
  • Status
    Pending
  • Last Listed Price
    $459,995
  • Original Price
    $479,995
  • List Date
    November 1, 2025
  • Last Status Change
    January 28, 2026
  • Last Update
    January 28, 2026
  • Days on Market
    96 Days
  • Cumulative DOM
    88 Days
  • Pending Date
    January 28, 2026
  • Days to go Pending
    88
  • $/sqft (Total)
    $197/sqft
  • $/sqft (Finished)
    Same
  • Listing Source
  • MLS Number
    2451583
  • Listing Broker
    Curtis Goodwin
  • Listing Office
    D.R. Horton
Monthly Payment Estimate
  • Principal and Interest
    $2,411 / month
  • HOA
    $78 / month
  • Property Taxes
    / month
  • Homeowners Insurance
    $99 / month
  • TOTAL
    $2,588 / month

  • based on 20% down
    ($91,999)
  • and a
    6.85% Interest Rate
  • About:
    All calculations are estimates only and provided by Mainview LLC. Actual amounts will vary.
House Details
  • Unit #
    22
  • Sqft (Total)
    2,335 sqft
  • Sqft (Finished)
    2,335 sqft
  • Sqft (Unfinished)
    None
  • Property Type
    House
  • Sub Type
    2 Story
  • Bedrooms
    5 Bedrooms
  • Bathrooms
    2.25 Bathrooms
  • Lot
    6,120 sqft Lot
  • Lot Size Source
    Site Plans
  • Lot #
    22
  • Project
    Mallard Meadows
  • Total Stories
    2 stories
  • Basement
    None
  • Sqft Source
    Builder Plans
Property Tax Info
  • Property Taxes
    Unspecified
  • No Senior Exemption
Public Parcel Data & Maps
  • County
    Kittitas County
  • Parcel #
    963705
  • County Website
    Unspecified
  • County Parcel Map
    Unspecified
  • County GIS Map
    Unspecified
  • About
    County links provided by Mainview LLC
Schools
  • School District
    Ellensburg
  • Elementary
    Buyer To Verify
  • Middle
    Morgan Mid
  • High School
    Ellensburg High
HOA
  • HOA Dues
    $78 / month
  • Fees Assessed
    Monthly
  • HOA Dues Include
    Common Area Maintenance
  • HOA Contact
    J & M Management 253-848-1947
  • Management Contact
Community Features
  • Community Features
    CCRs
Parking
  • Covered
    3-Car
  • Types
    Driveway
    Attached Garage
  • Has Garage
    Yes
  • Nbr of Assigned Spaces
    3
Views
  • Territorial
Construction
  • Year Built
    2025
  • New Construction
    Yes
  • Construction State
    Unspecified
  • Home Builder
    D.R. Horton
Cooling
  • Includes
    Central A/C
    Heat Pump
Heating
  • Includes
    Forced Air
    Heat Pump
    HRV/ERV System
Interior
  • Flooring
    Vinyl
    Vinyl Plank
    Carpet
  • Features
    Bath Off Primary
    Double Pane/Storm Window
    Dining Room
    SMART Wired
    Walk-In Closet(s)
    Walk-In Pantry
    Water Heater
Property
  • Lot Features
    Curbs
    Paved
    Sidewalk
  • Site Features
    Cable TV
    Fenced-Partially
    High Speed Internet
    Patio
Appliances
  • Included
    Dishwasher(s)
    Disposal
    Microwave(s)
    Refrigerator(s)
    Stove(s)/Range(s)
Terms
  • 3rd Party Approval Required)
    No
  • Bank Owned (REO)
    No
  • Complex FHA Availability
    Unspecified
  • Potential Terms
    Cash Out
    Conventional
    FHA
    VA Loan
Utilities
  • Energy
    Electric
  • Sewer
    Sewer Connected
  • Water Source
    Public
Additional Info
  • Waterfront
    No
  • Air Conditioning (A/C)
    Yes
  • Buyer Broker's Compensation
    2.5%
  • MLS Area #
    Area 949
  • Number of Photos
    27
  • Last Modification Time
    Wednesday, January 28, 2026 3:35 PM
  • System Listing ID
    5497555
Update Info
  • Pending Or Ctg
    2026-01-28 15:43:28
  • Price Reduction
    2026-01-27 13:38:05
  • First For Sale
    2025-11-01 16:59:58
Listing details based on information submitted to the MLS GRID as of Wednesday, January 28, 2026 3:35 PM. All data is obtained from various sources and may not have been verified by broker or MLS GRID. Supplied Open House Information is subject to change without notice. All information should be independently reviewed and verified for accuracy. Properties may or may not be listed by the office/agent presenting the information.
View
Sort

Sharing

 
Pending January 28, 2026
$459,995  
5 BR    2.25 BA    2,335 SQFT  
NWMLS #2451583. Curtis Goodwin, D.R. Horton
Map
 
Listing information is provided by the listing agent except as follows: BuilderB indicates that our system has grouped this listing under a home builder name that doesn't match the name provided by the listing broker. DevelopmentD indicates that our system has grouped this listing under a development name that doesn't match the name provided by the listing broker.