to
Reset
Houses
Townhouses
Condos
Land
Price
to
SQFT
to
Bdrms
to
Baths
to
Lot
to
Yr Built
to
Sold
Listed within...
Listed at least...
Offer Review
New Construction
Waterfront
Short-Sales
REO
Parking
to
Unit Flr
to
Unit Nbr
Listings
Neighborhoods
Complexes
Developments
Cities
Counties
Zip Codes
Neighborhood · Condo · Development
School District
Zip Code
City
County
Builder
Listing Numbers
Broker LAG
Boundary Lines
Labels
View
Sort
Pending Went pending in 5 days
$839,950
3 Bedrooms
2.25 Bathrooms
1,563 Sqft House
Unit A
New Construction
Built 2025
1,548 Sqft Lot
1-Car Garage
PENDING SALE. This listing went Pending on November 17, 2025

Some pending sales don't become final. Contact Us if this property is really important to you so we can check on it right now. The seller has reached an agreement with a buyer to sell this property. If things go as planned, the sale will become final in the near future. The buyer and seller have agreed on a price but it's not public until the sale closes. The last published list price was $839,950.
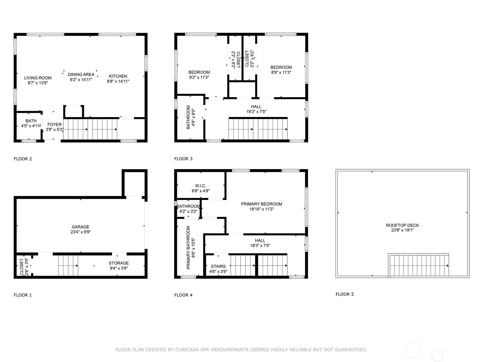
Where Roosevelt, Ravenna & Maple Leaf meet: Discover modern living in “The Triangle.” This brand-new 1,563 sq ft standalone home features 3BR, 2.25BA & a layout built for comfort. The primary suite offers territorial views, a walk-in closet & ensuite bath. The kitchen shines w/ white shaker cabinets, quartz counters & SS appliances. Energy-efficient mini-splits, LVP flooring & rooftop deck enhance daily living. Walk score of 84 puts Project 9, Growler Guys, Mojitos & Macrina Bakery just steps away. Heated garage w/ EV charging + off-street parking. Near Maple Leaf Park & UW and I-5 for easy commuting. **Northwest corner unit with the garage and 1 parking space off the alley.
Offer Review
No offer review date was specified
Builder
Roosevelt Builders LLC
Listing source NWMLS MLS #
2453984
Listed by
Eric Nissen, Real Property Associates
Contact our
Ravenna
Real Estate Lead
Wicklund Real Estate
Phone...
Bedroom & Bathroom Layout
SECOND
BDRM
BDRM
BDRM
FULL
BATH
¾
BATH
MAIN
½
BATH
Property History
Nov 17, 2025
Went Pending
$839,950
NWMLS #2453984
Nov 12, 2025
Listed
$839,950
NWMLS #2453984
Sep 10, 2025
Listed
$885,000
NWMLS #2431623
More
Listing Details
  • Status
    Pending
  • Last Listed Price
    $839,950
  • Original Price
    Same as current
  • List Date
    November 12, 2025
  • Last Status Change
    November 18, 2025
  • Last Update
    November 18, 2025
  • Days on Market
    9 Days
  • Cumulative DOM
    5 Days
  • Pending Date
    November 17, 2025
  • Days to go Pending
    5
  • $/sqft (Total)
    $537/sqft
  • $/sqft (Finished)
    $537/sqft
  • Listing Source
  • MLS Number
    2453984
  • Listing Broker
    Eric Nissen
  • Listing Office
    Real Property Associates
Monthly Payment Estimate
  • Principal and Interest
    $4,403 / month
  • Property Taxes
    $328 / month
  • Homeowners Insurance
    $166 / month
  • TOTAL
    $4,897 / month

  • based on 20% down
    ($167,990)
  • and a
    6.85% Interest Rate
  • About:
    All calculations are estimates only and provided by Mainview LLC. Actual amounts will vary.
House Details
  • Unit #
    A
  • Sqft (Total)
    1,563 sqft
  • Sqft (Finished)
    1,563 sqft
  • Sqft (Unfinished)
    None
  • Property Type
    House
  • Sub Type
    Multi Level
  • Bedrooms
    3 Bedrooms
  • Bathrooms
    2.25 Bathrooms
  • Lot
    1,548 sqft Lot
  • Lot Size Source
    Plat map
  • Lot #
    Unspecified
  • Project
    Unspecified
  • Total Stories
    Unspecified
  • Basement
    None
  • Sqft Source
    Architectural Plans
Property Tax Info
  • 2025 Property Taxes
    $3,941 / year
  • No Senior Exemption
Public Parcel Data & Maps
Schools
  • School District
    Seattle
  • Elementary
    Buyer To Verify
  • Middle
    Buyer To Verify
  • High School
    Buyer To Verify
HOA
  • HOA Dues
    Unspecified
  • Fees Assessed
    Unspecified
  • HOA Dues Include
    Unspecified
  • HOA Contact
    Unspecified
  • Management Contact
Parking
  • Covered
    1-Car
  • Types
    Attached Garage
  • Has Garage
    Yes
  • Nbr of Assigned Spaces
    1
Views
  • Territorial
Construction
  • Year Built
    2025
  • New Construction
    Yes
  • Construction State
    Unspecified
  • Home Builder
    Roosevelt Builders LLC
Cooling
  • Includes
    Ductless
Heating
  • Includes
    Ductless
Interior
  • Flooring
    Vinyl Plank
Property
Appliances
  • Included
    Dishwasher(s)
    Disposal
    Microwave(s)
    Refrigerator(s)
    Stove(s)/Range(s)
Terms
  • 3rd Party Approval Required)
    No
  • Bank Owned (REO)
    No
  • Complex FHA Availability
    Unspecified
  • Potential Terms
    Cash Out
    Conventional
    FHA
    VA Loan
Utilities
  • Energy
    Electric
  • Sewer
    Sewer Connected
  • Water Source
    Public
Additional Info
  • Waterfront
    No
  • Air Conditioning (A/C)
    Yes
  • Buyer Broker's Compensation
    2.5%
  • MLS Area #
    Area 710
  • Number of Photos
    38
  • Last Modification Time
    Monday, November 17, 2025 11:40 PM
  • System Listing ID
    5499893
Update Info
  • Pending Or Ctg
    2025-11-18 03:03:15
  • First For Sale
    2025-11-12 12:29:21
Listing details based on information submitted to the MLS GRID as of Monday, November 17, 2025 11:40 PM. All data is obtained from various sources and may not have been verified by broker or MLS GRID. Supplied Open House Information is subject to change without notice. All information should be independently reviewed and verified for accuracy. Properties may or may not be listed by the office/agent presenting the information.
View
Sort

Sharing

 
Pending November 17, 2025
$839,950  
3 BR    2.25 BA    1,563 SQFT  
NWMLS #2453984. Eric Nissen, Real Property Associates
Map
 
Listing information is provided by the listing agent except as follows: BuilderB indicates that our system has grouped this listing under a home builder name that doesn't match the name provided by the listing broker. DevelopmentD indicates that our system has grouped this listing under a development name that doesn't match the name provided by the listing broker.