to
Reset
Houses
Townhouses
Condos
Land
Price
to
SQFT
to
Bdrms
to
Baths
to
Lot
to
Yr Built
to
Sold
Listed within...
Listed at least...
Offer Review
New Construction
Waterfront
Short-Sales
REO
Parking
to
Unit Flr
to
Unit Nbr
Listings
Neighborhoods
Complexes
Developments
Cities
Counties
Zip Codes
Neighborhood · Condo · Development
School District
Zip Code
City
County
Builder
Listing Numbers
Broker LAG
Boundary Lines
Labels
View
Sort
Pending Went pending in 78 days
$585,000
Originally $610,000
2 Bedrooms
2.25 Bathrooms
1,420 Sqft Townhome
Built 2008
2,007 Sqft Lot
2-Car Garage
HOA Dues $378 / month
PENDING SALE. This listing went Pending on January 29, 2026

Some pending sales don't become final. Contact Us if this property is really important to you so we can check on it right now. The seller has reached an agreement with a buyer to sell this property. If things go as planned, the sale will become final in the near future. The buyer and seller have agreed on a price but it's not public until the sale closes. The last published list price was $585,000.
NEW & IMPROVED PRICE! This light-filled, end-unit townhome lives larger than expected! The open main level is designed for connection, with walls of windows, a dual-sided gas fireplace, and a spacious kitchen featuring a gas range, island, and balcony that extends your living space outdoors. Upstairs, vaulted ceilings, new carpet, and oversized bedrooms provide a peaceful retreat, while the bonus nook offers flexibility for work-from-home life or a cozy reading corner. The lower-level tandem garage has HVAC, closet space, and a patio, making it ideal for a future bedroom or den addition. Low HOA dues include the roof, paint, and lawn service, giving you more time to enjoy the best of West Seattle and less time worrying about upkeep!
Offer Review
No offer review date was specified
Listing source NWMLS MLS #
2454340
Listed by
Samantha Lamping, Coldwell Banker Bain
Contact our
West Seattle
Real Estate Lead
John L. Scott
Phone...
Bedroom & Bathroom Layout
SECOND
BDRM
BDRM
FULL
BATH
¾
BATH
MAIN
½
BATH
Property History
Jan 29, 2026
Went Pending
$585,000
NWMLS #2454340
Jan 07, 2026
Price Reduction arrow_downward
$585,000
NWMLS #2454340
Nov 12, 2025
Listed
$610,000
NWMLS #2454340
Feb 13, 2020
Sold
$518,000
More
Listing Details
  • Status
    Pending
  • Last Listed Price
    $585,000
  • Original Price
    $610,000
  • List Date
    November 12, 2025
  • Last Status Change
    January 29, 2026
  • Last Update
    January 29, 2026
  • Days on Market
    95 Days
  • Cumulative DOM
    78 Days
  • Pending Date
    January 29, 2026
  • Days to go Pending
    78
  • $/sqft (Total)
    $412/sqft
  • $/sqft (Finished)
    $412/sqft
  • Listing Source
  • MLS Number
    2454340
  • Listing Broker
    Samantha Lamping
  • Listing Office
    Coldwell Banker Bain
Monthly Payment Estimate
  • Principal and Interest
    $3,067 / month
  • HOA
    $378 / month
  • Property Taxes
    $502 / month
  • Homeowners Insurance
    $120 / month
  • TOTAL
    $4,068 / month

  • based on 20% down
    ($117,000)
  • and a
    6.85% Interest Rate
  • About:
    All calculations are estimates only and provided by Mainview LLC. Actual amounts will vary.
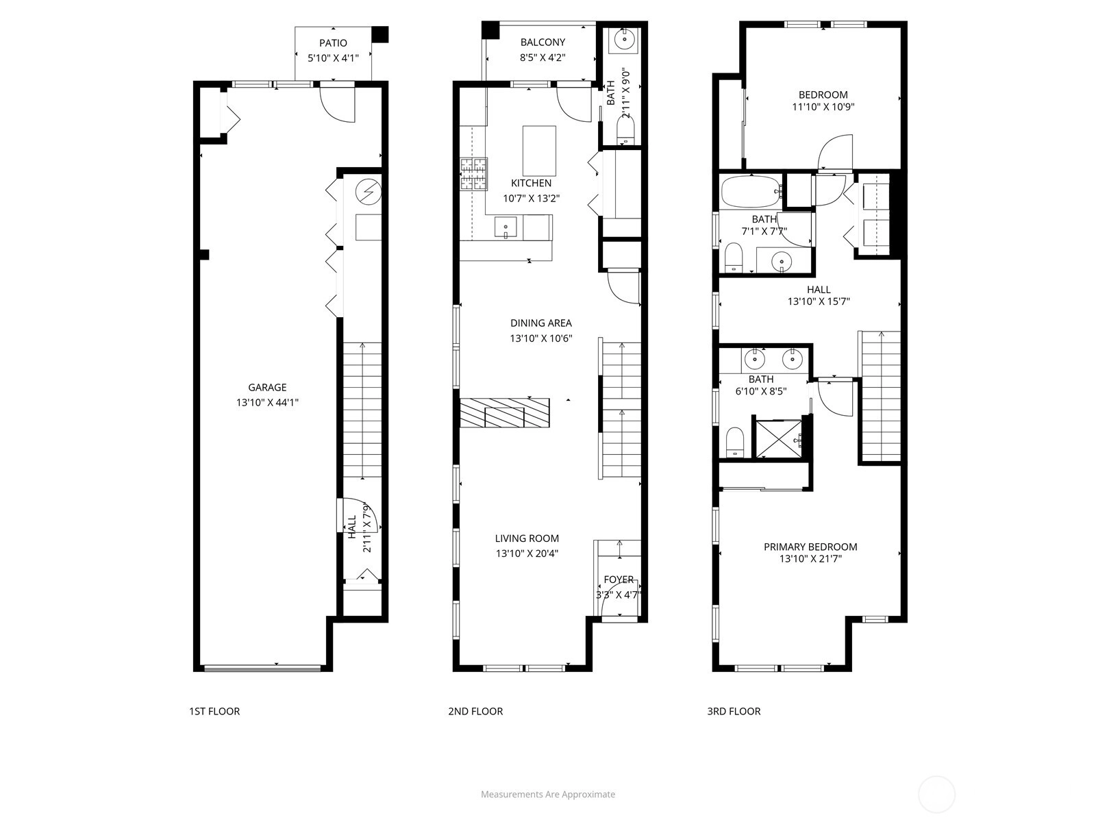
Townhouse Details
  • Unit Floor
    Unspecified
  • Sqft (Total)
    1,420 sqft
  • Sqft (Finished)
    1,420 sqft
  • Sqft (Unfinished)
    None
  • Property Type
    Townhome
  • Sub Type
    Townhouse
  • Bedrooms
    2 Bedrooms
  • Bathrooms
    2.25 Bathrooms
  • Lot
    2,007 sqft Lot
  • Lot Size Source
    KCR
  • Lot #
    14
  • Project
    SYLVAN RIDGE TOWNHOMES
  • Total Stories
    Unspecified
  • Sqft Source
    KCR
Property Tax Info
  • 2025 Property Taxes
    $6,029 / year
  • No Senior Exemption
Public Parcel Data & Maps
Schools
  • School District
    Seattle
  • Elementary
    Buyer To Verify
  • Middle
    Buyer To Verify
  • High School
    Buyer To Verify
HOA
  • HOA Dues
    $378 / month
  • Fees Assessed
    Monthly
  • HOA Dues Include
    Common Area Maintenance
    Lawn Service
    Road Maintenance
    See Remarks
  • HOA Contact
    Cynthia Wirtz - Trestle Property Management 425-201-1430
  • Management Contact
Community Features
  • Community Features
    CCRs
Building
  • Name
    SYLVAN RIDGE TOWNHOMES
  • Units in Complex
    Unspecified
  • Units in Building
    Unspecified
  • Stories in Building
    Unspecified
Parking
  • Covered
    2-Car
  • Types
    Driveway
    Attached Garage
    Off Street
  • Has Garage
    Yes
  • Nbr of Assigned Spaces
    2
Views
  • Territorial
Construction
  • Year Built
    2008
  • Home Builder
    Unspecified
Cooling
  • Includes
    Central A/C
    Forced Air
Heating
  • Includes
    Forced Air
Interior
  • Flooring
    Bamboo/Cork
    Ceramic Tile
    Laminate
    Carpet
  • Features
    Bath Off Primary
    Double Pane/Storm Window
    Dining Room
    Fireplace
    Vaulted Ceiling(s)
    Water Heater
Property
  • Lot Features
    Curbs
    Paved
    Sidewalk
  • Site Features
    Deck
    Gas Available
    High Speed Internet
    Patio
Appliances
  • Included
    Dishwasher(s)
    Disposal
    Dryer(s)
    Microwave(s)
    Refrigerator(s)
    Stove(s)/Range(s)
    Washer(s)
Terms
  • 3rd Party Approval Required)
    No
  • Bank Owned (REO)
    No
  • Complex FHA Availability
    Unspecified
  • Potential Terms
    Cash Out
    Conventional
    FHA
    VA Loan
Utilities
  • Energy
    Electric
    Natural Gas
  • Sewer
    Sewer Connected
  • Water Source
    Public
Additional Info
  • Waterfront
    No
  • Air Conditioning (A/C)
    Yes
  • Buyer Broker's Compensation
    2.5%
  • MLS Area #
    Area 140
  • Number of Photos
    33
  • Last Modification Time
    Thursday, January 29, 2026 2:27 PM
  • System Listing ID
    5499994
Update Info
  • Pending Or Ctg
    2026-01-29 14:34:12
  • Price Reduction
    2026-01-07 12:28:34
  • First For Sale
    2025-11-12 16:59:35
Listing details based on information submitted to the MLS GRID as of Thursday, January 29, 2026 2:27 PM. All data is obtained from various sources and may not have been verified by broker or MLS GRID. Supplied Open House Information is subject to change without notice. All information should be independently reviewed and verified for accuracy. Properties may or may not be listed by the office/agent presenting the information.
View
Sort

Sharing

 
Pending January 29, 2026
$585,000  
2 BR    2.25 BA    1,420 SQFT  
NWMLS #2454340. Samantha Lamping, Coldwell Banker Bain
Map
 
Listing information is provided by the listing agent except as follows: BuilderB indicates that our system has grouped this listing under a home builder name that doesn't match the name provided by the listing broker. DevelopmentD indicates that our system has grouped this listing under a development name that doesn't match the name provided by the listing broker.