to
Reset
Houses
Townhouses
Condos
Land
Price
to
SQFT
to
Bdrms
to
Baths
to
Lot
to
Yr Built
to
Sold
Listed within...
Listed at least...
Offer Review
New Construction
Waterfront
Short-Sales
REO
Parking
to
Unit Flr
to
Unit Nbr
Listings
Neighborhoods
Complexes
Developments
Cities
Counties
Zip Codes
Neighborhood · Condo · Development
School District
Zip Code
City
County
Builder
Listing Numbers
Broker LAG
Boundary Lines
Labels
View
Sort
Pending Went pending in 15 days
$359,000
3 Bedrooms
2 Bathrooms
1,240 Sqft House
Built 2003
6,000 Sqft Lot
2-Car Garage
HOA Dues $21 / month
The seller has reached an agreement with a buyer to sell this property. If things go as planned, the sale will become final in the near future. The buyer and seller have agreed on a price but it's not public until the sale closes. The last published list price was $359,000.
Welcome to this 3 bed, 2 bath, one-level home in a well established, peaceful neighborhood. Enjoy an open, light-filled layout w/ modern finishes & great flow. The kitchen offers ample counter space & cabinetry, with an open view of the dining & living room. The spacious primary suite features two closets & an ensuite with dual vanity. Two additional sizable bedrooms share a full bath. Recent updates include new LVP in the living areas and hallway, fresh interior & exterior paint, SS appliances, & updated light fixtures. Great outdoor space includes a deck, fully fenced yard, u/g sprinklers, & attached 2-car garage, plus driveway parking for three vehicles. Neighborhood park nearby. Close to shopping & schools. This home is move-in ready!
Offer Review
No offer review date was specified
Listing source NWMLS MLS #
2465896
Listed by
Marli Jerald, eXp Realty
We don't currently have a buyer representative in this area. To be sure that you're getting objective advice, we always suggest buyers work with their own agent, someone who is not affiliated with the seller.
Bedroom & Bathroom Layout
MAIN
BDRM
BDRM
BDRM
FULL
BATH
FULL
BATH
Property History
Jan 23, 2026
Went Pending
$359,000
NWMLS #2465896
Jan 08, 2026
Listed
$359,000
NWMLS #2465896
Apr 28, 2019
Sold
$237,000
NWMLS #1701594 Annualized 14.5% / yr
Aug 28, 2016
Sold
$165,000
More
Listing Details
  • Status
    Pending
  • Last Listed Price
    $359,000
  • Original Price
    Same as current
  • List Date
    January 8, 2026
  • Last Status Change
    January 23, 2026
  • Last Update
    January 23, 2026
  • Days on Market
    28 Days
  • Cumulative DOM
    15 Days
  • Pending Date
    January 23, 2026
  • Days to go Pending
    15
  • $/sqft (Total)
    $290/sqft
  • $/sqft (Finished)
    $290/sqft
  • Listing Source
  • MLS Number
    2465896
  • Listing Broker
    Marli Jerald
  • Listing Office
    eXp Realty
Monthly Payment Estimate
  • Principal and Interest
    $1,882 / month
  • HOA
    $21 / month
  • Property Taxes
    $300 / month
  • Homeowners Insurance
    $87 / month
  • TOTAL
    $2,289 / month

  • based on 20% down
    ($71,800)
  • and a
    6.85% Interest Rate
  • About:
    All calculations are estimates only and provided by Mainview LLC. Actual amounts will vary.
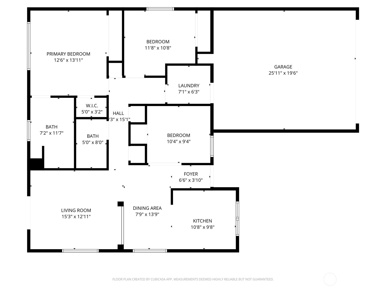
House Details
  • Sqft (Total)
    1,240 sqft
  • Sqft (Finished)
    1,240 sqft
  • Sqft (Unfinished)
    None
  • Property Type
    House
  • Sub Type
    1 Story
  • Bedrooms
    3 Bedrooms
  • Bathrooms
    2 Bathrooms
  • Lot
    6,000 sqft Lot
  • Lot Size Source
    Public Records
  • Lot #
    9
  • Project
    Autumn Meadows
  • Total Stories
    1 story
  • Basement
    None
  • Sqft Source
    Public Records
Property Tax Info
  • 2025 Property Taxes
    $3,595 / year
  • No Senior Exemption
Public Parcel Data & Maps
  • County
    Walla Walla County
  • Parcel #
    350736970309
  • County Website
    Unspecified
  • County Parcel Map
    Unspecified
  • County GIS Map
    Unspecified
  • About
    County links provided by Mainview LLC
Schools
  • School District
    College Place
  • Elementary
    Davis Elem
  • Middle
    John Sager Mid
  • High School
    College Place High School
HOA
  • HOA Dues
    $21 / month
  • Fees Assessed
    Annually
  • HOA Dues Include
    Unspecified
  • HOA Contact
    Unspecified
  • Management Contact
Community Features
  • Community Features
    CCRs
    Park
Parking
  • Covered
    2-Car
  • Types
    Driveway
    Attached Garage
  • Has Garage
    Yes
  • Nbr of Assigned Spaces
    2
Construction
  • Year Built
    2003
  • Home Builder
    Hayden Homes
Cooling
  • Includes
    Central A/C
    Forced Air
Heating
  • Includes
    Forced Air
Interior
  • Flooring
    Ceramic Tile
    Laminate
    Carpet
  • Features
    Bath Off Primary
    Ceiling Fan(s)
    Double Pane/Storm Window
    French Doors
    Walk-In Closet(s)
    Water Heater
Property
  • Lot Features
    Paved
    Sidewalk
  • Site Features
    Cable TV
    Deck
    Fenced-Fully
    Gas Available
    High Speed Internet
    Sprinkler System
Appliances
  • Included
    Dishwasher(s)
    Disposal
    Dryer(s)
    Microwave(s)
    Refrigerator(s)
    Stove(s)/Range(s)
    Washer(s)
Terms
  • 3rd Party Approval Required)
    No
  • Bank Owned (REO)
    No
  • Complex FHA Availability
    Unspecified
  • Potential Terms
    Cash Out
    Conventional
    FHA
    State Bond
    USDA Loan
    VA Loan
Utilities
  • Energy
    Natural Gas
  • Sewer
    Sewer Connected
  • Water Source
    Public
Additional Info
  • Waterfront
    No
  • Air Conditioning (A/C)
    Yes
  • Buyer Broker's Compensation
    2.5%
  • MLS Area #
    Area 933
  • Number of Photos
    35
  • Last Modification Time
    Friday, January 23, 2026 12:58 PM
  • System Listing ID
    5508736
Update Info
  • Pending Or Ctg
    2026-01-23 13:17:11
  • First For Sale
    2026-01-08 09:40:08
Listing details based on information submitted to the MLS GRID as of Friday, January 23, 2026 12:58 PM. All data is obtained from various sources and may not have been verified by broker or MLS GRID. Supplied Open House Information is subject to change without notice. All information should be independently reviewed and verified for accuracy. Properties may or may not be listed by the office/agent presenting the information.
View
Sort

Sharing

 
Pending January 23, 2026
$359,000  
3 BR    2 BA    1,240 SQFT  
NWMLS #2465896. Marli Jerald, eXp Realty
Map
 
Listing information is provided by the listing agent except as follows: BuilderB indicates that our system has grouped this listing under a home builder name that doesn't match the name provided by the listing broker. DevelopmentD indicates that our system has grouped this listing under a development name that doesn't match the name provided by the listing broker.