to
Reset
Houses
Townhouses
Condos
Land
Price
to
SQFT
to
Bdrms
to
Baths
to
Lot
to
Yr Built
to
Sold
Listed within...
Listed at least...
Offer Review
New Construction
Waterfront
Short-Sales
REO
Parking
to
Unit Flr
to
Unit Nbr
Listings
Neighborhoods
Complexes
Developments
Cities
Counties
Zip Codes
Neighborhood · Condo · Development
School District
Zip Code
City
County
Builder
Listing Numbers
Broker LAG
Boundary Lines
Labels
View
Sort
Pending Went pending in 78 days
$694,950
Originally $699,950
5 Bedrooms
3 Bathrooms
3,134 Sqft House
New Construction
Built 2026
6,014 Sqft Lot
2-Car Garage
HOA Dues $69 / month
PENDING SALE. This listing went Pending on March 30, 2026

Some pending sales don't become final. Contact Us if this property is really important to you so we can check on it right now. The seller has reached an agreement with a buyer to sell this property. If things go as planned, the sale will become final in the near future. The buyer and seller have agreed on a price but it's not public until the sale closes. The last published list price was $694,950.
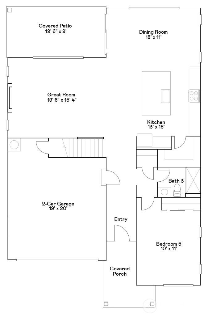
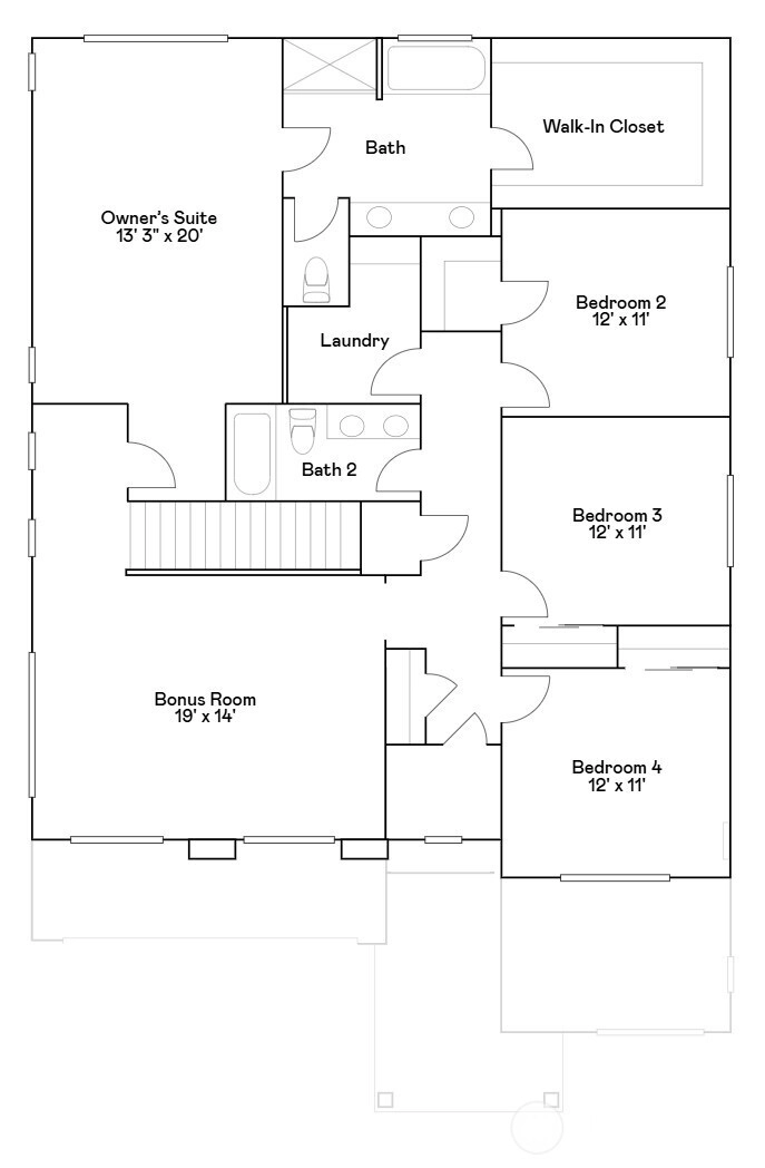
Welcome to the move-in ready Meridian II at McCormick Trails by Lennar! Live at McCormick to enjoy a vibrant community with parks, trails, a golf course, and future conveniences like shopping and dining just minutes from home. Enjoy an open concept design that seamlessly connects the gourmet kitchen, expansive pantry, spacious great room and dining area. A versatile first-floor bedroom and full bath add convenience. Upstairs discover a spacious loft offering additional living space, surrounded by four bedrooms, including the luxurious owner’s suite with a spa-inspired bathroom and walk-in closet. Outside is a large 30 foot backyard, great for outdoor activities. With Lennar’s signature Everything’s Included®, you’ll find stainless steel appliances, quartz countertops, shaker-style cabinetry and more—all at no extra cost. Buyer’s broker must be registered during the customer’s first interaction with a Lennar Associate to be eligible for compensation.
Offer Review
No offer review date was specified
Builder
Project
Lennar at McCormick Trails
Listing source NWMLS MLS #
2467262
Listed by
Sarah Carr, Lennar Sales Corp.
Eugene Shevchuk, Lennar Sales Corp.
Contact our
Port Orchard
Real Estate Lead
My Kitsap Homes, LLC
Phone...
Bedroom & Bathroom Layout
SECOND
BDRM
BDRM
BDRM
BDRM
FULL
BATH
FULL
BATH
MAIN
BDRM
FULL
BATH
Property History
Mar 30, 2026
Went Pending
$694,950
NWMLS #2467262
Mar 16, 2026
Price Reduction arrow_downward
$699,950
NWMLS #2467262
Jan 26, 2026
Price Increase arrow_upward
$704,950
NWMLS #2467262
Jan 11, 2026
Listed
$699,950
NWMLS #2467262
Dec 01, 2025
Listed
$699,950
NWMLS #2458365
More
Listing Details
  • Status
    Pending
  • Last Listed Price
    $694,950
  • Original Price
    $699,950
  • List Date
    January 11, 2026
  • Last Status Change
    March 30, 2026
  • Last Update
    March 30, 2026
  • Days on Market
    107 Days
  • Cumulative DOM
    78 Days
  • Pending Date
    March 30, 2026
  • Days to go Pending
    78
  • $/sqft (Total)
    $222/sqft
  • $/sqft (Finished)
    $222/sqft
  • Listing Source
  • MLS Number
    2467262
  • Listing Broker
    Sarah Carr
  • Listing Office
    Lennar Sales Corp.
Monthly Payment Estimate
  • Principal and Interest
    $3,643 / month
  • HOA
    $69 / month
  • Property Taxes
    $511 / month
  • Homeowners Insurance
    $140 / month
  • TOTAL
    $4,363 / month

  • based on 20% down
    ($138,990)
  • and a
    6.85% Interest Rate
  • About:
    All calculations are estimates only and provided by Mainview LLC. Actual amounts will vary.
House Details
  • Sqft (Total)
    3,134 sqft
  • Sqft (Finished)
    3,134 sqft
  • Sqft (Unfinished)
    None
  • Property Type
    House
  • Sub Type
    2 Story
  • Bedrooms
    5 Bedrooms
  • Bathrooms
    3 Bathrooms
  • Lot
    6,014 sqft Lot
  • Lot Size Source
    Buider
  • Lot #
    452
  • Project
    Lennar at McCormick Trails
  • Total Stories
    2 stories
  • Basement
    None
  • Sqft Source
    Builder Floor Plan
Property Tax Info
  • 2026 Property Taxes
    $6,133 / year
  • No Senior Exemption
Public Parcel Data & Maps
Schools
  • School District
    South Kitsap
  • Elementary
    Sunnyslope Elem
  • Middle
    Cedar Heights Jh
  • High School
    So. Kitsap High
HOA
  • HOA Dues
    $69 / month
  • Fees Assessed
    Monthly
  • HOA Dues Include
    Unspecified
  • HOA Contact
    McCormick Woods HOA 360-895-3800
  • Management Contact
Community Features
  • Community Features
    CCRs
Parking
  • Covered
    2-Car
  • Types
    Attached Garage
  • Has Garage
    Yes
Construction
  • Year Built
    2026
  • New Construction
    Yes
  • Construction State
    Unspecified
  • Home Builder
    Lennar
Cooling
  • Includes
    90%+ High Efficiency
    Central Air
    Forced Air
Heating
  • Includes
    90%+ High Efficiency
    Forced Air
    Heat Pump
Interior
  • Flooring
    Laminate
    See Remarks
    Carpet
  • Features
    Fireplace
    High Tech Cabling
Property
  • Lot Features
    Corner Lot
    Curbs
    Paved
    Sidewalk
  • Site Features
    Athletic Court
    Electric Car Charging
    Fenced-Fully
    High Speed Internet
    Patio
Appliances
  • Included
    Dishwasher
    Disposal
    Microwave
    Refrigerator
    Stove(s)/Range(s)
Terms
  • 3rd Party Approval Required)
    No
  • Bank Owned (REO)
    No
  • Complex FHA Availability
    Unspecified
  • Potential Terms
    Cash
    Conventional
    FHA
    See Remarks
    USDA Loan
    VA Loan
Utilities
  • Energy
    Electric
  • Sewer
    Sewer Connected
  • Water Source
    Public
Additional Info
  • Waterfront
    No
  • Air Conditioning (A/C)
    Yes
  • Buyer Broker's Compensation
    2.5%
  • MLS Area #
    Area 141
  • Number of Photos
    28
  • Last Modification Time
    Monday, March 30, 2026 3:57 PM
  • System Listing ID
    5509617
Update Info
  • Price Reduction
    2026-03-30 16:00:32
  • Pending Or Ctg
    2026-03-30 16:00:32
  • Price Increase
    2026-01-26 17:04:31
  • First For Sale
    2026-01-11 14:45:00
Listing details based on information submitted to the MLS GRID as of Monday, March 30, 2026 3:57 PM. All data is obtained from various sources and may not have been verified by broker or MLS GRID. Supplied Open House Information is subject to change without notice. All information should be independently reviewed and verified for accuracy. Properties may or may not be listed by the office/agent presenting the information.
View
Sort

Sharing

 
Pending March 30, 2026
$694,950  
5 BR    3 BA    3,134 SQFT  
NWMLS #2467262. Sarah Carr, Lennar Sales Corp.
Map
 
Listing information is provided by the listing agent except as follows: BuilderB indicates that our system has grouped this listing under a home builder name that doesn't match the name provided by the listing broker. DevelopmentD indicates that our system has grouped this listing under a development name that doesn't match the name provided by the listing broker.