to
Reset
Houses
Townhouses
Condos
Land
Price
to
SQFT
to
Bdrms
to
Baths
to
Lot
to
Yr Built
to
Sold
Listed within...
Listed at least...
Offer Review
New Construction
Waterfront
Short-Sales
REO
Parking
to
Unit Flr
to
Unit Nbr
Listings
Neighborhoods
Complexes
Developments
Cities
Counties
Zip Codes
Neighborhood · Condo · Development
School District
Zip Code
City
County
Builder
Listing Numbers
Broker LAG
Boundary Lines
Labels
View
Sort
Contingent Went pending in 29 days
$719,000
Originally $749,000
3 Bedrooms
2.25 Bathrooms
1,746 Sqft House
New Construction
Built 2026
4,997 Sqft Lot
2-Car Garage
PENDING SALE. This listing went Contingent on February 28, 2026

Some pending sales don't become final. Contact Us if this property is really important to you so we can check on it right now. The seller has reached an agreement with a buyer to sell this property. If things go as planned, the sale will become final in the near future. The buyer and seller have agreed on a price but it's not public until the sale closes. The last published list price was $719,000.
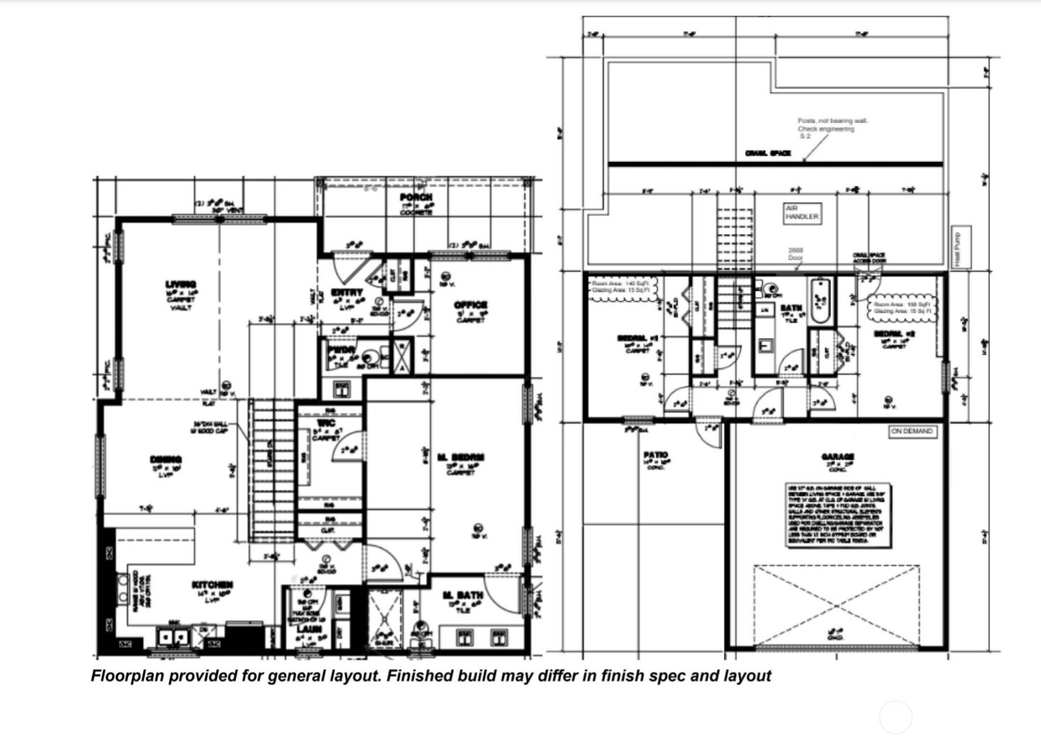
Thoughtfully designed new construction by Alliance Properties. This bright home lays out almost like a rambler, with everything you would need on one level (laundry, great room, kitchen, office). Enjoy the view of protected open space from your kitchen featuring a large quartz peninsula, custom tiled back-splash with tile work wrapping the window, on-demand hot water tap, upgraded hood, and natural gas cook top. Main floor primary bedroom boasts a custom tiled shower, double under-mount sinks, large walk-in closet, and high tech cabling. There are an additional two bedrooms and shared bath off of the lower-level garage. Shared bath includes soaker tub/shower combo with tile all the way to the ceiling and a long cabinet run with soft close hinges. Spacious 2-car garage comes pre-wired for EV. Not included in the square footage is a massive dry and wired "crawlspace" that reads more like a large secure storage locker. Accessed from the outside of the home, there is room for bikes, kayaks, and more. OR look into the potential to finish in the future. Home located next to trail system. Solar included.
Offer Review
No offer review date was specified
Builder
Alliance Properties 2000 LLC (Alliance Properties 2000)
Project
Village at King Mountain, Phase 2, Division 1B
Listing source NWMLS MLS #
2473316
Listed by
Beth McCall, Alliance Properties 2000 LLC
Travis W. Black, Alliance Properties 2000 LLC
Contact our
Bellingham
Real Estate Lead
Buck Real Estate
Phone...
Bedroom & Bathroom Layout
MAIN
BDRM
FULL
BATH
½
BATH
LOWER
BDRM
BDRM
¾
BATH
Property History
Feb 28, 2026
Went Contingent
$719,000
NWMLS #2473316
Feb 26, 2026
Price Reduction arrow_downward
$719,000
NWMLS #2473316
Jan 30, 2026
Listed
$749,000
NWMLS #2473316
More
Listing Details
  • Status
    Contingent
  • Last Listed Price
    $719,000
  • Original Price
    $749,000
  • List Date
    January 30, 2026
  • Last Status Change
    March 1, 2026
  • Last Update
    March 1, 2026
  • Days on Market
    45 Days
  • Cumulative DOM
    29 Days
  • Contingent Date
    February 28, 2026
  • Days to go Contingent
    29
  • $/sqft (Total)
    $412/sqft
  • $/sqft (Finished)
    $412/sqft
  • Listing Source
  • MLS Number
    2473316
  • Listing Broker
    Beth McCall
  • Listing Office
    Alliance Properties 2000 LLC
Monthly Payment Estimate
  • Principal and Interest
    $3,769 / month
  • Property Taxes
    / month
  • Homeowners Insurance
    $144 / month
  • TOTAL
    $3,913 / month

  • based on 20% down
    ($143,800)
  • and a
    6.85% Interest Rate
  • About:
    All calculations are estimates only and provided by Mainview LLC. Actual amounts will vary.
House Details
  • Sqft (Total)
    1,746 sqft
  • Sqft (Finished)
    1,746 sqft
  • Sqft (Unfinished)
    None
  • Property Type
    House
  • Sub Type
    1 Story + Basement
  • Bedrooms
    3 Bedrooms
  • Bathrooms
    2.25 Bathrooms
  • Lot
    4,997 sqft Lot
  • Lot Size Source
    Plat
  • Lot #
    17
  • Project
    Village at King Mountain, Phase 2, Division 1B
  • Total Stories
    2 stories
  • Basement
    Daylight
    Finished
  • Sqft Source
    Blueprints
Property Tax Info
  • Property Taxes
    Unspecified
  • No Senior Exemption
Public Parcel Data & Maps
  • County
    Whatcom County
  • Parcel #
    LOT17
  • County Website
    Unspecified
  • County Parcel Map
    Unspecified
  • County GIS Map
    Unspecified
  • About
    County links provided by Mainview LLC
Schools
  • School District
    Bellingham
  • Elementary
    Cordata Elem
  • Middle
    Shuksan Mid
  • High School
    Squalicum High
HOA
  • HOA Dues
    Unspecified
  • Fees Assessed
    Unspecified
  • HOA Dues Include
    See Remarks
  • HOA Contact
    Unspecified
  • Management Contact
Community Features
  • Community Features
    Park
    Playground
    Trail(s)
Parking
  • Covered
    2-Car
  • Types
    Attached Garage
  • Has Garage
    Yes
  • Nbr of Assigned Spaces
    2
Views
  • Territorial
Construction
  • Year Built
    2026
  • New Construction
    Yes
  • Construction State
    Unspecified
  • Home Builder
    Alliance Properties 2000 LLC
Cooling
  • Includes
    Heat Pump
Heating
  • Includes
    Heat Pump
    High Efficiency (Unspecified)
Interior
  • Flooring
    Ceramic Tile
    Engineered Hardwood
    Vinyl
    Carpet
  • Features
    Bath Off Primary
    Ceiling Fan(s)
    High Tech Cabling
    Vaulted Ceilings
    Walk-In Closet(s)
    Water Heater
Property
  • Lot Features
    Alley
    Curbs
    Paved
    Sidewalk
  • Site Features
    Cable TV
    Deck
    Fenced-Partially
    Gas Available
    High Speed Internet
    Patio
Appliances
  • Included
    Dishwasher(s)
    Disposal
    Microwave(s)
    Stove(s)/Range(s)
    Tankless Water Heater
Terms
  • 3rd Party Approval Required)
    No
  • Bank Owned (REO)
    No
  • Complex FHA Availability
    Unspecified
  • Potential Terms
    Cash
    Conventional
Utilities
  • Energy
    Electric
    Natural Gas
    Solar (Unspecified)
  • Sewer
    Sewer Connected
  • Water Source
    Public
Additional Info
  • Waterfront
    No
  • Air Conditioning (A/C)
    Yes
  • Buyer Broker's Compensation
    2%
  • MLS Area #
    Area 860
  • Number of Photos
    37
  • Last Modification Time
    Saturday, February 28, 2026 8:15 PM
  • System Listing ID
    5515125
Update Info
  • Pending Or Ctg
    2026-02-28 20:21:33
  • Price Reduction
    2026-02-26 14:56:12
  • First For Sale
    2026-01-30 15:09:19
Listing details based on information submitted to the MLS GRID as of Saturday, February 28, 2026 8:15 PM. All data is obtained from various sources and may not have been verified by broker or MLS GRID. Supplied Open House Information is subject to change without notice. All information should be independently reviewed and verified for accuracy. Properties may or may not be listed by the office/agent presenting the information.
View
Sort

Sharing

 
Contingent February 28, 2026
$719,000  
3 BR    2.25 BA    1,746 SQFT  
NWMLS #2473316. Beth McCall, Alliance Properties 2000 LLC
Map
 
Listing information is provided by the listing agent except as follows: BuilderB indicates that our system has grouped this listing under a home builder name that doesn't match the name provided by the listing broker. DevelopmentD indicates that our system has grouped this listing under a development name that doesn't match the name provided by the listing broker.