to
Reset
Houses
Townhouses
Condos
Land
Price
to
SQFT
to
Bdrms
to
Baths
to
Lot
to
Yr Built
to
Sold
Listed within...
Listed at least...
Offer Review
New Construction
Waterfront
Short-Sales
REO
Parking
to
Unit Flr
to
Unit Nbr
Listings
Neighborhoods
Complexes
Developments
Cities
Counties
Zip Codes
Neighborhood · Condo · Development
School District
Zip Code
City
County
Builder
Listing Numbers
Broker LAG
Boundary Lines
Labels
View
Sort
Sold Closed February 27, 2026
$1,000,000
3 Bedrooms
2.25 Bathrooms
1,362 Sqft House
Built 1908
4,000 Sqft Lot
2-Car Garage
SALE HISTORY
List price was $1,000,000
It took 4 days to go pending.
Then 11 days to close at $1,000,000
Closed at $734/SQFT.
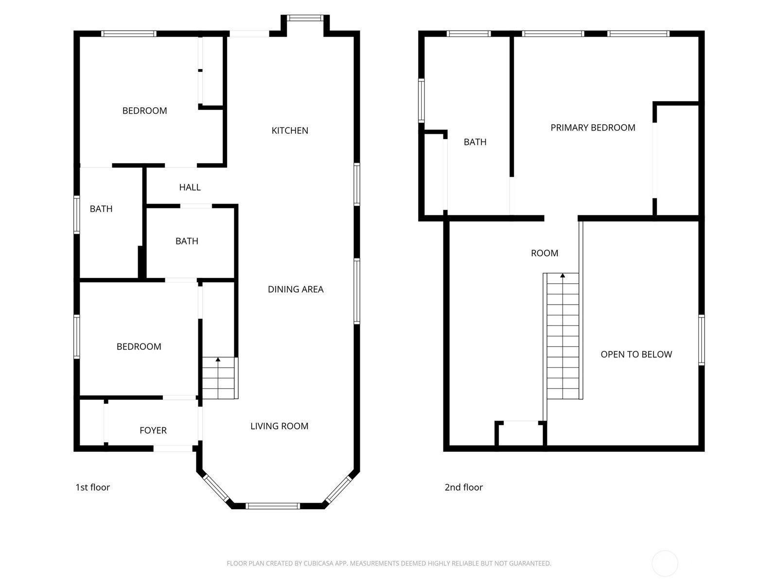
Located on a peaceful Arboretum District street, this updated 3-bed, 2.5-bath home blends architectural character with long-term asset flexibility. Vaulted ceilings, skylights, and an open loft enhance light and volume, while remodeled kitchen and baths deliver modernized functionality and appeal. A backyard deck supports both lifestyle use and tenant desirability. A separate basement entrance with substantial storage creates future optionality for reconfiguration, home office, gym, or added-use potential (buyer to verify), expanding utility and investment versatility. Key capital improvements include a primary bath remodel (2026), EV charger (2024), newer roof (2023), and A/C—features that support durability, operating appeal, and resale positioning. A 2-car garage, off-street parking, and proximity to the Arboretum, cafés, trails, DT Seattle, and major commuter routes further strengthen long-term demand in this highly desirable, close-in neighborhood.
Offer Review
No offer review date was specified
Listing source NWMLS MLS #
2478042
Listed by
Hao N. Dang, Windermere Real Estate/East
Buyer's broker
Leah Hasson, Real Broker LLC
Contact our
Madison Valley
Real Estate Lead
Wicklund Real Estate
Phone...
Bedroom & Bathroom Layout
SECOND
BDRM
¾
BATH
MAIN
BDRM
BDRM
FULL
BATH
½
BATH
LOWER
Property History
Feb 27, 2026
Sold
$1,000,000
NWMLS #2478042 Annualized -9.7% / yr
Feb 16, 2026
Went Pending
$1,000,000
NWMLS #2478042
Feb 12, 2026
Listed
$1,000,000
NWMLS #2478042
Aug 15, 2024
Sold
$1,170,000
NWMLS #2259300 Annualized 7.1% / yr
Jul 29, 2024
Went Pending
$1,198,000
NWMLS #2259300
Jul 18, 2024
Went Pending Inspection
$1,198,000
NWMLS #2259300
Jul 01, 2024
Listed
$1,198,000
NWMLS #2259300
May 27, 2019
Sold
$817,000
NWMLS #1442675 Annualized 5.3% / yr
Apr 06, 2004
Sold
$375,000
NWMLS #24010579
More
Listing Details
  • Sale Price
    $1,000,000
  • Closing Date
    February 27, 2026
  • Last List Price
    $1,000,000
  • Original Price
    Same
  • List Date
    February 12, 2026
  • Pending Date
    February 16, 2026
  • Days to go Pending
    4 days
  • $/sqft (Total)
    $734/sqft
  • $/sqft (Finished)
    $734/sqft
  • Listing Source
  • MLS Number
    2478042
  • Listing Broker
    Hao N. Dang
  • Listing Office
    Windermere Real Estate/East
  • Buyer's Broker
    Leah Hasson
  • Buyer Broker's Firm
    Real Broker LLC
Monthly Payment Estimate
  • Principal and Interest
    $5,242 / month
  • Property Taxes
    $830 / month
  • Homeowners Insurance
    $196 / month
  • TOTAL
    $6,268 / month

  • based on 20% down
    ($200,000)
  • and a
    6.85% Interest Rate
  • About:
    All calculations are estimates only and provided by Mainview LLC. Actual amounts will vary.
House Details
  • Sqft (Total)
    1,362 sqft
  • Sqft (Finished)
    1,362 sqft
  • Sqft (Unfinished)
    None
  • Property Type
    House
  • Sub Type
    2 Stories + Basement
  • Bedrooms
    3 Bedrooms
  • Bathrooms
    2.25 Bathrooms
  • Lot
    4,000 sqft Lot
  • Lot Size Source
    Realist
  • Lot #
    Unspecified
  • Project
    Unspecified
  • Total Stories
    3 stories
  • Basement
    Unfinished
  • Sqft Source
    Appraisal
Property Tax Info
  • 2025 Property Taxes
    $9,961 / year
  • No Senior Exemption
Public Parcel Data & Maps
Schools
  • School District
    Seattle
  • Elementary
    Unspecified
  • Middle
    Unspecified
  • High School
    Unspecified
HOA
  • HOA Dues
    Unspecified
  • Fees Assessed
    Unspecified
  • HOA Dues Include
    Unspecified
  • HOA Contact
    Unspecified
  • Management Contact
    Unspecified
Parking
  • Covered
    2-Car
  • Types
    Driveway
    Detached Garage
    RV Parking
  • Has Garage
    Yes
  • Nbr of Assigned Spaces
    2
Views
  • Territorial
Construction
  • Year Built
    1908
  • Home Builder
    Unspecified
Cooling
  • Includes
    Ductless
Heating
  • Includes
    Ductless
    Forced Air
Interior
  • Flooring
    Ceramic Tile
    Softwood
    Vinyl Plank
  • Features
    Bath Off Primary
    Ceiling Fan(s)
    Dbl Pane/Storm Window
    Dining Room
    Skylight(s)
    Vaulted Ceiling(s)
Property
  • Lot Features
    Curbs
    Paved
    Sidewalk
  • Site Features
    Cable TV
    Deck
    Electric Car Charging
    Fenced-Partially
    High Speed Internet
    RV Parking
    Shop
Appliances
  • Included
    Dishwasher
    Disposal
    Dryer
    Microwave
    Refrigerator
    Stove(s)/Range(s)
    Washer
Terms
  • Bank Owned (REO)
    No
Utilities
  • Energy
    Electric
  • Sewer
    Sewer Connected
  • Water Source
    Public
Additional Info
  • Waterfront
    No
  • Air Conditioning (A/C)
    Yes
  • Buyer Broker's Compensation
    2.5%
  • MLS Area #
    Area 390
  • Number of Photos
    36
  • Last Modification Time
    Monday, March 30, 2026 4:03 AM
  • System Listing ID
    5518390
Update Info
  • Closed
    2026-02-27 21:09:55
  • Pending Or Ctg
    2026-02-16 09:18:46
  • First For Sale
    2026-02-12 09:20:58
Listing details based on information submitted to the MLS GRID as of Monday, March 30, 2026 4:03 AM. All data is obtained from various sources and may not have been verified by broker or MLS GRID. Supplied Open House Information is subject to change without notice. All information should be independently reviewed and verified for accuracy. Properties may or may not be listed by the office/agent presenting the information.
View
Sort

Sharing

 
Sold February 27, 2026
$1,000,000  
3 BR    2.25 BA    1,362 SQFT  
NWMLS #2478042. Hao N. Dang, Windermere Real Estate/East
Map
 
Listing information is provided by the listing agent except as follows: BuilderB indicates that our system has grouped this listing under a home builder name that doesn't match the name provided by the listing broker. DevelopmentD indicates that our system has grouped this listing under a development name that doesn't match the name provided by the listing broker.