to
Reset
Houses
Townhouses
Condos
Land
Price
to
SQFT
to
Bdrms
to
Baths
to
Lot
to
Yr Built
to
Sold
Listed within...
Listed at least...
Offer Review
New Construction
Waterfront
Short-Sales
REO
Parking
to
Unit Flr
to
Unit Nbr
Listings
Neighborhoods
Complexes
Developments
Cities
Counties
Zip Codes
Neighborhood · Condo · Development
School District
Zip Code
City
County
Builder
Listing Numbers
Broker LAG
Boundary Lines
Labels
View
Sort
For Sale 47 Days Online
$449,950
Originally $454,950
3 Bedrooms
2.5 Bathrooms
1,802 Sqft House
New Construction
Built 2026
3,600 Sqft Lot
1-Car Garage
HOA Dues $69 / month
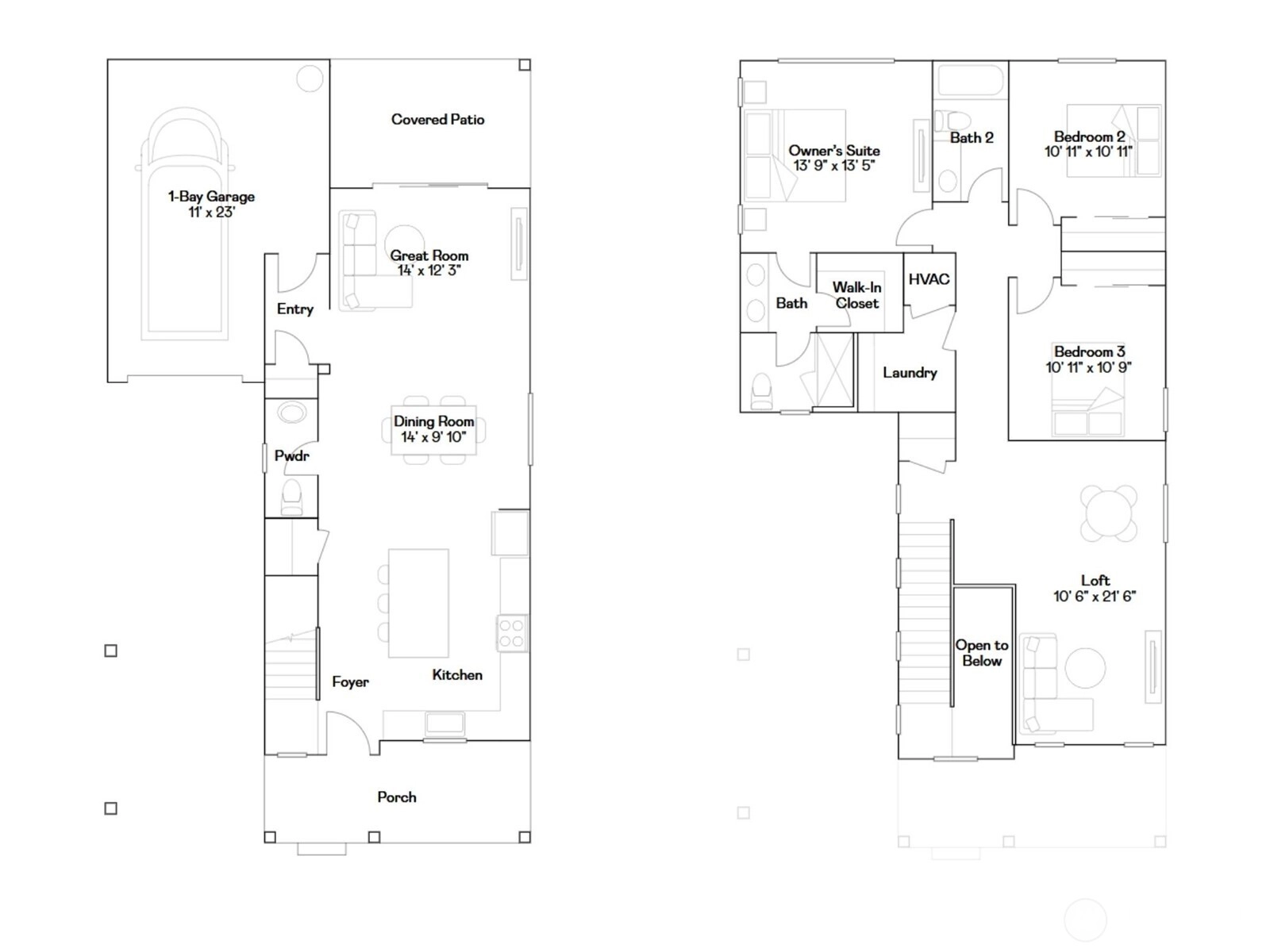
Welcome to the West-facing Driftwood on homesite 60 at Madrona Ridge, a beautiful Lennar community. This home features an open-concept layout among the great room, dining area, and gourmet kitchen. The first-floor also features a back patio for outdoor living. Upstairs hosts a loft and three bedrooms, including the owner’s suite with a spa-like bathroom and spacious walk-in closet. A convenient carport completes the home. With Lennar’s signature Everything’s Included®, enjoy stainless steel appliances, quartz countertops, shaker-style cabinetry and more—all at no extra cost. Buyer’s broker must be registered during the customer’s first interaction with a Lennar Associate to be eligible for compensation.
Offer Review
Will review offers when submitted
Builder
Project
Lennar at Madrona Ridge
Listing source NWMLS MLS #
2483993
Listed by
John Bahamon, Lennar Sales Corp.
Jackie Daum, Lennar Sales Corp.
We don't currently have a buyer representative in this area. To be sure that you're getting objective advice, we always suggest buyers work with their own agent, someone who is not affiliated with the seller.
Bedroom & Bathroom Layout
THIRD
BDRM
SECOND
BDRM
BDRM
FULL
BATH
FULL
BATH
MAIN
½
BATH
Property History
Apr 06, 2026
Price Reduction arrow_downward
$449,950
NWMLS #2483993
Apr 03, 2026
Price Increase arrow_upward
$459,950
NWMLS #2483993
Mar 30, 2026
Price Reduction arrow_downward
$454,950
NWMLS #2483993
Mar 02, 2026
Price Increase arrow_upward
$469,450
NWMLS #2483993
Feb 26, 2026
Price Increase arrow_upward
$459,950
NWMLS #2483993
Feb 24, 2026
Listed
$454,950
NWMLS #2483993
More
Listing Details
  • Status
    For Sale
  • Price
    $449,950
  • Original Price
    $454,950
  • List Date
    February 24, 2026
  • Last Status Change
    February 24, 2026
  • Last Update
    April 6, 2026
  • Days on Market
    47 Days
  • Cumulative DOM
    47 Days
  • $/sqft (Total)
    $250/sqft
  • $/sqft (Finished)
    $250/sqft
  • Listing Source
  • MLS Number
    2483993
  • Listing Broker
    John Bahamon
  • Listing Office
    Lennar Sales Corp.
Monthly Payment Estimate
  • Principal and Interest
    $2,359 / month
  • HOA
    $69 / month
  • Property Taxes
    $318 / month
  • Homeowners Insurance
    $98 / month
  • TOTAL
    $2,845 / month

  • based on 20% down
    ($89,990)
  • and a
    6.85% Interest Rate
  • About:
    All calculations are estimates only and provided by Mainview LLC. Actual amounts will vary.
House Details
  • Sqft (Total)
    1,802 sqft
  • Sqft (Finished)
    1,802 sqft
  • Sqft (Unfinished)
    None
  • Property Type
    House
  • Sub Type
    2 Story
  • Bedrooms
    3 Bedrooms
  • Bathrooms
    2.5 Bathrooms
  • Lot
    3,600 sqft Lot
  • Lot Size Source
    Plot Plan
  • Lot #
    60
  • Project
    Lennar at Madrona Ridge
  • Total Stories
    2 stories
  • Basement
    None
  • Sqft Source
    Builder Site Plan
Property Tax Info
  • 2026 Property Taxes
    $3,822 / year
  • No Senior Exemption
Public Parcel Data & Maps
  • County
    Jefferson County
  • Parcel #
    0060
  • County Website
    Unspecified
  • County Parcel Map
    Unspecified
  • County GIS Map
    Unspecified
  • About
    County links provided by Mainview LLC
Schools
  • School District
    Port Townsend #50
  • Elementary
    Salish Coast Elementary
  • Middle
    Blue Heron Mid
  • High School
    Port Townsend High
HOA
  • HOA Dues
    $69 / month
  • Fees Assessed
    Monthly
  • HOA Dues Include
    Common Area Maintenance
  • HOA Contact
    J & M Managment 253-848-1947
  • Management Contact
Community Features
  • Community Features
    Trail(s)
Parking
  • Covered
    1-Car
  • Types
    Attached Carport
    Driveway
    Attached Garage
  • Has Garage
    Yes
  • Nbr of Assigned Spaces
    1
Construction
  • Year Built
    2026
  • New Construction
    Yes
  • Construction State
    Unspecified
  • Home Builder
    Lennar
Cooling
  • Includes
    90%+ High Efficiency
    Central Air
    Forced Air
    Heat Pump
Heating
  • Includes
    90%+ High Efficiency
    Forced Air
    Heat Pump
Interior
  • Flooring
    Ceramic Tile
    Vinyl Plank
    Carpet
  • Features
    Bath Off Primary
    Dbl Pane/Storm Window
    Dining Room
    Loft
    Walk-In Closet(s)
    Water Heater
Property
  • Lot Features
    Curbs
    Paved
    Sidewalk
Appliances
  • Included
    Dishwasher
    Disposal
    Microwave
    Refrigerator
    Stove(s)/Range(s)
Terms
  • 3rd Party Approval Required)
    No
  • Bank Owned (REO)
    No
  • Complex FHA Availability
    Unspecified
  • Potential Terms
    Cash
    Conventional
    FHA
    USDA Loan
    VA Loan
Utilities
  • Energy
    Electric
  • Sewer
    Sewer Connected
  • Water Source
    Public
Additional Info
  • Waterfront
    No
  • Air Conditioning (A/C)
    Yes
  • Buyer Broker's Compensation
    2.5%
  • MLS Area #
    Area 480
  • Number of Photos
    22
  • Last Modification Time
    Monday, April 6, 2026 3:27 PM
  • System Listing ID
    5522079
Update Info
  • Price Reduction
    2026-04-06 15:36:36
  • Price Increase
    2026-04-03 14:09:31
  • First For Sale
    2026-02-24 10:14:33
Listing details based on information submitted to the MLS GRID as of Monday, April 6, 2026 3:27 PM. All data is obtained from various sources and may not have been verified by broker or MLS GRID. Supplied Open House Information is subject to change without notice. All information should be independently reviewed and verified for accuracy. Properties may or may not be listed by the office/agent presenting the information.
View
Sort

Sharing

 
For Sale 47 Days Online
$449,950     ▼ Price Reduction $10K
3 BR    2.5 BA    1,802 SQFT  
Offer Review: Anytime
NWMLS #2483993. John Bahamon, Lennar Sales Corp.
Map
 
Listing information is provided by the listing agent except as follows: BuilderB indicates that our system has grouped this listing under a home builder name that doesn't match the name provided by the listing broker. DevelopmentD indicates that our system has grouped this listing under a development name that doesn't match the name provided by the listing broker.