to
Reset
Houses
Townhouses
Condos
Land
Price
to
SQFT
to
Bdrms
to
Baths
to
Lot
to
Yr Built
to
Sold
Listed within...
Listed at least...
Offer Review
New Construction
Waterfront
Short-Sales
REO
Parking
to
Unit Flr
to
Unit Nbr
Listings
Neighborhoods
Complexes
Developments
Cities
Counties
Zip Codes
Neighborhood · Condo · Development
School District
Zip Code
City
County
Builder
Listing Numbers
Broker LAG
Boundary Lines
Labels
View
Sort
Sold Closed April 9, 2026
$490,000
2 Bedrooms
1.75 Bathrooms
925 Sqft Condo
Unit 308
Floor 308
Built 1964
1 Parking Space
HOA Dues $613 / month
SALE HISTORY
List price was $499,950
It took 12 days to go pending.
Then 31 days to close at $490,000
Closed at $530/SQFT.
Beautiful 2 bedroom, 2 bathroom condo close to downtown Edmonds in Highland Park. This condo is in the south building and on the third floor looking out onto a gorgeous greenbelt. Condominium has spacious living room with separate reading nook, dining area, kitchen has updated quartz counters and a fresh coat of paint throughout the unit. Big primary bedroom has lots of closet space. Pet-friendly building offers heated pool, community lounge, secure entrance, & elevator access with recent exterior upgrades. Easy access to downtown Edmonds boutiques, restaurants, farmers’ market, art walk, dog park & waterfront.
Offer Review
No offer review date was specified
Project
Highland Park
Listing source NWMLS MLS #
2484442
Listed by
Michael Buck, AgencyOne
Buyer's broker
Vivian Peterson, Windermere R.E. Shoreline
Contact our
Edmonds
Real Estate Lead
Windermere Real Estate / North, Inc
Phone...
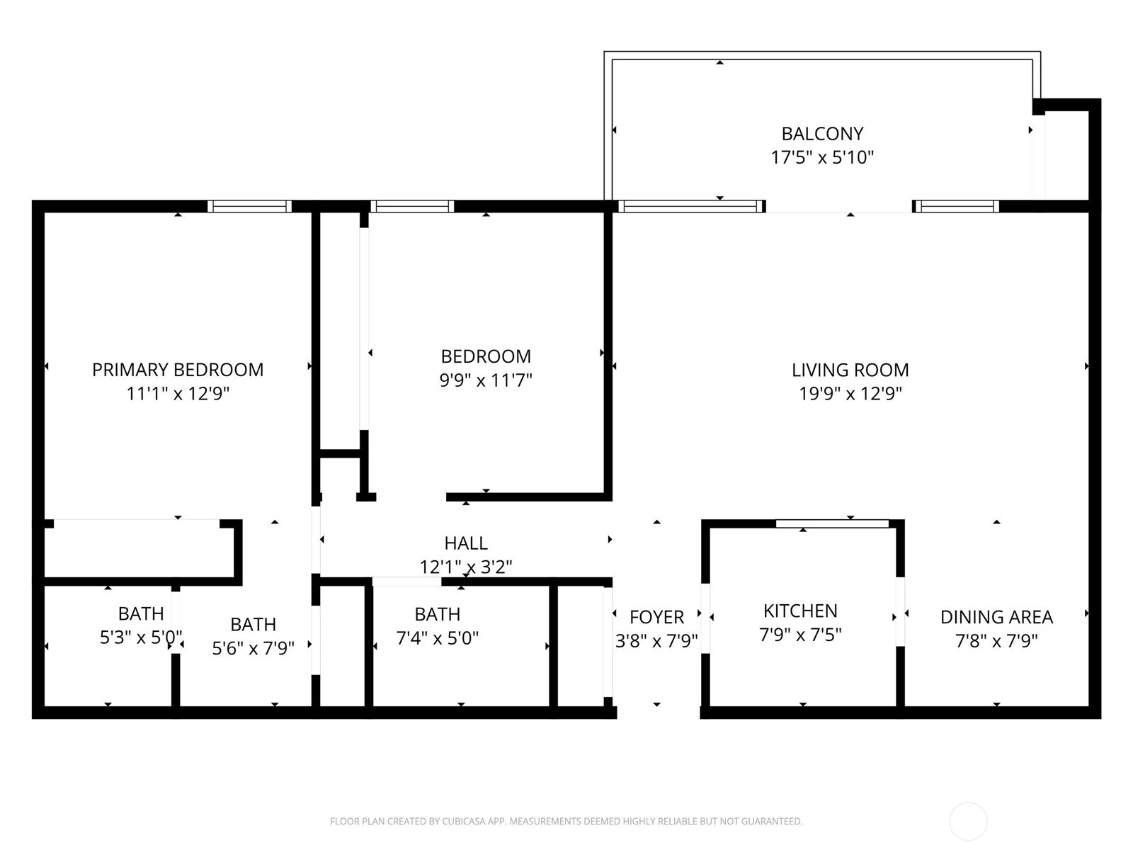
Bedroom & Bathroom Layout
THIRD
BDRM
BDRM
FULL
BATH
¾
BATH
Property History
Apr 13, 2026
Sold
$490,000
NWMLS #2484442
Mar 19, 2026
Went Pending
$499,950
NWMLS #2484442
Feb 25, 2026
Listed
$499,950
NWMLS #2484442
More
Listing Details
  • Sale Price
    $490,000
  • Closing Date
    April 9, 2026
  • Last List Price
    $499,950
  • Original Price
    Same
  • List Date
    February 25, 2026
  • Pending Date
    March 9, 2026
  • Days to go Pending
    12 days
  • $/sqft (Total)
    $530/sqft
  • $/sqft (Finished)
    $530/sqft
  • Listing Source
  • MLS Number
    2484442
  • Listing Broker
    Michael Buck
  • Listing Office
    AgencyOne
  • Buyer's Broker
    Vivian Peterson
  • Buyer Broker's Firm
    Windermere R.E. Shoreline
Monthly Payment Estimate
  • Principal and Interest
    $2,569 / month
  • HOA
    $613 / month
  • Property Taxes
    $261 / month
  • Homeowners Insurance
    $103 / month
  • TOTAL
    $3,546 / month

  • based on 20% down
    ($98,000)
  • and a
    6.85% Interest Rate
  • About:
    All calculations are estimates only and provided by Mainview LLC. Actual amounts will vary.
Condo Details
  • Unit #
    308
  • Unit Floor
    308
  • Sqft (Total)
    925 sqft
  • Sqft (Finished)
    Unspecified
  • Sqft (Unfinished)
    None
  • Property Type
    Condo
  • Sub Type
    Condo (1 Level)
  • Bedrooms
    2 Bedrooms
  • Bathrooms
    1.75 Bathrooms
  • Lot Size
    Unspecified
  • Lot Size Source
    realist
  • Project
    Highland Park
  • Total Stories
    1 story
  • Sqft Source
    realist
Property Tax Info
  • 2025 Property Taxes
    $3,133 / year
  • No Senior Exemption
Public Parcel Data & Maps
Schools
  • School District
    Edmonds
  • Elementary
    Unspecified
  • Middle
    Unspecified
  • High School
    Unspecified
HOA
  • HOA Dues
    $613 / month
  • Fees Assessed
    Monthly
  • HOA Dues Include
    Cable TV
    Common Area Maintenance
    Sewer
    Snow Removal
    Trash
    Water
  • Pets Allowed
    Cats OK
    Dogs OK
  • HOA Contact
    Unspecified
  • Management Contact
    Unspecified
Community Features
  • Community Features
    Cable TV
    Elevator
    Game/Rec Rm
    Laundry Room
    Lobby Entrance
    Pool
Building
  • Name
    Highland Park
  • Units in Complex
    74
  • Units in Building
    46
  • Stories in Building
    4
Parking
  • Types
    Uncovered
  • Has Garage
    No
  • Nbr of Assigned Spaces
    1
  • Parking Space Info
    28
Construction
  • Year Built
    1964
  • Home Builder
    Unspecified
Cooling
  • Includes
    None
Heating
  • Includes
    Radiant
Interior
  • Flooring
    Laminate
    Carpet
  • Features
    Cooking-Electric
    Dryer-Electric
    Insulated Windows
    Primary Bathroom
Property
  • Lot Features
    Corner Lot
    Curbs
    Paved
    Sidewalk
Appliances
  • Included
    Dishwasher
    Dryer
    Stove(s)/Range(s)
    Washer
Terms
  • Bank Owned (REO)
    No
Utilities
  • Energy
    Electric
Additional Info
  • Waterfront
    No
  • Air Conditioning (A/C)
    No
  • Buyer Broker's Compensation
    2.5%
  • MLS Area #
    Area 730
  • Number of Photos
    19
  • Last Modification Time
    Monday, April 13, 2026 7:30 PM
  • System Listing ID
    5522390
Update Info
  • Closed
    2026-04-13 19:32:10
  • Pending Or Ctg
    2026-03-19 07:05:53
  • First For Sale
    2026-02-25 11:09:07
Listing details based on information submitted to the MLS GRID as of Monday, April 13, 2026 7:30 PM. All data is obtained from various sources and may not have been verified by broker or MLS GRID. Supplied Open House Information is subject to change without notice. All information should be independently reviewed and verified for accuracy. Properties may or may not be listed by the office/agent presenting the information.
View
Sort

Sharing

 
Sold April 9, 2026
$490,000   $499,950
2 BR    1.75 BA    925 SQFT  
NWMLS #2484442. Michael Buck, AgencyOne
Map
 
Listing information is provided by the listing agent except as follows: BuilderB indicates that our system has grouped this listing under a home builder name that doesn't match the name provided by the listing broker. DevelopmentD indicates that our system has grouped this listing under a development name that doesn't match the name provided by the listing broker.