to
Reset
Houses
Townhouses
Condos
Land
Price
to
SQFT
to
Bdrms
to
Baths
to
Lot
to
Yr Built
to
Sold
Listed within...
Listed at least...
Offer Review
New Construction
Waterfront
Short-Sales
REO
Parking
to
Unit Flr
to
Unit Nbr
Listings
Neighborhoods
Complexes
Developments
Cities
Counties
Zip Codes
Neighborhood · Condo · Development
School District
Zip Code
City
County
Builder
Listing Numbers
Broker LAG
Boundary Lines
Labels
View
Sort
Sold Closed May 8, 2026
$1,410,000
Originally $1,500,000
4 Bedrooms
4.5 Bathrooms
5,371 Sqft House
Built 2018
21,786 Sqft Lot
3-Car Garage
SALE HISTORY
List price was $1,500,000
The price was later changed to $1,400,000.
It took 42 days to go pending.
Then 22 days to close at $1,410,000
Closed at $263/SQFT.
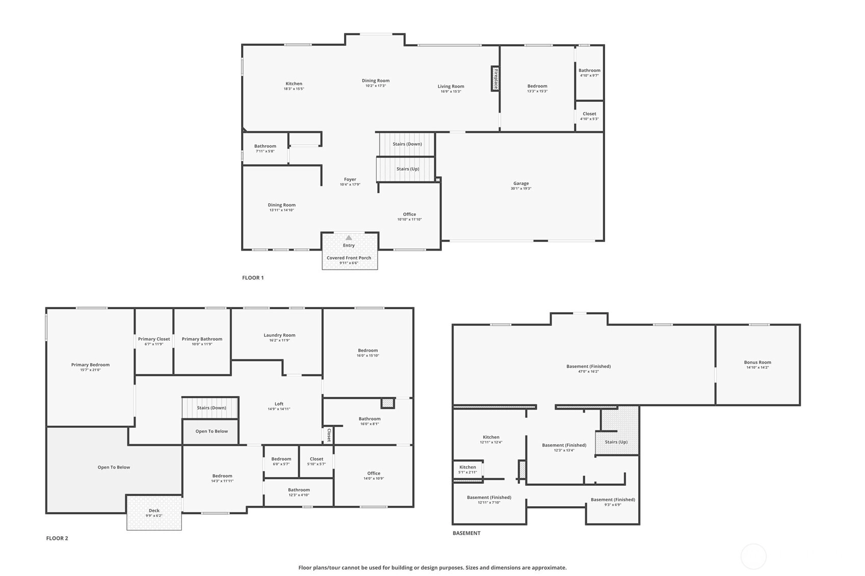
Flooded with natural light and thoughtfully designed for comfort, this impressive 2018-built home in Tukwila offers space to live, work, and entertain with ease. The main-floor junior suite, hardwood floors, and chef’s kitchen with gas range, double convection ovens, and two dishwashers elevate everyday living. Upstairs bedrooms each enjoy private baths, while the expansive walkout basement features a rec room, den, second kitchen setup, and abundant storage. Set on a fully fenced half-acre with outbuildings, deck, sprinklers, and 3-car garage—this one has it all. Schedule your private tour today!
Offer Review
No offer review date was specified
Listing source NWMLS MLS #
2486325
Listed by
Carla R. Clark, KW Mountains to Sound Realty
Cheryl Pederson, KW Mountains to Sound Realty
Buyer's broker
Girmai Tsadick, The Preview Group
Contact our
Tukwila
Real Estate Lead
TPG Realty | Keller Williams
Phone...
Bedroom & Bathroom Layout
SECOND
BDRM
BDRM
BDRM
FULL
BATH
FULL
BATH
¾
BATH
MAIN
BDRM
¾
BATH
½
BATH
LOWER
½
BATH
Property History
May 08, 2026
Sold
$1,410,000
NWMLS #2486325 Annualized 5.7% / yr
Apr 21, 2026
Went Pending
$1,400,000
NWMLS #2486325
Apr 17, 2026
Went Pending Inspection
$1,400,000
NWMLS #2486325
Apr 09, 2026
Back on Market
$1,400,000
NWMLS #2486325
Apr 03, 2026
Went Pending
$1,400,000
NWMLS #2486325
Mar 24, 2026
Price Reduction arrow_downward
$1,400,000
NWMLS #2486325
Mar 05, 2026
Listed
$1,500,000
NWMLS #2486325
Feb 27, 2019
Sold
$949,000
More
Listing Details
  • Sale Price
    $1,410,000
  • Closing Date
    May 8, 2026
  • Last List Price
    $1,400,000
  • Original Price
    $1,500,000
  • List Date
    March 5, 2026
  • Pending Date
    April 16, 2026
  • Days to go Pending
    42 days
  • $/sqft (Total)
    $263/sqft
  • $/sqft (Finished)
    $263/sqft
  • Listing Source
  • MLS Number
    2486325
  • Listing Broker
    Carla R. Clark
  • Listing Office
    KW Mountains to Sound Realty
  • Buyer's Broker
    Girmai Tsadick
  • Buyer Broker's Firm
    The Preview Group
Monthly Payment Estimate
  • Principal and Interest
    $7,391 / month
  • Property Taxes
    $1,249 / month
  • Homeowners Insurance
    $271 / month
  • TOTAL
    $8,911 / month

  • based on 20% down
    ($282,000)
  • and a
    6.85% Interest Rate
  • About:
    All calculations are estimates only and provided by Mainview LLC. Actual amounts will vary.
House Details
  • Sqft (Total)
    5,371 sqft
  • Sqft (Finished)
    5,371 sqft
  • Sqft (Unfinished)
    Unspecified
  • Property Type
    House
  • Sub Type
    2 Stories + Basement
  • Bedrooms
    4 Bedrooms
  • Bathrooms
    4.5 Bathrooms
  • Lot
    21,786 sqft Lot
  • Lot Size Source
    Public Record
  • Lot #
    Unspecified
  • Project
    Unspecified
  • Total Stories
    3 stories
  • Basement
    Finished
  • Sqft Source
    Public Record
Property Tax Info
  • 2025 Property Taxes
    $14,987 / year
  • No Senior Exemption
Public Parcel Data & Maps
Schools
  • School District
    Tukwila
  • Elementary
    Buyer To Verify
  • Middle
    Buyer To Verify
  • High School
    Buyer To Verify
HOA
  • HOA Dues
    Unspecified
  • Fees Assessed
    Unspecified
  • HOA Dues Include
    Unspecified
  • HOA Contact
    Unspecified
  • Management Contact
    Unspecified
Parking
  • Covered
    3-Car
  • Types
    Attached Garage
  • Has Garage
    Yes
  • Nbr of Assigned Spaces
    9
Views
  • Territorial
Construction
  • Year Built
    2018
  • Home Builder
    Unspecified
Cooling
  • Includes
    90%+ High Efficiency
    Central Air
    Forced Air
Heating
  • Includes
    90%+ High Efficiency
    Stove/Free Standing
Interior
  • Flooring
    Ceramic Tile
    Hardwood
    Carpet
  • Features
    Second Kitchen
    Bath Off Primary
    Dbl Pane/Storm Window
    Dining Room
    Fireplace
    French Doors
    High Tech Cabling
    Sprinkler System
    Vaulted Ceiling(s)
    Walk-In Closet(s)
    Water Heater
    Wine/Beverage Refrigerator
Property
  • Lot Features
    Curbs
    Dead End Street
    Paved
    Sidewalk
  • Site Features
    Cable TV
    Deck
    Fenced-Fully
    High Speed Internet
    Outbuildings
    Patio
    Sprinkler System
Appliances
  • Included
    Dishwasher
    Disposal
    Double Oven
    Dryer
    Microwave
    Refrigerator
    Stove(s)/Range(s)
    Tankless Water Heater
    Washer
Terms
  • Bank Owned (REO)
    No
Utilities
  • Energy
    Electric
    Natural Gas
  • Sewer
    Sewer Connected
  • Water Source
    Public
Additional Info
  • Waterfront
    No
  • Air Conditioning (A/C)
    Yes
  • Buyer Broker's Compensation
    2%
  • MLS Area #
    Area 130
  • Number of Photos
    40
  • Last Modification Time
    Friday, May 8, 2026 5:45 PM
  • System Listing ID
    5525470
Update Info
  • Closed
    2026-05-08 17:58:27
  • Pending Or Ctg
    2026-04-21 09:26:15
  • Back On Market
    2026-04-09 10:07:54
  • Price Reduction
    2026-03-24 11:49:56
  • First For Sale
    2026-03-05 10:24:10
Listing details based on information submitted to the MLS GRID as of Friday, May 8, 2026 5:45 PM. All data is obtained from various sources and may not have been verified by broker or MLS GRID. Supplied Open House Information is subject to change without notice. All information should be independently reviewed and verified for accuracy. Properties may or may not be listed by the office/agent presenting the information.
View
Sort

Sharing

 
Sold May 8, 2026
$1,410,000   $1,400,000
4 BR    4.5 BA    5,371 SQFT  
NWMLS #2486325. Carla R. Clark, KW Mountains to Sound Realty
Map
 
Listing information is provided by the listing agent except as follows: BuilderB indicates that our system has grouped this listing under a home builder name that doesn't match the name provided by the listing broker. DevelopmentD indicates that our system has grouped this listing under a development name that doesn't match the name provided by the listing broker.