to
Reset
Houses
Townhouses
Condos
Land
Price
to
SQFT
to
Bdrms
to
Baths
to
Lot
to
Yr Built
to
Sold
Listed within...
Listed at least...
Offer Review
New Construction
Waterfront
Short-Sales
REO
Parking
to
Unit Flr
to
Unit Nbr
Listings
Neighborhoods
Complexes
Developments
Cities
Counties
Zip Codes
Neighborhood · Condo · Development
School District
Zip Code
City
County
Builder
Listing Numbers
Broker LAG
Boundary Lines
Labels
View
Sort
Pending Went pending in 48 days
$659,995
Originally $669,995
4 Bedrooms
2.25 Bathrooms
2,270 Sqft House
Lot 11
New Construction
Built 2025
5,882 Sqft Lot
2-Car Garage
HOA Dues $75 / month
PENDING SALE. This listing went Pending on April 27, 2026

Some pending sales don't become final. Contact Us if this property is really important to you so we can check on it right now. The seller has reached an agreement with a buyer to sell this property. If things go as planned, the sale will become final in the near future. The buyer and seller have agreed on a price but it's not public until the sale closes. The last published list price was $659,995.
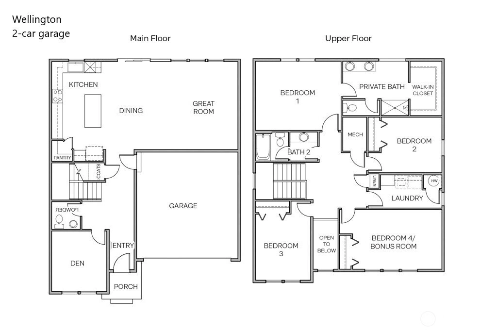
~~RED TAG SALES EVENT~~ The Wellington floor plan will “wow” you. Located at Bakerview in Stanwood, this wonderfully designed floorplan has a formal dining room, beautifully appointed timeless kitchen, 4 bedrooms, 2.5 baths and a bonus room. Hall bath upstairs has double vanity for easy sharing and a spacious laundry room with large counter for folding and sorting laundry. Bring groceries into the kitchen right from the 2-car garage, enjoy the comfort of air-conditioning, home automation package, 240Volt outlet for your car charger in the garage, plus a 1-2-10 year builder warranty. Bakerview is a stunning new home community featuring amenities such as pickleball courts, basketball court, playgrounds, picnic structures and tree lined sidewalks. Up to $20,000 buyer bonus & special interest rate with affiliated lender DHI Mortgage for qualified buyers. Buyers must register their broker on site at first visit, including open houses. See you soon! Picture is for representation purposes only; colors and options will vary. Pictures are of a staged home.
Offer Review
No offer review date was specified
Builder
D.R. Horton (DR Horton)
Project
Bakerview
Listing source NWMLS MLS #
2489175
Listed by
Christine Uselman, D.R. Horton
Paula Hovander, D.R. Horton
Open Houses
Wednesday Apr 29, 2026   10am - 6pm
Contact our
Stanwood
Real Estate Lead
Buck Real Estate
Phone...
Bedroom & Bathroom Layout
SECOND
BDRM
BDRM
BDRM
BDRM
FULL
BATH
¾
BATH
MAIN
½
BATH
Property History
Apr 27, 2026
Went Pending
$659,995
NWMLS #2489175
Apr 22, 2026
Price Reduction arrow_downward
$659,995
NWMLS #2489175
Mar 10, 2026
Listed
$669,995
NWMLS #2489175
More
Listing Details
  • Status
    Pending
  • Last Listed Price
    $659,995
  • Original Price
    $669,995
  • List Date
    March 10, 2026
  • Last Status Change
    April 27, 2026
  • Last Update
    April 27, 2026
  • Days on Market
    50 Days
  • Cumulative DOM
    48 Days
  • Pending Date
    April 27, 2026
  • Days to go Pending
    48
  • $/sqft (Total)
    $291/sqft
  • $/sqft (Finished)
    $291/sqft
  • Listing Source
  • MLS Number
    2489175
  • Listing Broker
    Christine Uselman
  • Listing Office
    D.R. Horton
Monthly Payment Estimate
  • Principal and Interest
    $3,460 / month
  • HOA
    $75 / month
  • Property Taxes
    $583 / month
  • Homeowners Insurance
    $133 / month
  • TOTAL
    $4,251 / month

  • based on 20% down
    ($131,999)
  • and a
    6.85% Interest Rate
  • About:
    All calculations are estimates only and provided by Mainview LLC. Actual amounts will vary.
House Details
  • Unit #
    11
  • Sqft (Total)
    2,270 sqft
  • Sqft (Finished)
    2,270 sqft
  • Sqft (Unfinished)
    None
  • Property Type
    House
  • Sub Type
    2 Story
  • Bedrooms
    4 Bedrooms
  • Bathrooms
    2.25 Bathrooms
  • Lot
    5,882 sqft Lot
  • Lot Size Source
    Site Drawing
  • Lot #
    11
  • Project
    Bakerview
  • Total Stories
    2 stories
  • Basement
    None
  • Sqft Source
    Builder Drawings
Property Tax Info
  • 2026 Property Taxes
    $7,000 / year
  • No Senior Exemption
Public Parcel Data & Maps
Schools
  • School District
    Stanwood-Camano
  • Elementary
    Buyer To Verify
  • Middle
    Buyer To Verify
  • High School
    Buyer To Verify
HOA
  • HOA Dues
    $75 / month
  • Fees Assessed
    Monthly
  • HOA Dues Include
    Common Area Maintenance
  • HOA Contact
    J&M Management 253-848-1947
  • Management Contact
Community Features
  • Community Features
    Athletic Court
    CCRs
    Park
    Playground
Parking
  • Covered
    2-Car
  • Types
    Attached Garage
  • Has Garage
    Yes
  • Nbr of Assigned Spaces
    2
Views
  • Territorial
Construction
  • Year Built
    2025
  • New Construction
    Yes
  • Construction State
    Unspecified
  • Home Builder
    D.R. Horton
Cooling
  • Includes
    90%+ High Efficiency
    Forced Air
    Heat Pump
Heating
  • Includes
    90%+ High Efficiency
    Forced Air
    Heat Pump
Interior
  • Flooring
    Laminate
    Vinyl
    Carpet
  • Features
    Bath Off Primary
    Dbl Pane/Storm Window
    Dining Room
    Loft
    Pantry
    SMART Wired
    Walk-In Closet(s)
    Water Heater
Property
  • Lot Features
    Curbs
    Paved
    Sidewalk
  • Site Features
    Athletic Court
    Cable TV
    Electric Car Charging
    Fenced-Partially
    Gas Available
    High Speed Internet
    Patio
Appliances
  • Included
    Dishwasher
    Disposal
    Microwave
    Stove(s)/Range(s)
Terms
  • 3rd Party Approval Required)
    No
  • Bank Owned (REO)
    No
  • Complex FHA Availability
    Unspecified
  • Potential Terms
    Cash
    Conventional
    FHA
    USDA Loan
    VA Loan
Utilities
  • Energy
    Electric
  • Sewer
    Sewer Connected
  • Water Source
    Public
Additional Info
  • Waterfront
    No
  • Air Conditioning (A/C)
    Yes
  • Buyer Broker's Compensation
    2%
  • MLS Area #
    Area 770
  • Number of Photos
    31
  • Last Modification Time
    Monday, April 27, 2026 2:36 PM
  • System Listing ID
    5527515
Update Info
  • Pending Or Ctg
    2026-04-28 06:44:56
  • Price Reduction
    2026-04-22 10:55:21
  • Public Open Houses
    2026-04-20 15:25:14
  • First For Sale
    2026-03-10 17:36:30
Listing details based on information submitted to the MLS GRID as of Monday, April 27, 2026 2:36 PM. All data is obtained from various sources and may not have been verified by broker or MLS GRID. Supplied Open House Information is subject to change without notice. All information should be independently reviewed and verified for accuracy. Properties may or may not be listed by the office/agent presenting the information.
View
Sort

Sharing

 
Pending April 27, 2026
$659,995  
4 BR    2.25 BA    2,270 SQFT  
NWMLS #2489175. Christine Uselman, D.R. Horton
Map
 
Listing information is provided by the listing agent except as follows: BuilderB indicates that our system has grouped this listing under a home builder name that doesn't match the name provided by the listing broker. DevelopmentD indicates that our system has grouped this listing under a development name that doesn't match the name provided by the listing broker.