to
Reset
Houses
Townhouses
Condos
Land
Price
to
SQFT
to
Bdrms
to
Baths
to
Lot
to
Yr Built
to
Sold
Listed within...
Listed at least...
Offer Review
New Construction
Waterfront
Short-Sales
REO
Parking
to
Unit Flr
to
Unit Nbr
Listings
Neighborhoods
Complexes
Developments
Cities
Counties
Zip Codes
Neighborhood · Condo · Development
School District
Zip Code
City
County
Builder
Listing Numbers
Broker LAG
Boundary Lines
Labels
View
Sort
For Sale 17 Days Online
$509,950
Originally $506,950
3 Bedrooms
1.75 Bathrooms
1,832 Sqft House
New Construction
Built 2026
4,850 Sqft Lot
2-Car Garage
HOA Dues $91 / month
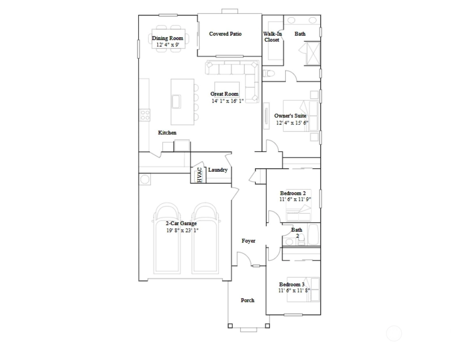
Welcome to the Canterwood at Carlsborg Village, a beautiful new community by Lennar. This new three-bedroom home offers convenient single-story living. The stylish kitchen shares an open-concept floorplan with the living and dining areas, and a spacious covered patio is ready for outdoor entertainment and leisure. All three bedrooms are tucked away to the side of the home for improved comfort and privacy, including the luxurious owner’s suite with an en-suite bathroom and walk-in closet. With Lennar’s signature Everything’s Included®, you’ll find stainless steel appliances, quartz countertops, shaker-style cabinetry and more—all at no extra cost. Buyer’s broker must be registered during the customer’s first interaction with a Lennar Associate to be eligible for compensation.
Offer Review
Will review offers when submitted
Builder
Project
Lennar at Carlsborg Village
Listing source NWMLS MLS #
2498315
Listed by
John Bahamon, Lennar Sales Corp.
Jackie Daum, Lennar Sales Corp.
We don't currently have a buyer representative in this area. To be sure that you're getting objective advice, we always suggest buyers work with their own agent, someone who is not affiliated with the seller.
Bedroom & Bathroom Layout
MAIN
BDRM
BDRM
BDRM
FULL
BATH
¾
BATH
More
Listing Details
  • Status
    For Sale
  • Price
    $509,950
  • Original Price
    $506,950
  • List Date
    March 26, 2026
  • Last Status Change
    March 26, 2026
  • Last Update
    April 8, 2026
  • Days on Market
    17 Days
  • Cumulative DOM
    17 Days
  • $/sqft (Total)
    $278/sqft
  • $/sqft (Finished)
    $278/sqft
  • Listing Source
  • MLS Number
    2498315
  • Listing Broker
    John Bahamon
  • Listing Office
    Lennar Sales Corp.
Monthly Payment Estimate
  • Principal and Interest
    $2,673 / month
  • HOA
    $91 / month
  • Property Taxes
    $375 / month
  • Homeowners Insurance
    $106 / month
  • TOTAL
    $3,245 / month

  • based on 20% down
    ($101,990)
  • and a
    6.85% Interest Rate
  • About:
    All calculations are estimates only and provided by Mainview LLC. Actual amounts will vary.
House Details
  • Sqft (Total)
    1,832 sqft
  • Sqft (Finished)
    1,832 sqft
  • Sqft (Unfinished)
    None
  • Property Type
    House
  • Sub Type
    1 Story
  • Bedrooms
    3 Bedrooms
  • Bathrooms
    1.75 Bathrooms
  • Lot
    4,850 sqft Lot
  • Lot Size Source
    Builder
  • Lot #
    31
  • Project
    Lennar at Carlsborg Village
  • Total Stories
    1 story
  • Basement
    None
  • Sqft Source
    Builder floorplan
Property Tax Info
  • 2026 Property Taxes
    $4,494 / year
  • Yes Senior Exemption
Public Parcel Data & Maps
  • County
    Clallam County
  • Parcel #
    000031
  • County Website
    Unspecified
  • County Parcel Map
    Unspecified
  • County GIS Map
    Unspecified
  • About
    County links provided by Mainview LLC
Schools
  • School District
    Sequim
  • Elementary
    Greywolf Elem
  • Middle
    Sequim Mid
  • High School
    Sequim Snr High
HOA
  • HOA Dues
    $91 / month
  • Fees Assessed
    Monthly
  • HOA Dues Include
    Common Area Maintenance
  • HOA Contact
    J&M Management
  • Management Contact
Community Features
  • Community Features
    CCRs
Parking
  • Covered
    2-Car
  • Types
    Attached Garage
  • Has Garage
    Yes
  • Nbr of Assigned Spaces
    2
Construction
  • Year Built
    2026
  • New Construction
    Yes
  • Construction State
    Unspecified
  • Home Builder
    Lennar
Cooling
  • Includes
    90%+ High Efficiency
    Forced Air
    Heat Pump
Heating
  • Includes
    90%+ High Efficiency
    Forced Air
    Heat Pump
Interior
  • Flooring
    Vinyl Plank
    Carpet
  • Features
    Bath Off Primary
    Walk-In Closet(s)
Property
Appliances
  • Included
    Dishwasher
    Microwave
    Refrigerator
    Stove(s)/Range(s)
Terms
  • 3rd Party Approval Required)
    No
  • Bank Owned (REO)
    No
  • Complex FHA Availability
    Unspecified
  • Potential Terms
    Cash
    Conventional
    FHA
    VA Loan
Utilities
  • Energy
    Electric
  • Sewer
    Available
  • Water Source
    Public
Additional Info
  • Waterfront
    No
  • Air Conditioning (A/C)
    Yes
  • Buyer Broker's Compensation
    2.5%
  • MLS Area #
    Area 915
  • Number of Photos
    27
  • Last Modification Time
    Wednesday, April 8, 2026 2:12 PM
  • System Listing ID
    5533781
Update Info
  • Price Increase
    2026-04-04 11:39:24
  • First For Sale
    2026-03-26 14:47:59
Listing details based on information submitted to the MLS GRID as of Wednesday, April 8, 2026 2:12 PM. All data is obtained from various sources and may not have been verified by broker or MLS GRID. Supplied Open House Information is subject to change without notice. All information should be independently reviewed and verified for accuracy. Properties may or may not be listed by the office/agent presenting the information.
View
Sort

Sharing

 
For Sale 17 Days Online
$509,950  
3 BR    1.75 BA    1,832 SQFT  
Offer Review: Anytime
NWMLS #2498315. John Bahamon, Lennar Sales Corp.
Map
 
Listing information is provided by the listing agent except as follows: BuilderB indicates that our system has grouped this listing under a home builder name that doesn't match the name provided by the listing broker. DevelopmentD indicates that our system has grouped this listing under a development name that doesn't match the name provided by the listing broker.