to
Reset
Houses
Townhouses
Condos
Land
Price
to
SQFT
to
Bdrms
to
Baths
to
Lot
to
Yr Built
to
Sold
Listed within...
Listed at least...
Offer Review
New Construction
Waterfront
Short-Sales
REO
Parking
to
Unit Flr
to
Unit Nbr
Listings
Neighborhoods
Complexes
Developments
Cities
Counties
Zip Codes
Neighborhood · Condo · Development
School District
Zip Code
City
County
Builder
Listing Numbers
Broker LAG
Boundary Lines
Labels
View
Sort
For Sale 6 Days Online
$999,950
5 Bedrooms
3 Bathrooms
3,134 Sqft House
New Construction
Built 2026
4,567 Sqft Lot
2-Car Garage
HOA Dues $65 / month
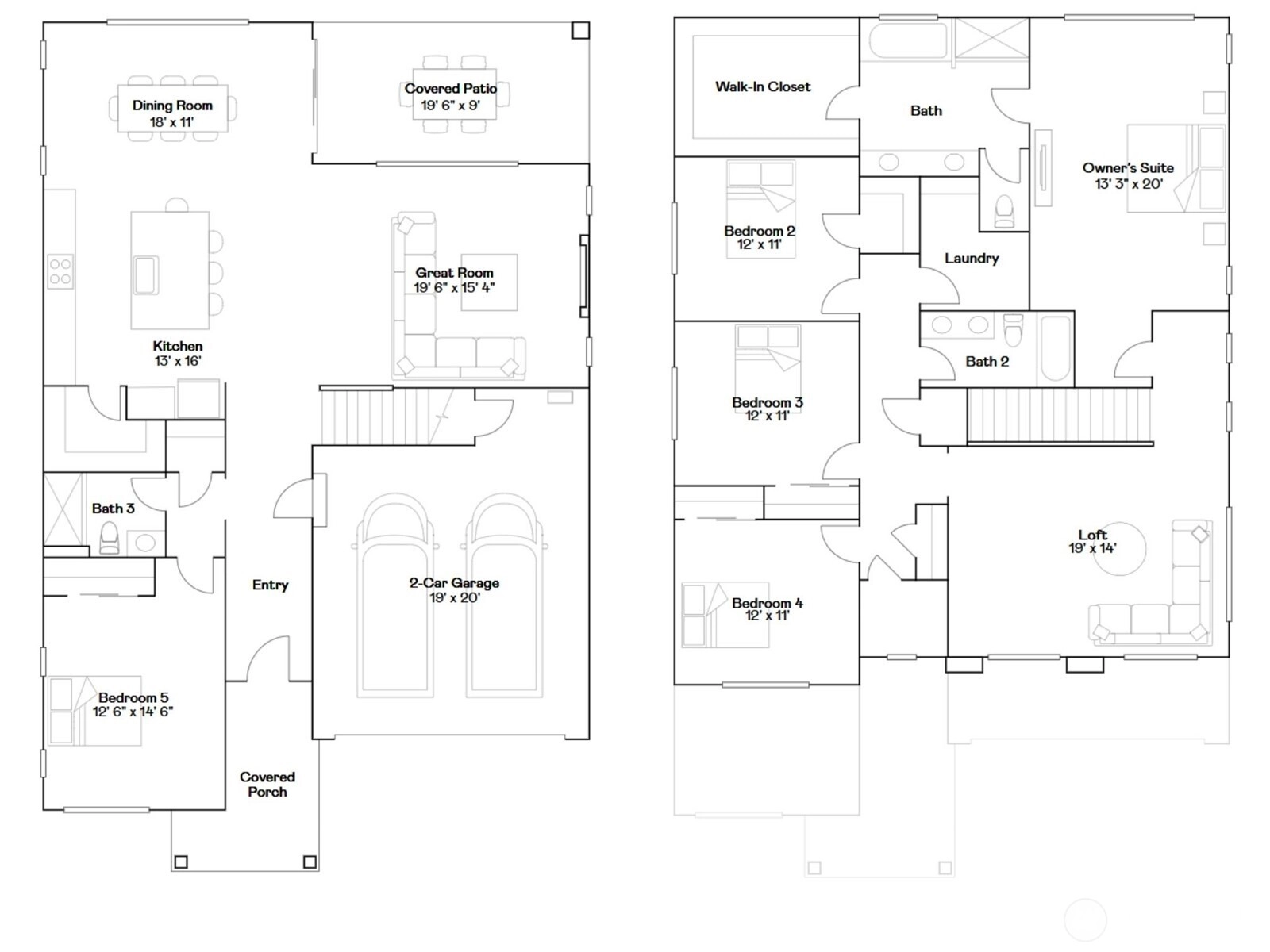
Welcome to the Meridian II on homesite 5 at Garibaldi, a beautiful community by Lennar. This homesite is ideally situated on a quiet cul-de-sac bulb, offering added privacy while being just a short distance from community amenities including the pickleball court, picnic tables, and scenic open space. Discover an open-concept design among the kitchen, dining room, and great room with sliding glass doors leading you to a covered patio. A convenient first-floor bedroom and bath reside on this main level. Upstairs a loft provides more living space surrounded by four bedrooms, including the lavish owner’s suite with a spa-like bathroom and spacious walk-in closet. With Lennar’s signature Everything’s Included®, enjoy new stainless steel appliances, quartz countertops, shaker-style cabinetry and more—all at no extra cost to you. Buyer's broker must be registered during customers first interaction with Lennar Associate to be eligible for compensation.
Offer Review
Will review offers when submitted
Builder
Project
Lennar at Garibaldi
Listing source NWMLS MLS #
2498321
Listed by
Ty Kolsky, Lennar Sales Corp.
Arie de Quilettes, Lennar Sales Corp.
Contact our
Monroe
Real Estate Lead
Buck Real Estate
Phone...
Bedroom & Bathroom Layout
SECOND
BDRM
BDRM
BDRM
BDRM
FULL
BATH
FULL
BATH
MAIN
BDRM
FULL
BATH
Property History
Mar 26, 2026
Listed
$999,950
NWMLS #2498321
More
Listing Details
  • Status
    For Sale
  • Price
    $999,950
  • Original Price
    Same as current
  • List Date
    March 26, 2026
  • Last Status Change
    March 26, 2026
  • Last Update
    March 28, 2026
  • Days on Market
    6 Days
  • Cumulative DOM
    6 Days
  • $/sqft (Total)
    $319/sqft
  • $/sqft (Finished)
    $319/sqft
  • Listing Source
  • MLS Number
    2498321
  • Listing Broker
    Ty Kolsky
  • Listing Office
    Lennar Sales Corp.
Monthly Payment Estimate
  • Principal and Interest
    $5,242 / month
  • HOA
    $65 / month
  • Property Taxes
    $675 / month
  • Homeowners Insurance
    $196 / month
  • TOTAL
    $6,178 / month

  • based on 20% down
    ($199,990)
  • and a
    6.85% Interest Rate
  • About:
    All calculations are estimates only and provided by Mainview LLC. Actual amounts will vary.
House Details
  • Sqft (Total)
    3,134 sqft
  • Sqft (Finished)
    3,134 sqft
  • Sqft (Unfinished)
    None
  • Property Type
    House
  • Sub Type
    2 Story
  • Bedrooms
    5 Bedrooms
  • Bathrooms
    3 Bathrooms
  • Lot
    4,567 sqft Lot
  • Lot Size Source
    Plot Plan
  • Lot #
    5
  • Project
    Lennar at Garibaldi
  • Total Stories
    2 stories
  • Basement
    None
  • Sqft Source
    Builder Site Plan
Property Tax Info
  • 2026 Property Taxes
    $8,100 / year
  • No Senior Exemption
Public Parcel Data & Maps
  • County
    Snohomish County
  • Parcel #
    005
  • County Website
    Unspecified
  • County Parcel Map
    Unspecified
  • County GIS Map
    Unspecified
  • About
    County links provided by Mainview LLC
Schools
  • School District
    Monroe
  • Elementary
    Chain Lake Elem
  • Middle
    Park Place Middle Sc
  • High School
    Monroe High
HOA
  • HOA Dues
    $65 / month
  • Fees Assessed
    Monthly
  • HOA Dues Include
    Common Area Maintenance
  • HOA Contact
    J & M Managment 253-848-1947
  • Management Contact
Community Features
  • Community Features
    CCRs
    Park
    Playground
Parking
  • Covered
    2-Car
  • Types
    Driveway
    Attached Garage
  • Has Garage
    Yes
  • Nbr of Assigned Spaces
    2
Construction
  • Year Built
    2026
  • New Construction
    Yes
  • Construction State
    Unspecified
  • Home Builder
    Lennar
Cooling
  • Includes
    Forced Air
    Heat Pump
Heating
  • Includes
    90%+ High Efficiency
    Forced Air
    Heat Pump
Interior
  • Flooring
    Ceramic Tile
    Vinyl Plank
    Carpet
  • Features
    Bath Off Primary
    Dbl Pane/Storm Window
    Dining Room
    Fireplace
    High Tech Cabling
    Loft
    Pantry
    SMART Wired
    Walk-In Closet(s)
    Water Heater
Property
  • Lot Features
    Curbs
    Paved
    Sidewalk
Appliances
  • Included
    Dishwasher
    Disposal
    Microwave
    Refrigerator
    Stove(s)/Range(s)
Terms
  • 3rd Party Approval Required)
    No
  • Bank Owned (REO)
    No
  • Complex FHA Availability
    Unspecified
  • Potential Terms
    Cash
    Conventional
    FHA
    USDA Loan
    VA Loan
Utilities
  • Energy
    Electric
  • Sewer
    Sewer Connected
  • Water Source
    Public
Additional Info
  • Waterfront
    No
  • Air Conditioning (A/C)
    Yes
  • Buyer Broker's Compensation
    2%
  • MLS Area #
    Area 750
  • Number of Photos
    27
  • Last Modification Time
    Saturday, March 28, 2026 3:44 PM
  • System Listing ID
    5533791
Update Info
  • First For Sale
    2026-03-26 14:48:00
Listing details based on information submitted to the MLS GRID as of Saturday, March 28, 2026 3:44 PM. All data is obtained from various sources and may not have been verified by broker or MLS GRID. Supplied Open House Information is subject to change without notice. All information should be independently reviewed and verified for accuracy. Properties may or may not be listed by the office/agent presenting the information.
View
Sort

Sharing

 
For Sale 6 Days Online
$999,950  
5 BR    3 BA    3,134 SQFT  
Offer Review: Anytime
NWMLS #2498321. Ty Kolsky, Lennar Sales Corp.
Map
 
Listing information is provided by the listing agent except as follows: BuilderB indicates that our system has grouped this listing under a home builder name that doesn't match the name provided by the listing broker. DevelopmentD indicates that our system has grouped this listing under a development name that doesn't match the name provided by the listing broker.