to
Reset
Houses
Townhouses
Condos
Land
Price
to
SQFT
to
Bdrms
to
Baths
to
Lot
to
Yr Built
to
Sold
Listed within...
Listed at least...
Offer Review
New Construction
Waterfront
Short-Sales
REO
Parking
to
Unit Flr
to
Unit Nbr
Listings
Neighborhoods
Complexes
Developments
Cities
Counties
Zip Codes
Neighborhood · Condo · Development
School District
Zip Code
City
County
Builder
Listing Numbers
Broker LAG
Boundary Lines
Labels
View
Sort
For Sale 25 Days Online
$900,000
8 Bedrooms
3 Bathrooms
1,561 Sqft Townhome
Built 2022
1,445 Sqft Lot
No Garage
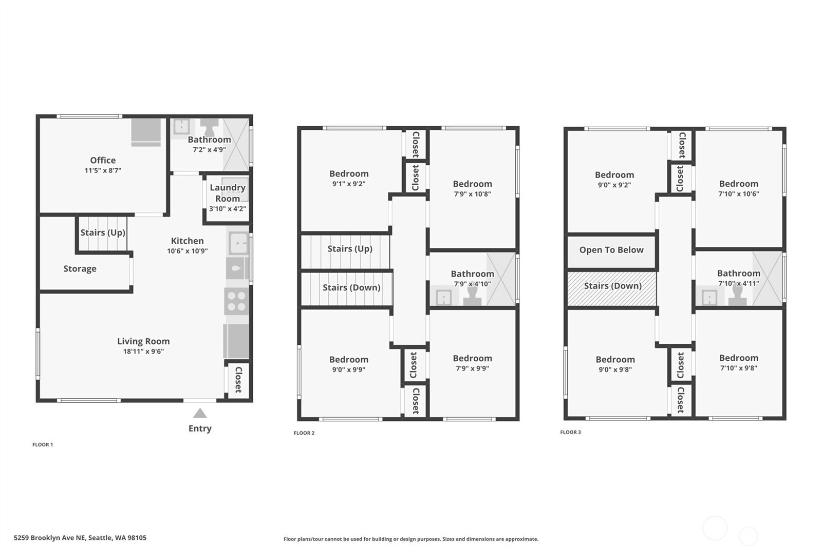
8-bedroom, 3-bath UW townhouse near campus, surrounded by coffee shops, restaurants, and close to the light rail station and multiple bus stops, with a Walk Score of 98. The main floor features a modern kitchen with stainless steel appliances, ample cabinetry, and a pantry that opens to the living area, plus durable LVP flooring, a dedicated study room, an additional refrigerator, a washer/dryer, and a full bathroom. Upstairs, two levels each offer 4 bedrooms and 1 bathroom. Located in one of Seattle’s most sought-after rental markets, this property presents a rare opportunity to own a high-demand investment near UW.
Offer Review
Will review offers when submitted
Listing source NWMLS MLS #
2501222
Listed by
Torrey Morales, Real Property Associates
Gordon Stephenson, Real Property Associates
Contact our
University District
Real Estate Lead
Wicklund Real Estate
Phone...
Bedroom & Bathroom Layout
THIRD
BDRM
BDRM
BDRM
BDRM
FULL
BATH
SECOND
BDRM
BDRM
BDRM
BDRM
FULL
BATH
MAIN
FULL
BATH
Property History
Apr 02, 2026
Listed
$900,000
NWMLS #2501222
More
Listing Details
  • Status
    For Sale
  • Price
    $900,000
  • Original Price
    Same as current
  • List Date
    April 2, 2026
  • Last Status Change
    April 3, 2026
  • Last Update
    April 16, 2026
  • Days on Market
    25 Days
  • Cumulative DOM
    25 Days
  • $/sqft (Total)
    $577/sqft
  • $/sqft (Finished)
    $577/sqft
  • Listing Source
  • MLS Number
    2501222
  • Listing Broker
    Torrey Morales
  • Listing Office
    Real Property Associates
Monthly Payment Estimate
  • Principal and Interest
    $4,718 / month
  • Property Taxes
    $667 / month
  • Homeowners Insurance
    $178 / month
  • TOTAL
    $5,563 / month

  • based on 20% down
    ($180,000)
  • and a
    6.85% Interest Rate
  • About:
    All calculations are estimates only and provided by Mainview LLC. Actual amounts will vary.
Townhouse Details
  • Unit Floor
    Unspecified
  • Sqft (Total)
    1,561 sqft
  • Sqft (Finished)
    1,561 sqft
  • Sqft (Unfinished)
    None
  • Property Type
    Townhome
  • Sub Type
    Townhouse
  • Bedrooms
    8 Bedrooms
  • Bathrooms
    3 Bathrooms
  • Lot
    1,445 sqft Lot
  • Lot Size Source
    Public Records
  • Lot #
    Unspecified
  • Project
    Unspecified
  • Total Stories
    Unspecified
  • Basement
    None
  • Sqft Source
    Public Records
Property Tax Info
  • 2026 Property Taxes
    $8,007 / year
  • No Senior Exemption
Public Parcel Data & Maps
Schools
  • School District
    Seattle
  • Elementary
    Buyer To Verify
  • Middle
    Buyer To Verify
  • High School
    Buyer To Verify
HOA
  • HOA Dues
    Unspecified
  • Fees Assessed
    Unspecified
  • HOA Dues Include
    Unspecified
  • HOA Contact
    Unspecified
  • Management Contact
Building
  • Name
    Unspecified
  • Units in Complex
    Unspecified
  • Units in Building
    Unspecified
  • Stories in Building
    Unspecified
Parking
  • Covered
    Unspecified
  • Types
    None
  • Has Garage
    No
Construction
  • Year Built
    2022
  • Home Builder
    Unspecified
Cooling
  • Includes
    Ductless
Heating
  • Includes
    Ductless
    Wall Furnace
Interior
  • Flooring
    Vinyl Plank
  • Features
    Water Heater
Property
  • Lot Features
    Alley
Appliances
  • Included
    Dishwasher
    Disposal
    Dryer
    Microwave
    Refrigerator
    Stove(s)/Range(s)
    Washer
Terms
  • 3rd Party Approval Required)
    No
  • Bank Owned (REO)
    No
  • Complex FHA Availability
    Unspecified
  • Potential Terms
    Cash
    Conventional
Utilities
  • Energy
    Electric
  • Sewer
    Sewer Connected
  • Water Source
    Public
Additional Info
  • Waterfront
    No
  • Air Conditioning (A/C)
    Yes
  • Buyer Broker's Compensation
    2.5%
  • MLS Area #
    Area 710
  • Number of Photos
    40
  • Last Modification Time
    Thursday, April 16, 2026 3:57 PM
  • System Listing ID
    5537036
Update Info
  • First For Sale
    2026-04-02 19:09:30
Listing details based on information submitted to the MLS GRID as of Thursday, April 16, 2026 3:57 PM. All data is obtained from various sources and may not have been verified by broker or MLS GRID. Supplied Open House Information is subject to change without notice. All information should be independently reviewed and verified for accuracy. Properties may or may not be listed by the office/agent presenting the information.
View
Sort

Sharing

 
For Sale 25 Days Online
$900,000  
8 BR    3 BA    1,561 SQFT  
Offer Review: Anytime
NWMLS #2501222. Torrey Morales, Real Property Associates
Map
 
Listing information is provided by the listing agent except as follows: BuilderB indicates that our system has grouped this listing under a home builder name that doesn't match the name provided by the listing broker. DevelopmentD indicates that our system has grouped this listing under a development name that doesn't match the name provided by the listing broker.