to
Reset
Houses
Townhouses
Condos
Land
Price
to
SQFT
to
Bdrms
to
Baths
to
Lot
to
Yr Built
to
Sold
Listed within...
Listed at least...
Offer Review
New Construction
Waterfront
Short-Sales
REO
Parking
to
Unit Flr
to
Unit Nbr
Listings
Neighborhoods
Complexes
Developments
Cities
Counties
Zip Codes
Neighborhood · Condo · Development
School District
Zip Code
City
County
Builder
Listing Numbers
Broker LAG
Boundary Lines
Labels
View
Sort
Pending Went pending in 1 days
$2,240,000
5 Bedrooms
3 Bathrooms
3,630 Sqft House
Built 1910
4,232 Sqft Lot
1-Car Garage
PENDING SALE. This listing went Pending on April 9, 2026

Some pending sales don't become final. Contact Us if this property is really important to you so we can check on it right now. The seller has reached an agreement with a buyer to sell this property. If things go as planned, the sale will become final in the near future. The buyer and seller have agreed on a price but it's not public until the sale closes. The last published list price was $2,240,000.
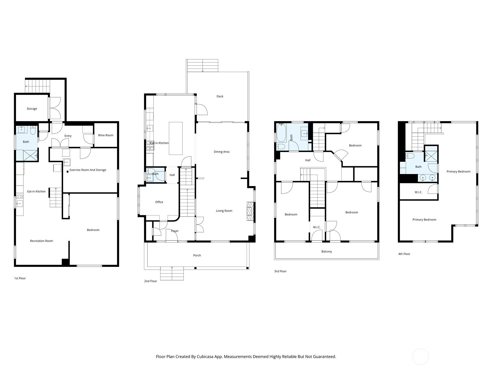
Breathtaking 270-degree views of the Olympics, Cascades, Mt. Baker, and Lake Washington. Modern finishes throughout. This is North Capitol Hill at its finest: a meticulously maintained 1910 Craftsman with all its original charm, thoughtfully renovated by award-winning Board & Vellum in 2018. A wide covered front porch welcomes you into a light-filled interior where timeless architecture meets refined updates. Glass doors open to an ironwood entertaining deck overlooking a secluded backyard for effortless indoor-outdoor living. The kitchen anchors the main floor with a waterfall-edge island, custom cabinetry, quartz counters, Liebherr refrigerator, and Miele dishwasher. A private office and powder room complete the level. Upstairs, newly refinished fir floors lead to three spacious bedrooms and a full bath. The top-floor primary suite offers something few homes can match: sweeping mountain and water views framed by all-new Marvin fiberglass windows, with a walk-in closet and en-suite bath. In the finished basement, an apartment-style suite features a family room with built-in surround sound, a second kitchen, bedroom, bathroom, laundry, spaces for home gym and wine cellar, with a private exterior entrance ideal for guests or multigenerational living. Nest-controlled heating and A/C, spacious carport with storage, and a shared driveway. Steps to several local parks, independent cafés, and excellent private schools, with easy access to both I-90 and SR-520 highways.
Offer Review
No offer review date was specified
Listing source NWMLS MLS #
2499654
Listed by
Brad Hinckley, COMPASS
Contact our
Capitol Hill
Real Estate Lead
Wicklund Real Estate
Phone...
Bedroom & Bathroom Layout
THIRD
BDRM
¾
BATH
SECOND
BDRM
BDRM
BDRM
FULL
BATH
MAIN
½
BATH
LOWER
BDRM
¾
BATH
Property History
Apr 09, 2026
Went Pending
$2,240,000
NWMLS #2499654
Apr 08, 2026
Listed
$2,240,000
NWMLS #2499654
Oct 14, 2020
Sold
$1,820,000
NWMLS #1648137 Annualized 10% / yr
Jun 02, 2011
Sold
$745,000
NWMLS #153064 Annualized -5.6% / yr
Aug 07, 2006
Sold
$985,000
NWMLS #26108434
More
Listing Details
  • Status
    Pending
  • Last Listed Price
    $2,240,000
  • Original Price
    Same as current
  • List Date
    April 8, 2026
  • Last Status Change
    April 9, 2026
  • Last Update
    April 9, 2026
  • Days on Market
    2 Days
  • Cumulative DOM
    1 Days
  • Pending Date
    April 9, 2026
  • Days to go Pending
    1
  • $/sqft (Total)
    $617/sqft
  • $/sqft (Finished)
    $617/sqft
  • Listing Source
  • MLS Number
    2499654
  • Listing Broker
    Brad Hinckley
  • Listing Office
    COMPASS
Monthly Payment Estimate
  • Principal and Interest
    $11,742 / month
  • Property Taxes
    $1,908 / month
  • Homeowners Insurance
    $423 / month
  • TOTAL
    $14,073 / month

  • based on 20% down
    ($448,000)
  • and a
    6.85% Interest Rate
  • About:
    All calculations are estimates only and provided by Mainview LLC. Actual amounts will vary.
House Details
  • Sqft (Total)
    3,630 sqft
  • Sqft (Finished)
    3,630 sqft
  • Sqft (Unfinished)
    None
  • Property Type
    House
  • Sub Type
    Multi Level
  • Bedrooms
    5 Bedrooms
  • Bathrooms
    3 Bathrooms
  • Lot
    4,232 sqft Lot
  • Lot Size Source
    Realist.com
  • Lot #
    Unspecified
  • Project
    Unspecified
  • Total Stories
    Unspecified
  • Basement
    Daylight
    Finished
  • Sqft Source
    Realist.com + Bldg Plans
Property Tax Info
  • 2026 Property Taxes
    $22,897 / year
  • No Senior Exemption
Public Parcel Data & Maps
Schools
  • School District
    Seattle
  • Elementary
    Montlake
  • Middle
    Meany Mid
  • High School
    Garfield High
HOA
  • HOA Dues
    Unspecified
  • Fees Assessed
    Unspecified
  • HOA Dues Include
    Unspecified
  • HOA Contact
    Unspecified
  • Management Contact
Parking
  • Covered
    1-Car
  • Types
    Detached Carport
  • Has Garage
    Yes
  • Nbr of Assigned Spaces
    1
  • Carport Stalls
    1
Views
  • City
    Lake
    Mountains
    Territorial
Construction
  • Year Built
    1910
  • Home Builder
    Unspecified
Cooling
  • Includes
    90%+ High Efficiency
    Central Air
    Ductless
    Forced Air
    Heat Pump
Heating
  • Includes
    90%+ High Efficiency
    Ductless
    Forced Air
    Heat Pump
Interior
  • Flooring
    Ceramic Tile
    Engineered Hardwood
    Hardwood
    Softwood
    Carpet
  • Features
    Second Kitchen
    Bath Off Primary
    Dbl Pane/Storm Window
    Dining Room
    Fireplace
    French Doors
    Walk-In Closet(s)
    Water Heater
Property
  • Lot Features
    Curbs
    Paved
    Sidewalk
  • Site Features
    Cable TV
    Deck
    Fenced-Partially
    Gas Available
    High Speed Internet
    Patio
Appliances
  • Included
    Dishwasher
    Disposal
    Dryer
    Microwave
    Refrigerator
    Stove(s)/Range(s)
    Washer
Terms
  • 3rd Party Approval Required)
    No
  • Bank Owned (REO)
    No
  • Complex FHA Availability
    Unspecified
  • Potential Terms
    Cash
    Conventional
Utilities
  • Energy
    Electric
    Natural Gas
  • Sewer
    Sewer Connected
  • Water Source
    Public
Additional Info
  • Waterfront
    No
  • Air Conditioning (A/C)
    Yes
  • Buyer Broker's Compensation
    2.5%
  • MLS Area #
    Area 390
  • Number of Photos
    40
  • Last Modification Time
    Thursday, April 9, 2026 12:54 PM
  • System Listing ID
    5538595
Update Info
  • Pending Or Ctg
    2026-04-09 13:03:21
  • First For Sale
    2026-04-08 10:54:18
Listing details based on information submitted to the MLS GRID as of Thursday, April 9, 2026 12:54 PM. All data is obtained from various sources and may not have been verified by broker or MLS GRID. Supplied Open House Information is subject to change without notice. All information should be independently reviewed and verified for accuracy. Properties may or may not be listed by the office/agent presenting the information.
View
Sort

Sharing

 
Pending April 9, 2026
$2,240,000  
5 BR    3 BA    3,630 SQFT  
NWMLS #2499654. Brad Hinckley, COMPASS
Map
 
Listing information is provided by the listing agent except as follows: BuilderB indicates that our system has grouped this listing under a home builder name that doesn't match the name provided by the listing broker. DevelopmentD indicates that our system has grouped this listing under a development name that doesn't match the name provided by the listing broker.