to
Reset
Houses
Townhouses
Condos
Land
Price
to
SQFT
to
Bdrms
to
Baths
to
Lot
to
Yr Built
to
Sold
Listed within...
Listed at least...
Offer Review
New Construction
Waterfront
Short-Sales
REO
Parking
to
Unit Flr
to
Unit Nbr
Listings
Neighborhoods
Complexes
Developments
Cities
Counties
Zip Codes
Neighborhood · Condo · Development
School District
Zip Code
City
County
Builder
Listing Numbers
Broker LAG
Boundary Lines
Labels
View
Sort
Sold Closed April 10, 2023
$873,219
4 Bedrooms
3 Bathrooms
1,939 Sqft House
New Construction
Built 2021
1,700 Sqft Lot
2-Car Garage
HOA Dues $85 / month
SALE HISTORY
List price was $814,995
It took 14 days to go pending.
Then 500 days to close at $873,219
Closed at $450/SQFT.
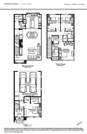
THE WAIT IS OVER - The Armstrong Home Design now pre-selling! The Ridge @ Big Rock by Toll Brothers: Master planned community w/clubhouse & 7 parks. Moonstone Collection: thoughtfully designed, paired single-family homes featuring 4 Bd designs w/2-car garages. The Armstrong features a desirable 1st floor guest suite, open main floor living design w/dining area, kitchen w/center island & pantry, inviting master suite w/large walk-in closet. Time to personalize YOUR new home! Enjoy living in Duvall w/ shops, restaurants, trails & MSFT connector!
Offer Review
No offer review date was specified
Builder
Project
The Ridge at Big Rock
Listing source NWMLS MLS #
1864423
Listed by
Kim Buchan, Toll Brothers Real Estate, Inc
Michele Warinner, Toll Brothers Real Estate, Inc
Buyer's broker
Kim Buchan, Toll Brothers Real Estate, Inc
Contact our
Duvall
Real Estate Lead
John L. Scott
Phone...
Time Adjusted Estimated Value
County Wide
  • In
    King County WA
  • prices for
    Single Family Homes
  • have changed
    10%
  • since
    Apr 10, 2023
  • so a sale price of
    $873,219
  • would be approximately this amount today
    $979,664
Assumptions: The original sale amount reflected a normal arms length sale. Any major updates would add to the value. Any damage or deferred maintenance would subtract from the value.
Bedroom & Bathroom Layout
SECOND
BDRM
BDRM
BDRM
FULL
BATH
¾
BATH
MAIN
½
BATH
Property History
Mar 06, 2026
Listed
$879,950
Nov 12, 2021
Listed
$814,995
NWMLS #1864423
More
Listing Details
  • Sale Price
    $873,219
  • Closing Date
    April 10, 2023
  • Last List Price
    $814,995
  • Original Price
    Same
  • List Date
    November 12, 2021
  • Pending Date
    November 26, 2021
  • Days to go Pending
    14 days
  • $/sqft (Total)
    $450/sqft
  • $/sqft (Finished)
    $450/sqft
  • Listing Source
  • MLS Number
    1864423
  • Listing Broker
    Kim Buchan
  • Listing Office
    Toll Brothers Real Estate, Inc
  • Buyer's Broker
    Kim Buchan
  • Buyer Broker's Firm
    Toll Brothers Real Estate, Inc
Monthly Payment Estimate
  • Principal and Interest
    $4,577 / month
  • HOA
    $85 / month
  • Property Taxes
    $583 / month
  • Homeowners Insurance
    $173 / month
  • TOTAL
    $5,418 / month

  • based on 20% down
    ($174,644)
  • and a
    6.85% Interest Rate
  • About:
    All calculations are estimates only and provided by Mainview LLC. Actual amounts will vary.
House Details
  • Sqft (Total)
    1,939 sqft
  • Sqft (Finished)
    1,939 sqft
  • Sqft (Unfinished)
    None
  • Property Type
    House
  • Sub Type
    Multi Level
  • Bedrooms
    4 Bedrooms
  • Bathrooms
    3 Bathrooms
  • Lot
    1,700 sqft Lot
  • Lot Size Source
    Plan
  • Lot #
    299
  • Project
    The Ridge at Big Rock
  • Total Stories
    Unspecified
  • Sqft Source
    Plans
Property Tax Info
  • 2019 Property Taxes
    $7,000 / year
  • No Senior Exemption
Public Parcel Data & Maps
Schools
  • School District
    Riverview
  • Elementary
    Stillwater Elem
  • Middle
    Tolt Mid
  • High School
    Cedarcrest High
HOA
  • HOA Dues
    $85 / month
  • Fees Assessed
    Monthly
  • HOA Dues Include
    Unspecified
  • HOA Contact
    Unspecified
  • Management Contact
    Unspecified
Community Features
  • Community Features
    CCRs
    Club House
Parking
  • Covered
    2-Car
  • Types
    Attached Garage
  • Has Garage
    Yes
  • Nbr of Assigned Spaces
    2
Construction
  • Year Built
    2021
  • New Construction
    Yes
  • Construction State
    Unspecified
  • Home Builder
    Toll Brothers
Cooling
Heating
Interior
  • Flooring
    Ceramic Tile
    Hardwood
    Carpet
  • Features
    Central A/C
    Heat Pump
    Ceramic Tile
    Hardwood
    Wall to Wall Carpet
    Bath Off Primary
    Dining Room
    High Tech Cabling
    Security System
    Walk-In Closet(s)
Property
  • Lot Features
    Curbs
    Dead End Street
    Paved
    Sidewalk
  • Site Features
    Cable TV
    Gas Available
    High Speed Internet
Appliances
  • Included
    Dishwasher
    Disposal
    Microwave
    Stove/Range
Terms
  • Bank Owned (REO)
    No
Utilities
  • Energy
    Electric
    Natural Gas
  • Sewer
    Sewer Connected
  • Water Source
    Community
Additional Info
  • Waterfront
    No
  • Air Conditioning (A/C)
    Yes
  • Buyer Broker's Compensation
    Unspecified
  • MLS Area #
    Area 0
  • Number of Photos
    21
  • Last Modification Time
    Wednesday, May 24, 2023 12:06 PM
  • System Listing ID
    4996812
Update Info
  • First For Sale
    2021-11-12 04:00:00
Listing details based on information submitted to the MLS GRID as of Wednesday, May 24, 2023 12:06 PM. All data is obtained from various sources and may not have been verified by broker or MLS GRID. Supplied Open House Information is subject to change without notice. All information should be independently reviewed and verified for accuracy. Properties may or may not be listed by the office/agent presenting the information.
View
Sort

Sharing

 
Sold April 10, 2023
$873,219   $814,995
4 BR    3 BA    1,939 SQFT  
NWMLS #1864423. Kim Buchan, Toll Brothers Real Estate, Inc
Map
 
Listing information is provided by the listing agent except as follows: BuilderB indicates that our system has grouped this listing under a home builder name that doesn't match the name provided by the listing broker. DevelopmentD indicates that our system has grouped this listing under a development name that doesn't match the name provided by the listing broker.