to
Reset
Houses
Townhouses
Condos
Land
Price
to
SQFT
to
Bdrms
to
Baths
to
Lot
to
Yr Built
to
Sold
Listed within...
Listed at least...
Offer Review
New Construction
Waterfront
Short-Sales
REO
Parking
to
Unit Flr
to
Unit Nbr
Listings
Neighborhoods
Complexes
Developments
Cities
Counties
Zip Codes
Neighborhood · Condo · Development
School District
Zip Code
City
County
Builder
Listing Numbers
Broker LAG
Boundary Lines
Labels
View
Sort
Sold Closed September 23, 2025
$749,950
Originally $843,950
3 Bedrooms
2.5 Bathrooms
2,070 Sqft House
Lot 20
New Construction
Built 2025
4,024 Sqft Lot
2-Car Garage
HOA Dues $140 / month
SALE HISTORY
List price was $843,950
The price was later changed to $749,950.
It took 125 days to go pending.
Then 32 days to close at $749,950
Closed at $362/SQFT.
Welcome to Stillwater, the newest community by KB home! This lovely, two-story home, 2070 plan showcases an open layout & spacious great room. Entertain your guests in the modern kitchen w/ stainless steel appliances & large island. The primary suite includes a walk-in closet & connecting bath that offers a dual-sink vanity, walk-in shower. Bedroom & 3/4 bath on main flr. Relax after a long day on the covered back patio which overlooks landscaped & fenced backyard. Walk across to Davies Beach on LK Stevens! Commuter friendly to Hwy. 2, I-5, Seattle, Redmond & Eastside, near outdoor recreation at Stevens Pass & MT Pilchuck, less than 20 mins to Paine Field & Boeing, Great shopping, dining & entertainment nearby. This is a PRESALE Lot.
Offer Review
No offer review date was specified
Builder
Project
Stillwater
Listing source NWMLS MLS #
2361856
Listed by
Edward Rose, KB Home Sales
Stacey Brahm, KB Home Sales
Buyer's broker
Kenny Ma, Eastside Asset Management LLC
Contact our
Lake Stevens
Real Estate Lead
Buck Real Estate
Phone...
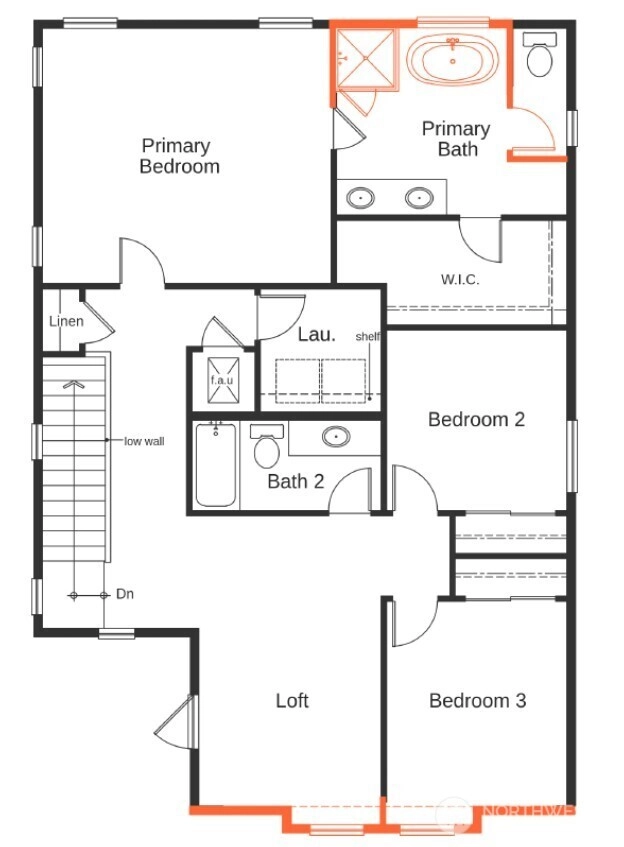
Bedroom & Bathroom Layout
SECOND
BDRM
BDRM
BDRM
FULL
BATH
FULL
BATH
MAIN
½
BATH
Property History
Sep 23, 2025
Sold
$749,950
NWMLS #2361856
Aug 22, 2025
Went Pending
$749,950
NWMLS #2361856
Jul 16, 2025
Price Reduction arrow_downward
$749,950
NWMLS #2361856
Jul 02, 2025
Price Reduction arrow_downward
$789,950
NWMLS #2361856
May 21, 2025
Price Reduction arrow_downward
$813,191
NWMLS #2361856
May 08, 2025
Price Reduction arrow_downward
$833,191
NWMLS #2361856
Apr 19, 2025
Listed
$843,950
NWMLS #2361856
Jan 29, 2025
Price Increase arrow_upward
$810,535
NWMLS #2323577
Jan 16, 2025
Listed
$778,850
NWMLS #2323577
More
Listing Details
  • Sale Price
    $749,950
  • Closing Date
    September 23, 2025
  • Last List Price
    $749,950
  • Original Price
    $843,950
  • List Date
    April 19, 2025
  • Pending Date
    August 22, 2025
  • Days to go Pending
    125 days
  • $/sqft (Total)
    $362/sqft
  • $/sqft (Finished)
    $362/sqft
  • Listing Source
  • MLS Number
    2361856
  • Listing Broker
    Edward Rose
  • Listing Office
    KB Home Sales
  • Buyer's Broker
    Kenny Ma
  • Buyer Broker's Firm
    Eastside Asset Management LLC
Monthly Payment Estimate
  • Principal and Interest
    $3,931 / month
  • HOA
    $140 / month
  • Property Taxes
    / month
  • Homeowners Insurance
    $150 / month
  • TOTAL
    $4,221 / month

  • based on 20% down
    ($149,990)
  • and a
    6.85% Interest Rate
  • About:
    All calculations are estimates only and provided by Mainview LLC. Actual amounts will vary.
House Details
  • Unit #
    20
  • Sqft (Total)
    2,070 sqft
  • Sqft (Finished)
    2,070 sqft
  • Sqft (Unfinished)
    None
  • Property Type
    House
  • Sub Type
    2 Story
  • Bedrooms
    3 Bedrooms
  • Bathrooms
    2.5 Bathrooms
  • Lot
    4,024 sqft Lot
  • Lot Size Source
    plat map
  • Lot #
    20
  • Project
    Stillwater
  • Total Stories
    2 stories
  • Basement
    None
  • Sqft Source
    Builder
Property Tax Info
  • Property Taxes
    Unspecified
  • No Senior Exemption
Public Parcel Data & Maps
  • County
    Snohomish County
  • Parcel #
    1240500002000
  • County Website
    Unspecified
  • County Parcel Map
    Unspecified
  • County GIS Map
    Unspecified
  • About
    County links provided by Mainview LLC
Schools
  • School District
    Lake Stevens
  • Elementary
    Glenwood Elem
  • Middle
    Lake Stevens Middle
  • High School
    Lake Stevens Snr Hig
HOA
  • HOA Dues
    $140 / month
  • Fees Assessed
    Monthly
  • HOA Dues Include
    Unspecified
  • HOA Contact
    Unspecified
  • Management Contact
    Unspecified
Community Features
  • Community Features
    CCRs
    Playground
Parking
  • Covered
    2-Car
  • Types
    Attached Garage
  • Has Garage
    Yes
  • Nbr of Assigned Spaces
    2
Construction
  • Year Built
    2025
  • New Construction
    Yes
  • Construction State
    Unspecified
  • Home Builder
    KB Home
Cooling
  • Includes
    90%+ High Efficiency
Heating
  • Includes
    90%+ High Efficiency
Interior
  • Flooring
    Vinyl Plank
    Carpet
  • Features
    Bath Off Primary
    Fireplace
    Loft
Property
Appliances
  • Included
    Dishwasher(s)
    Disposal
    Microwave(s)
    Stove(s)/Range(s)
Terms
  • Bank Owned (REO)
    No
Utilities
  • Energy
    Electric
  • Sewer
    Sewer Connected
  • Water Source
    Public
Additional Info
  • Waterfront
    No
  • Air Conditioning (A/C)
    Yes
  • Buyer Broker's Compensation
    2%base price
  • MLS Area #
    Area 760
  • Number of Photos
    12
  • Last Modification Time
    Tuesday, September 23, 2025 2:41 PM
  • System Listing ID
    5424105
Update Info
  • Closed
    2025-09-23 14:58:49
  • Pending Or Ctg
    2025-08-22 09:53:20
  • Price Reduction
    2025-07-16 12:54:41
  • First For Sale
    2025-04-19 11:39:07
Listing details based on information submitted to the MLS GRID as of Tuesday, September 23, 2025 2:41 PM. All data is obtained from various sources and may not have been verified by broker or MLS GRID. Supplied Open House Information is subject to change without notice. All information should be independently reviewed and verified for accuracy. Properties may or may not be listed by the office/agent presenting the information.
View
Sort

Sharing

 
Sold September 23, 2025
$749,950  
3 BR    2.5 BA    2,070 SQFT  
NWMLS #2361856. Edward Rose, KB Home Sales
Map
 
Listing information is provided by the listing agent except as follows: BuilderB indicates that our system has grouped this listing under a home builder name that doesn't match the name provided by the listing broker. DevelopmentD indicates that our system has grouped this listing under a development name that doesn't match the name provided by the listing broker.