to
Reset
Houses
Townhouses
Condos
Land
Price
to
SQFT
to
Bdrms
to
Baths
to
Lot
to
Yr Built
to
Sold
Listed within...
Listed at least...
Offer Review
New Construction
Waterfront
Short-Sales
REO
Parking
to
Unit Flr
to
Unit Nbr
Listings
Neighborhoods
Complexes
Developments
Cities
Counties
Zip Codes
Neighborhood · Condo · Development
School District
Zip Code
City
County
Builder
Listing Numbers
Broker LAG
Boundary Lines
Labels
View
Sort
Sold Closed January 9, 2026
$709,950
Originally $788,450
4 Bedrooms
2.5 Bathrooms
2,350 Sqft House
New Construction
Built 2025
3,600 Sqft Lot
2-Car Garage
HOA Dues $174 / month
SALE HISTORY
List price was $788,450
The price was later changed to $709,950.
It took 68 days to go pending.
Then 54 days to close at $709,950
Closed at $302/SQFT.
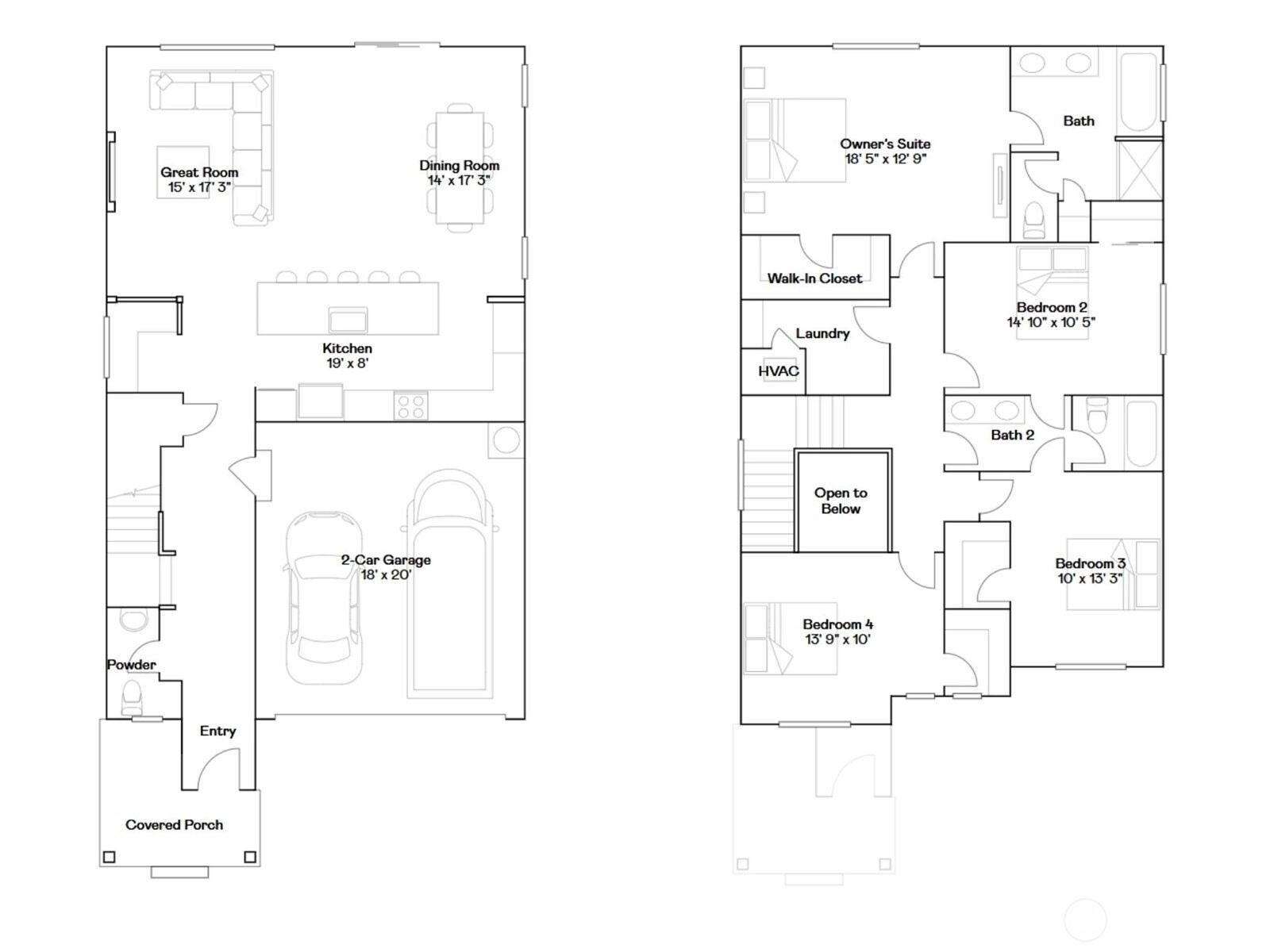
Welcome to the Hickory II on homesite 42 at Ten Trails Mountain View, a Lennar community. Live at Ten Trails to enjoy an active lifestyle with trails and parks, plus future conveniences like dining, shopping, and entertainment close to home. Enjoy open-concept living among the kitchen, dining area, and great room, plus a convenient tech space. Upstairs hosts four bedrooms, including a luxurious owner’s suite with a spa-like bath and walk-in closet. With Lennar’s signature Everything’s Included®, enjoy new stainless steel appliances, quartz countertops, shaker-style cabinetry and more—all at no extra cost. Buyer’s broker must be registered during the customer’s first interaction with a Lennar Associate to be eligible for compensation.
Offer Review
No offer review date was specified
Builder
Project
Lennar at Ten Trails Mountain View
Listing source NWMLS MLS #
2431506
Listed by
Paul G. Foster, Lennar Sales Corp.
Nathan Olotoa, Lennar Sales Corp.
Buyer's broker
Jeffrey Napalan, Lennar Sales Corp.
Contact our
Black Diamond
Real Estate Lead
TPG Realty | Keller Williams
Phone...
Bedroom & Bathroom Layout
SECOND
BDRM
BDRM
BDRM
BDRM
FULL
BATH
FULL
BATH
MAIN
½
BATH
Property History
Jan 10, 2026
Sold
$709,950
NWMLS #2431506
Jan 03, 2026
Went Pending
$709,950
NWMLS #2431506
Dec 08, 2025
Went Contingent
$709,950
NWMLS #2431506
Nov 28, 2025
Went Pending
$709,950
NWMLS #2431506
Nov 11, 2025
Price Reduction arrow_downward
$709,950
NWMLS #2431506
Nov 06, 2025
Price Reduction arrow_downward
$711,750
NWMLS #2431506
Nov 01, 2025
Price Reduction arrow_downward
$724,950
NWMLS #2431506
Oct 14, 2025
Price Reduction arrow_downward
$749,950
NWMLS #2431506
Oct 06, 2025
Price Reduction arrow_downward
$763,050
NWMLS #2431506
Oct 02, 2025
Price Reduction arrow_downward
$767,100
NWMLS #2431506
Sep 25, 2025
Price Reduction arrow_downward
$771,050
NWMLS #2431506
Sep 11, 2025
Price Reduction arrow_downward
$774,950
NWMLS #2431506
Sep 09, 2025
Listed
$788,450
NWMLS #2431506
More
Listing Details
  • Sale Price
    $709,950
  • Closing Date
    January 9, 2026
  • Last List Price
    $709,950
  • Original Price
    $788,450
  • List Date
    September 9, 2025
  • Pending Date
    November 16, 2025
  • Days to go Pending
    68 days
  • $/sqft (Total)
    $302/sqft
  • $/sqft (Finished)
    $302/sqft
  • Listing Source
  • MLS Number
    2431506
  • Listing Broker
    Paul G. Foster
  • Listing Office
    Lennar Sales Corp.
  • Buyer's Broker
    Jeffrey Napalan
  • Buyer Broker's Firm
    Lennar Sales Corp.
Monthly Payment Estimate
  • Principal and Interest
    $3,722 / month
  • HOA
    $174 / month
  • Property Taxes
    $639 / month
  • Homeowners Insurance
    $143 / month
  • TOTAL
    $4,679 / month

  • based on 20% down
    ($141,990)
  • and a
    6.85% Interest Rate
  • About:
    All calculations are estimates only and provided by Mainview LLC. Actual amounts will vary.
House Details
  • Sqft (Total)
    2,350 sqft
  • Sqft (Finished)
    2,350 sqft
  • Sqft (Unfinished)
    None
  • Property Type
    House
  • Sub Type
    2 Story
  • Bedrooms
    4 Bedrooms
  • Bathrooms
    2.5 Bathrooms
  • Lot
    3,600 sqft Lot
  • Lot Size Source
    Plot Plan
  • Lot #
    42
  • Project
    Lennar at Ten Trails Mountain View
  • Total Stories
    2 stories
  • Basement
    None
  • Sqft Source
    Builder Floorplan
Property Tax Info
  • 2025 Property Taxes
    $7,672 / year
  • No Senior Exemption
Public Parcel Data & Maps
Schools
  • School District
    Enumclaw
  • Elementary
    Black Diamond Elem
  • Middle
    Thunder Mtn Mid
  • High School
    Enumclaw Snr High
HOA
  • HOA Dues
    $174 / month
  • Fees Assessed
    Quarterly
  • HOA Dues Include
    Internet
  • HOA Contact
    Unspecified
  • Management Contact
    Unspecified
Community Features
  • Community Features
    Athletic Court
    CCRs
    Park
    Playground
    Trail(s)
Parking
  • Covered
    2-Car
  • Types
    Driveway
    Attached Garage
  • Has Garage
    Yes
  • Nbr of Assigned Spaces
    2
Construction
  • Year Built
    2025
  • New Construction
    Yes
  • Construction State
    Unspecified
  • Home Builder
    Lennar
Cooling
  • Includes
    Forced Air
    Heat Pump
Heating
  • Includes
    90%+ High Efficiency
    Forced Air
    Heat Pump
Interior
  • Flooring
    Ceramic Tile
    Laminate
    Vinyl
    Vinyl Plank
    Carpet
  • Features
    Bath Off Primary
    Double Pane/Storm Window
    Dining Room
    Fireplace
    Walk-In Closet(s)
    Water Heater
Property
  • Lot Features
    Paved
    Sidewalk
  • Site Features
    Athletic Court
Appliances
  • Included
    Dishwasher(s)
    Disposal
    Double Oven
    Microwave(s)
    Refrigerator(s)
    Stove(s)/Range(s)
Terms
  • Bank Owned (REO)
    No
Utilities
  • Energy
    Electric
  • Sewer
    Sewer Connected
  • Water Source
    Public
Additional Info
  • Waterfront
    No
  • Air Conditioning (A/C)
    Yes
  • Buyer Broker's Compensation
    2.5%
  • MLS Area #
    Area 320
  • Number of Photos
    23
  • Last Modification Time
    Saturday, January 10, 2026 10:40 AM
  • System Listing ID
    5480714
Update Info
  • Closed
    2026-01-10 10:56:58
  • Pending Or Ctg
    2026-01-03 17:00:52
  • Price Reduction
    2025-11-11 10:23:25
  • First For Sale
    2025-09-09 15:02:03
Listing details based on information submitted to the MLS GRID as of Saturday, January 10, 2026 10:40 AM. All data is obtained from various sources and may not have been verified by broker or MLS GRID. Supplied Open House Information is subject to change without notice. All information should be independently reviewed and verified for accuracy. Properties may or may not be listed by the office/agent presenting the information.
View
Sort

Sharing

 
Sold January 9, 2026
$709,950  
4 BR    2.5 BA    2,350 SQFT  
NWMLS #2431506. Paul G. Foster, Lennar Sales Corp.
Map
 
Listing information is provided by the listing agent except as follows: BuilderB indicates that our system has grouped this listing under a home builder name that doesn't match the name provided by the listing broker. DevelopmentD indicates that our system has grouped this listing under a development name that doesn't match the name provided by the listing broker.