to
Reset
Houses
Townhouses
Condos
Land
Price
to
SQFT
to
Bdrms
to
Baths
to
Lot
to
Yr Built
to
Sold
Listed within...
Listed at least...
Offer Review
New Construction
Waterfront
Short-Sales
REO
Parking
to
Unit Flr
to
Unit Nbr
Listings
Neighborhoods
Complexes
Developments
Cities
Counties
Zip Codes
Neighborhood · Condo · Development
School District
Zip Code
City
County
Builder
Listing Numbers
Broker LAG
Boundary Lines
Labels
View
Sort
For Sale 152 Days Online
$754,950
Originally $899,950
5 Bedrooms
3 Bathrooms
3,360 Sqft House
New Construction
Built 2025
4,500 Sqft Lot
2-Car Garage
HOA Dues $88 / month
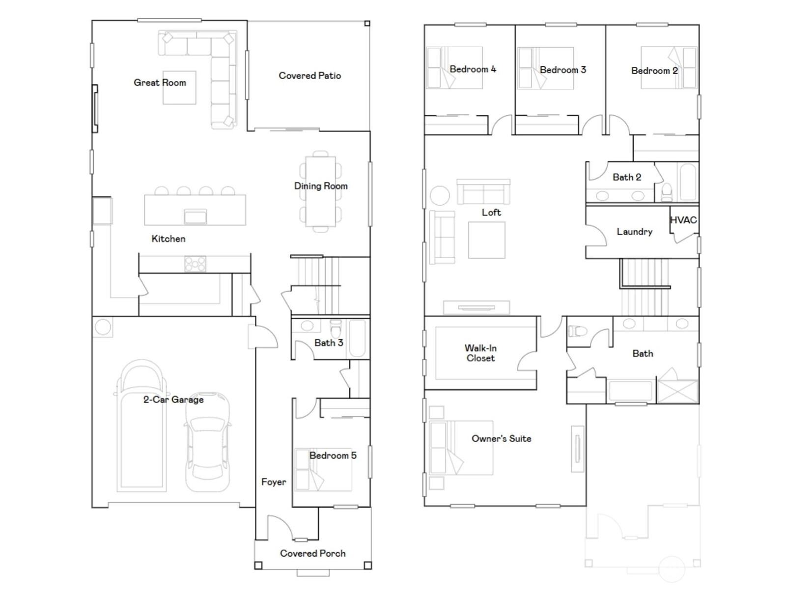
Welcome to the South-facing Lilac at Tehaleh Glacier Pointe by Lennar! Situated on a quiet cul-de-sac homesite backing to a serene wooded area, this home offers a sense of privacy. A bedroom and full bathroom welcome residents and visitors off the foyer of this new two-story home. The open-concept living and dining areas flow seamlessly from the kitchen, which features stainless steel appliances, making meal prep and entertaining easy. A covered patio extends the living space outdoors. Upstairs, the owner’s suite and three additional bedrooms are connected by a versatile loft, offering flexible space for work, play, or leisure. With Lennar’s signature Everything’s Included®, you’ll find stainless steel appliances, quartz countertops, shaker-style cabinetry and more—all at no extra cost. Buyer’s broker must be registered during the customer’s first interaction with a Lennar Associate to be eligible for compensation.
Offer Review
Will review offers when submitted
Builder
Lennar NW (Lennar)
Project
Lennar at Tehaleh Glacier Pointe
Listing source NWMLS MLS #
2438473
Listed by
Jeffrey Napalan, Lennar Sales Corp.
Katie Foster, Lennar Sales Corp.
Contact our
Bonney Lake
Real Estate Lead
TPG Realty | Keller Williams
Phone...
Bedroom & Bathroom Layout
SECOND
BDRM
BDRM
BDRM
BDRM
FULL
BATH
FULL
BATH
MAIN
BDRM
FULL
BATH
Property History
Feb 03, 2026
Price Reduction arrow_downward
$754,950
NWMLS #2438473
Dec 31, 2025
Price Reduction arrow_downward
$772,900
NWMLS #2438473
Dec 22, 2025
Price Reduction arrow_downward
$783,700
NWMLS #2438473
Dec 09, 2025
Price Reduction arrow_downward
$809,200
NWMLS #2438473
Nov 24, 2025
Price Reduction arrow_downward
$809,950
NWMLS #2438473
Nov 20, 2025
Price Reduction arrow_downward
$819,650
NWMLS #2438473
Nov 14, 2025
Price Reduction arrow_downward
$837,200
NWMLS #2438473
Nov 11, 2025
Price Reduction arrow_downward
$846,950
NWMLS #2438473
Nov 06, 2025
Price Reduction arrow_downward
$859,100
NWMLS #2438473
Oct 27, 2025
Price Reduction arrow_downward
$873,750
NWMLS #2438473
Sep 26, 2025
Listed
$899,950
NWMLS #2438473
More
Listing Details
  • Status
    For Sale
  • Price
    $754,950
  • Original Price
    $899,950
  • List Date
    September 26, 2025
  • Last Status Change
    September 26, 2025
  • Last Update
    February 20, 2026
  • Days on Market
    152 Days
  • Cumulative DOM
    22 Days
  • $/sqft (Total)
    $225/sqft
  • $/sqft (Finished)
    $225/sqft
  • Listing Source
  • MLS Number
    2438473
  • Listing Broker
    Jeffrey Napalan
  • Listing Office
    Lennar Sales Corp.
Monthly Payment Estimate
  • Principal and Interest
    $3,958 / month
  • HOA
    $88 / month
  • Property Taxes
    $952 / month
  • Homeowners Insurance
    $151 / month
  • TOTAL
    $5,149 / month

  • based on 20% down
    ($150,990)
  • and a
    6.85% Interest Rate
  • About:
    All calculations are estimates only and provided by Mainview LLC. Actual amounts will vary.
House Details
  • Sqft (Total)
    3,360 sqft
  • Sqft (Finished)
    3,360 sqft
  • Sqft (Unfinished)
    None
  • Property Type
    House
  • Sub Type
    2 Story
  • Bedrooms
    5 Bedrooms
  • Bathrooms
    3 Bathrooms
  • Lot
    4,500 sqft Lot
  • Lot Size Source
    Builder Plans
  • Lot #
    956
  • Project
    Lennar at Tehaleh Glacier Pointe
  • Total Stories
    2 stories
  • Basement
    None
  • Sqft Source
    Builder Plans
Property Tax Info
  • 2026 Property Taxes
    $11,429 / year
  • No Senior Exemption
Public Parcel Data & Maps
Schools
  • School District
    Orting
  • Elementary
    Buyer To Verify
  • Middle
    Buyer To Verify
  • High School
    Buyer To Verify
HOA
  • HOA Dues
    $88 / month
  • Fees Assessed
    Monthly
  • HOA Dues Include
    Common Area Maintenance
  • HOA Contact
    Tehaleh Owners Association
  • Management Contact
Community Features
  • Community Features
    CCRs
    Park
    Playground
Parking
  • Covered
    2-Car
  • Types
    Attached Garage
  • Has Garage
    Yes
  • Nbr of Assigned Spaces
    2
Construction
  • Year Built
    2025
  • New Construction
    Yes
  • Construction State
    Unspecified
  • Home Builder
    Lennar NW
Cooling
  • Includes
    90%+ High Efficiency
Heating
  • Includes
    90%+ High Efficiency
Interior
  • Flooring
    Ceramic Tile
    Laminate
    Carpet
  • Features
    Bath Off Primary
    Dining Room
    Loft
    Security System
    Walk-In Closet(s)
    Walk-In Pantry
Property
  • Lot Features
    Curbs
    Paved
    Sidewalk
  • Site Features
    Fenced-Fully
Appliances
  • Included
    Dishwasher(s)
    Disposal
    Microwave(s)
    Refrigerator(s)
    See Remarks
    Stove(s)/Range(s)
Terms
  • 3rd Party Approval Required)
    No
  • Bank Owned (REO)
    No
  • Complex FHA Availability
    Unspecified
  • Potential Terms
    Cash
    Conventional
    FHA
    VA Loan
Utilities
  • Energy
    Electric
  • Sewer
    Sewer Connected
  • Water Source
    Public
Additional Info
  • Waterfront
    No
  • Air Conditioning (A/C)
    Yes
  • Buyer Broker's Compensation
    2%
  • MLS Area #
    Area 109
  • Number of Photos
    29
  • Last Modification Time
    Friday, February 20, 2026 10:44 AM
  • System Listing ID
    5487140
Update Info
  • Price Reduction
    2026-02-03 13:20:36
  • First For Sale
    2025-09-26 08:45:09
Listing details based on information submitted to the MLS GRID as of Friday, February 20, 2026 10:44 AM. All data is obtained from various sources and may not have been verified by broker or MLS GRID. Supplied Open House Information is subject to change without notice. All information should be independently reviewed and verified for accuracy. Properties may or may not be listed by the office/agent presenting the information.
View
Sort

Sharing

 
For Sale 152 Days Online
$754,950     ▼ Price Reduction $17K
5 BR    3 BA    3,360 SQFT  
Offer Review: Anytime
NWMLS #2438473. Jeffrey Napalan, Lennar Sales Corp.
Map
 
Listing information is provided by the listing agent except as follows: BuilderB indicates that our system has grouped this listing under a home builder name that doesn't match the name provided by the listing broker. DevelopmentD indicates that our system has grouped this listing under a development name that doesn't match the name provided by the listing broker.