to
Reset
Houses
Townhouses
Condos
Land
Price
to
SQFT
to
Bdrms
to
Baths
to
Lot
to
Yr Built
to
Sold
Listed within...
Listed at least...
Offer Review
New Construction
Waterfront
Short-Sales
REO
Parking
to
Unit Flr
to
Unit Nbr
Listings
Neighborhoods
Complexes
Developments
Cities
Counties
Zip Codes
Neighborhood · Condo · Development
School District
Zip Code
City
County
Builder
Listing Numbers
Broker LAG
Boundary Lines
Labels
View
Sort
Pending Went pending in 58 days
$689,990
Originally $699,990
3 Bedrooms
2.5 Bathrooms
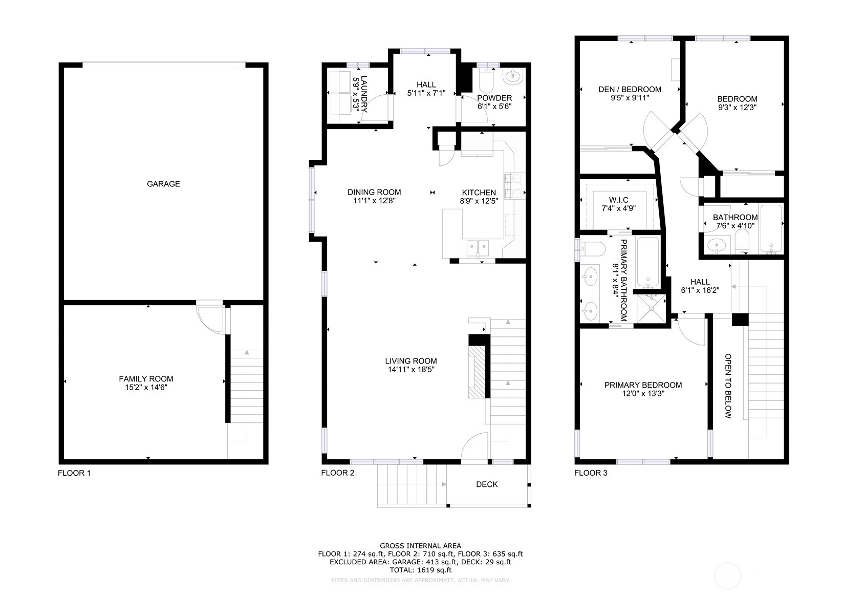
1,807 Sqft Townhome
Unit B
Floor 1
Built 2013
No assigned parking spaces
HOA Dues $300 / month
PENDING SALE. This listing went Pending on November 29, 2025

Some pending sales don't become final. Contact Us if this property is really important to you so we can check on it right now. The seller has reached an agreement with a buyer to sell this property. If things go as planned, the sale will become final in the near future. The buyer and seller have agreed on a price but it's not public until the sale closes. The last published list price was $689,990.
Sun-filled corner townhouse in coveted Greenbrooke! Every level is designed for comfort and flexibility—main floor living features open spaces, warm engineered hardwoods, a cozy gas fireplace, and a modern kitchen with granite counters, stainless appliances, and ample storage. Upstairs, the private primary suite offers a walk-in closet and en suite bath. The lower level bonus room is perfect for guests, office, or gym with easy access to the 2-car garage. Updates include new hot water tank (2021) and furnace & A/C (2022). Move-in ready and beautifully maintained—ideal commuter location near I-5, shopping & transit! Ask your agent about our lender incentive to lower your monthly payments!
Offer Review
No offer review date was specified
Project
Greenbrooke II
Listing source NWMLS MLS #
2440741
Listed by
Michelle Wallace, Keller Williams Realty PS
Contact our
Lynnwood
Real Estate Lead
Windermere Real Estate / North, Inc
Phone...
Bedroom & Bathroom Layout
SECOND
BDRM
BDRM
BDRM
FULL
BATH
FULL
BATH
MAIN
½
BATH
Property History
Dec 31, 2025
Sold
$677,000
NWMLS #2441234 Annualized 1.5% / yr
Dec 04, 2025
Went Pending
$689,990
NWMLS #2440741
Dec 04, 2025
Went Pending
$689,990
Nov 29, 2025
Went Pending Inspection
$689,990
NWMLS #2440741
Nov 29, 2025
Went Pending Inspection
$689,990
Oct 27, 2025
Price Reduction arrow_downward
$689,990
Oct 03, 2025
Listed
$699,990
Oct 27, 2025
Price Reduction arrow_downward
$689,990
NWMLS #2440741
Oct 02, 2025
Listed
$699,990
NWMLS #2440741
Jul 25, 2021
Sold
$635,000
More
Listing Details
  • Status
    Pending
  • Last Listed Price
    $689,990
  • Original Price
    $699,990
  • List Date
    October 2, 2025
  • Last Status Change
    December 5, 2025
  • Last Update
    December 5, 2025
  • Days on Market
    91 Days
  • Cumulative DOM
    58 Days
  • Pending Date
    November 29, 2025
  • Days to go Pending
    58
  • $/sqft (Total)
    $382/sqft
  • $/sqft (Finished)
    $382/sqft
  • Listing Source
  • MLS Number
    2440741
  • Listing Broker
    Michelle Wallace
  • Listing Office
    Keller Williams Realty PS
Monthly Payment Estimate
  • Principal and Interest
    $3,617 / month
  • HOA
    $300 / month
  • Property Taxes
    $412 / month
  • Homeowners Insurance
    $139 / month
  • TOTAL
    $4,468 / month

  • based on 20% down
    ($137,998)
  • and a
    6.85% Interest Rate
  • About:
    All calculations are estimates only and provided by Mainview LLC. Actual amounts will vary.
Condo Details
  • Unit #
    B
  • Unit Floor
    1
  • Sqft (Total)
    1,807 sqft
  • Sqft (Finished)
    Unspecified
  • Sqft (Unfinished)
    None
  • Property Type
    Townhome
  • Sub Type
    Townhouse
  • Bedrooms
    3 Bedrooms
  • Bathrooms
    2.5 Bathrooms
  • Lot
    1,394 sqft Lot
  • Lot Size Source
    Unspecified
  • Project
    Greenbrooke II
  • Total Stories
    Unspecified
  • Sqft Source
    Realist
Property Tax Info
  • 2025 Property Taxes
    $4,938 / year
  • No Senior Exemption
Public Parcel Data & Maps
Schools
  • School District
    Mukilteo
  • Elementary
    Lake Stickney Elem
  • Middle
    Voyager Mid
  • High School
    Mariner High
HOA
  • HOA Dues
    $300 / month
  • Fees Assessed
    Monthly
  • HOA Dues Include
    Common Area Maintenance
    Road Maintenance
    Snow Removal
  • Pets Allowed
    Yes
  • HOA Contact
    Agnybyte LLC 425-747-0146
  • Management Contact
Community Features
  • Community Features
    High Speed Int Avail
Building
  • Name
    Greenbrooke II
  • Units in Complex
    74
  • Units in Building
    2
  • Stories in Building
    3
Parking
  • Covered
    2-Car
  • Types
    Individual Garage
  • Has Garage
    Yes
  • Nbr of Assigned Spaces
    Unspecified
  • Parking Space Info
    Unspecified
Views
  • Territorial
Construction
  • Year Built
    2013
  • Home Builder
    Unspecified
Cooling
  • Includes
    Central A/C
Heating
  • Includes
    Forced Air
Interior
  • Flooring
    Engineered Hardwood
    Vinyl
    Carpet
  • Features
    Cooking-Gas
    Dryer-Electric
    End Unit
    Fireplace
    Insulated Windows
    Primary Bathroom
    Vaulted Ceiling(s)
    Walk-In Closet(s)
    Washer
    Water Heater
Property
  • Lot Features
    Corner Lot
    Curbs
    Paved
    Sidewalk
Appliances
  • Included
    Dishwasher(s)
    Dryer(s)
    Microwave(s)
    Refrigerator(s)
    Stove(s)/Range(s)
    Washer(s)
Terms
  • 3rd Party Approval Required)
    No
  • Bank Owned (REO)
    No
  • Complex FHA Availability
    Unspecified
  • Potential Terms
    Cash Out
    Conventional
    VA Loan
Utilities
  • Energy
    Electric
    Natural Gas
Additional Info
  • Waterfront
    No
  • Air Conditioning (A/C)
    Yes
  • Buyer Broker's Compensation
    2.5%
  • MLS Area #
    Area 740
  • Number of Photos
    39
  • Last Modification Time
    Thursday, December 4, 2025 5:03 PM
  • System Listing ID
    5489114
Update Info
  • Pending Or Ctg
    2025-12-04 17:06:48
  • Price Reduction
    2025-10-27 19:12:03
  • First For Sale
    2025-10-02 14:44:48
Listing details based on information submitted to the MLS GRID as of Thursday, December 4, 2025 5:03 PM. All data is obtained from various sources and may not have been verified by broker or MLS GRID. Supplied Open House Information is subject to change without notice. All information should be independently reviewed and verified for accuracy. Properties may or may not be listed by the office/agent presenting the information.
View
Sort

Sharing

 
Pending November 29, 2025
$689,990  
3 BR    2.5 BA    1,807 SQFT  
NWMLS #2440741. Michelle Wallace, Keller Williams Realty PS
Map
 
Listing information is provided by the listing agent except as follows: BuilderB indicates that our system has grouped this listing under a home builder name that doesn't match the name provided by the listing broker. DevelopmentD indicates that our system has grouped this listing under a development name that doesn't match the name provided by the listing broker.