to
Reset
Houses
Townhouses
Condos
Land
Price
to
SQFT
to
Bdrms
to
Baths
to
Lot
to
Yr Built
to
Sold
Listed within...
Listed at least...
Offer Review
New Construction
Waterfront
Short-Sales
REO
Parking
to
Unit Flr
to
Unit Nbr
Listings
Neighborhoods
Complexes
Developments
Cities
Counties
Zip Codes
Neighborhood · Condo · Development
School District
Zip Code
City
County
Builder
Listing Numbers
Broker LAG
Boundary Lines
Labels
View
Sort
Sold Closed December 31, 2025
$677,000
Originally $699,990
3 Bedrooms
2.5 Bathrooms
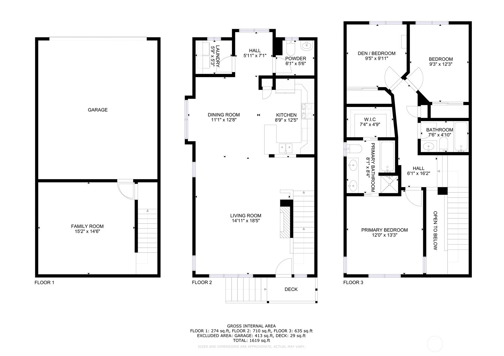
1,807 Sqft Townhome
Unit B
Built 2013
1,394 Sqft Lot
2-Car Garage
HOA Dues $300 / month
SALE HISTORY
List price was $699,990
The price was later changed to $689,990.
It took 58 days to go pending.
Then 32 days to close at $677,000
Closed at $375/SQFT.
Sun-filled corner townhouse in coveted Greenbrooke! Every level is designed for comfort and flexibility—main floor living features open spaces, warm engineered hardwoods, a cozy gas fireplace, and a modern kitchen with granite counters, stainless appliances, and ample storage. Upstairs, the private primary suite offers a walk-in closet and en suite bath. The lower level bonus room is perfect for guests, office, or gym with easy access to the 2-car garage. Updates include new hot water tank (2021) and furnace & A/C (2022). Move-in ready and beautifully maintained—ideal commuter location near I-5, shopping & transit! Ask your agent about our lender incentive to lower your monthly payments!
Offer Review
No offer review date was specified
Listing source NWMLS MLS #
2441234
Listed by
Michelle Wallace, Keller Williams Realty PS
Buyer's broker
Katie Hemming, Every Door Real Estate
Contact our
Lynnwood
Real Estate Lead
Windermere Real Estate / North, Inc
Phone...
Bedroom & Bathroom Layout
SECOND
BDRM
BDRM
BDRM
FULL
BATH
FULL
BATH
MAIN
½
BATH
LOWER
Property History
Dec 31, 2025
Sold
$677,000
NWMLS #2441234 Annualized 1.5% / yr
Dec 04, 2025
Went Pending
$689,990
Dec 04, 2025
Went Pending
$689,990
NWMLS #2441234
Nov 29, 2025
Went Pending Inspection
$689,990
Nov 29, 2025
Went Pending Inspection
$689,990
NWMLS #2441234
Oct 27, 2025
Price Reduction arrow_downward
$689,990
NWMLS #2441234
Oct 03, 2025
Listed
$699,990
NWMLS #2441234
Oct 27, 2025
Price Reduction arrow_downward
$689,990
Oct 02, 2025
Listed
$699,990
Jul 25, 2021
Sold
$635,000
More
Listing Details
  • Sale Price
    $677,000
  • Closing Date
    December 31, 2025
  • Last List Price
    $689,990
  • Original Price
    $699,990
  • List Date
    October 2, 2025
  • Pending Date
    November 29, 2025
  • Days to go Pending
    58 days
  • $/sqft (Total)
    $375/sqft
  • $/sqft (Finished)
    $375/sqft
  • Listing Source
  • MLS Number
    2441234
  • Listing Broker
    Michelle Wallace
  • Listing Office
    Keller Williams Realty PS
  • Buyer's Broker
    Katie Hemming
  • Buyer Broker's Firm
    Every Door Real Estate
Monthly Payment Estimate
  • Principal and Interest
    $3,549 / month
  • HOA
    $300 / month
  • Property Taxes
    $412 / month
  • Homeowners Insurance
    $137 / month
  • TOTAL
    $4,398 / month

  • based on 20% down
    ($135,400)
  • and a
    6.85% Interest Rate
  • About:
    All calculations are estimates only and provided by Mainview LLC. Actual amounts will vary.
Townhouse Details
  • Unit #
    B
  • Unit Floor
    Unspecified
  • Sqft (Total)
    1,807 sqft
  • Sqft (Finished)
    1,807 sqft
  • Sqft (Unfinished)
    None
  • Property Type
    Townhome
  • Sub Type
    Townhouse
  • Bedrooms
    3 Bedrooms
  • Bathrooms
    2.5 Bathrooms
  • Lot
    1,394 sqft Lot
  • Lot Size Source
    Realist
  • Lot #
    Unspecified
  • Project
    Greenbrooke II
  • Total Stories
    Unspecified
  • Basement
    Finished
  • Sqft Source
    Realist
Property Tax Info
  • 2025 Property Taxes
    $4,938 / year
  • No Senior Exemption
Public Parcel Data & Maps
Schools
  • School District
    Mukilteo
  • Elementary
    Lake Stickney Elem
  • Middle
    Voyager Mid
  • High School
    Mariner High
HOA
  • HOA Dues
    $300 / month
  • Fees Assessed
    Monthly
  • HOA Dues Include
    Common Area Maintenance
    Road Maintenance
    Snow Removal
  • HOA Contact
    Unspecified
  • Management Contact
    Unspecified
Community Features
  • Community Features
    CCRs
    Park
Building
  • Name
    Greenbrooke II
  • Units in Complex
    Unspecified
  • Units in Building
    Unspecified
  • Stories in Building
    Unspecified
Parking
  • Covered
    2-Car
  • Types
    Detached Garage
  • Has Garage
    Yes
  • Nbr of Assigned Spaces
    2
Views
  • Territorial
Construction
  • Year Built
    2013
  • Home Builder
    Unspecified
Cooling
  • Includes
    Central A/C
Heating
  • Includes
    Forced Air
Interior
  • Flooring
    Engineered Hardwood
    Vinyl
    Carpet
  • Features
    Fireplace
    Water Heater
Property
  • Lot Features
    Corner Lot
    Curbs
    Paved
    Sidewalk
  • Site Features
    Deck
    Fenced-Fully
Appliances
  • Included
    Dishwasher(s)
    Dryer(s)
    Microwave(s)
    Refrigerator(s)
    Stove(s)/Range(s)
    Washer(s)
Terms
  • Bank Owned (REO)
    No
Utilities
  • Energy
    Electric
    Natural Gas
  • Sewer
    Sewer Connected
  • Water Source
    Public
Additional Info
  • Waterfront
    No
  • Air Conditioning (A/C)
    Yes
  • Buyer Broker's Compensation
    2.5%
  • MLS Area #
    Area 740
  • Number of Photos
    39
  • Last Modification Time
    Wednesday, December 31, 2025 2:33 PM
  • System Listing ID
    5489508
Update Info
  • Closed
    2025-12-31 14:48:43
  • Pending Or Ctg
    2025-12-04 17:06:48
  • Price Reduction
    2025-10-27 19:12:03
  • First For Sale
    2025-10-03 11:09:57
Listing details based on information submitted to the MLS GRID as of Wednesday, December 31, 2025 2:33 PM. All data is obtained from various sources and may not have been verified by broker or MLS GRID. Supplied Open House Information is subject to change without notice. All information should be independently reviewed and verified for accuracy. Properties may or may not be listed by the office/agent presenting the information.
View
Sort

Sharing

 
Sold December 31, 2025
$677,000   $689,990
3 BR    2.5 BA    1,807 SQFT  
NWMLS #2441234. Michelle Wallace, Keller Williams Realty PS
Map
 
Listing information is provided by the listing agent except as follows: BuilderB indicates that our system has grouped this listing under a home builder name that doesn't match the name provided by the listing broker. DevelopmentD indicates that our system has grouped this listing under a development name that doesn't match the name provided by the listing broker.