to
Reset
Houses
Townhouses
Condos
Land
Price
to
SQFT
to
Bdrms
to
Baths
to
Lot
to
Yr Built
to
Sold
Listed within...
Listed at least...
Offer Review
New Construction
Waterfront
Short-Sales
REO
Parking
to
Unit Flr
to
Unit Nbr
Listings
Neighborhoods
Complexes
Developments
Cities
Counties
Zip Codes
Neighborhood · Condo · Development
School District
Zip Code
City
County
Builder
Listing Numbers
Broker LAG
Boundary Lines
Labels
View
Sort
Pending Went pending in 58 days
$760,000
Originally $819,950
4 Bedrooms
2.5 Bathrooms
2,350 Sqft House
New Construction
Built 2025
3,600 Sqft Lot
2-Car Garage
HOA Dues $162 / month
PENDING SALE. This listing went Pending on February 14, 2026

Some pending sales don't become final. Contact Us if this property is really important to you so we can check on it right now. The seller has reached an agreement with a buyer to sell this property. If things go as planned, the sale will become final in the near future. The buyer and seller have agreed on a price but it's not public until the sale closes. The last published list price was $760,000.
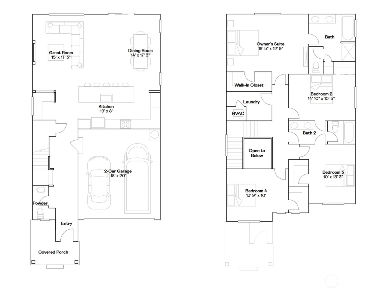
Welcome to the Hickory II on corner homesite 2107 at Ten Trails Mountain View, a vibrant Lennar community. Live at Ten Trails to enjoy an active lifestyle with trails and parks, plus future conveniences like dining, shopping, and entertainment close to home. Explore open-concept living among the kitchen, dining area, and Great Room, with a convenient tech nook just off the main living space. Upstairs hosts four spacious bedrooms, including a luxurious owner’s suite. With Lennar’s signature Everything’s Included®, enjoy new stainless steel appliances, quartz countertops, and shaker-style cabinetry and more—all at no extra cost. Buyer’s broker must be registered during the customer’s first interaction with a Lennar Associate to be eligible for compensation.
Offer Review
No offer review date was specified
Builder
Project
Lennar at Ten Trails Mountain View
Listing source NWMLS MLS #
2462894
Listed by
Paul G. Foster, Lennar Sales Corp.
Contact our
Black Diamond
Real Estate Lead
TPG Realty | Keller Williams
Phone...
Bedroom & Bathroom Layout
SECOND
BDRM
BDRM
BDRM
BDRM
FULL
BATH
FULL
BATH
MAIN
½
BATH
Property History
Feb 14, 2026
Went Pending
$760,000
NWMLS #2462894
Dec 29, 2025
Price Reduction arrow_downward
$760,000
NWMLS #2462894
Dec 18, 2025
Listed
$819,950
NWMLS #2462894
More
Listing Details
  • Status
    Pending
  • Last Listed Price
    $760,000
  • Original Price
    $819,950
  • List Date
    December 18, 2025
  • Last Status Change
    February 14, 2026
  • Last Update
    February 14, 2026
  • Days on Market
    70 Days
  • Cumulative DOM
    58 Days
  • Pending Date
    February 14, 2026
  • Days to go Pending
    58
  • $/sqft (Total)
    $323/sqft
  • $/sqft (Finished)
    $323/sqft
  • Listing Source
  • MLS Number
    2462894
  • Listing Broker
    Paul G. Foster
  • Listing Office
    Lennar Sales Corp.
Monthly Payment Estimate
  • Principal and Interest
    $3,984 / month
  • HOA
    $162 / month
  • Property Taxes
    / month
  • Homeowners Insurance
    $152 / month
  • TOTAL
    $4,298 / month

  • based on 20% down
    ($152,000)
  • and a
    6.85% Interest Rate
  • About:
    All calculations are estimates only and provided by Mainview LLC. Actual amounts will vary.
House Details
  • Sqft (Total)
    2,350 sqft
  • Sqft (Finished)
    2,350 sqft
  • Sqft (Unfinished)
    None
  • Property Type
    House
  • Sub Type
    2 Story
  • Bedrooms
    4 Bedrooms
  • Bathrooms
    2.5 Bathrooms
  • Lot
    3,600 sqft Lot
  • Lot Size Source
    Plot Plan
  • Lot #
    2107
  • Project
    Lennar at Ten Trails Mountain View
  • Total Stories
    2 stories
  • Basement
    None
  • Sqft Source
    Builder Floorplan
Property Tax Info
  • Property Taxes
    Unspecified
  • No Senior Exemption
Public Parcel Data & Maps
Schools
  • School District
    Enumclaw
  • Elementary
    Black Diamond Elem
  • Middle
    Thunder Mtn Mid
  • High School
    Enumclaw Snr High
HOA
  • HOA Dues
    $162 / month
  • Fees Assessed
    Monthly
  • HOA Dues Include
    Internet
  • HOA Contact
    Unspecified
  • Management Contact
Community Features
  • Community Features
    Athletic Court
    CCRs
    Park
    Playground
    Trail(s)
Parking
  • Covered
    2-Car
  • Types
    Driveway
    Attached Garage
  • Has Garage
    Yes
  • Nbr of Assigned Spaces
    2
Construction
  • Year Built
    2025
  • New Construction
    Yes
  • Construction State
    Unspecified
  • Home Builder
    Lennar
Cooling
  • Includes
    Forced Air
    Heat Pump
Heating
  • Includes
    90%+ High Efficiency
    Forced Air
    Heat Pump
Interior
  • Flooring
    Ceramic Tile
    Laminate
    Vinyl
    Vinyl Plank
    Carpet
  • Features
    Bath Off Primary
    Dbl Pane/Storm Window
    Dining Room
    Fireplace
    Walk-In Closet(s)
    Water Heater
Property
  • Lot Features
    Paved
    Sidewalk
  • Site Features
    Athletic Court
Appliances
  • Included
    Dishwasher(s)
    Disposal
    Double Oven
    Microwave(s)
    Refrigerator(s)
    Stove(s)/Range(s)
Terms
  • 3rd Party Approval Required)
    No
  • Bank Owned (REO)
    No
  • Complex FHA Availability
    Unspecified
  • Potential Terms
    Cash
    Conventional
    FHA
    USDA Loan
    VA Loan
Utilities
  • Energy
    Electric
  • Sewer
    Sewer Connected
  • Water Source
    Public
Additional Info
  • Waterfront
    No
  • Air Conditioning (A/C)
    Yes
  • Buyer Broker's Compensation
    2%
  • MLS Area #
    Area 320
  • Number of Photos
    23
  • Last Modification Time
    Saturday, February 14, 2026 1:12 PM
  • System Listing ID
    5506085
Update Info
  • Pending Or Ctg
    2026-02-14 13:17:49
  • Price Reduction
    2025-12-29 19:09:02
  • First For Sale
    2025-12-18 15:15:10
Listing details based on information submitted to the MLS GRID as of Saturday, February 14, 2026 1:12 PM. All data is obtained from various sources and may not have been verified by broker or MLS GRID. Supplied Open House Information is subject to change without notice. All information should be independently reviewed and verified for accuracy. Properties may or may not be listed by the office/agent presenting the information.
View
Sort

Sharing

 
Pending February 14, 2026
$760,000  
4 BR    2.5 BA    2,350 SQFT  
NWMLS #2462894. Paul G. Foster, Lennar Sales Corp.
Map
 
Listing information is provided by the listing agent except as follows: BuilderB indicates that our system has grouped this listing under a home builder name that doesn't match the name provided by the listing broker. DevelopmentD indicates that our system has grouped this listing under a development name that doesn't match the name provided by the listing broker.