to
Reset
Houses
Townhouses
Condos
Land
Price
to
SQFT
to
Bdrms
to
Baths
to
Lot
to
Yr Built
to
Sold
Listed within...
Listed at least...
Offer Review
New Construction
Waterfront
Short-Sales
REO
Parking
to
Unit Flr
to
Unit Nbr
Listings
Neighborhoods
Complexes
Developments
Cities
Counties
Zip Codes
Neighborhood · Condo · Development
School District
Zip Code
City
County
Builder
Listing Numbers
Broker LAG
Boundary Lines
Labels
View
Sort
For Sale 54 Days Online
$749,950
Originally $819,950
4 Bedrooms
2.5 Bathrooms
2,540 Sqft House
New Construction
Built 2026
3,687 Sqft Lot
2-Car Garage
HOA Dues $232 / month
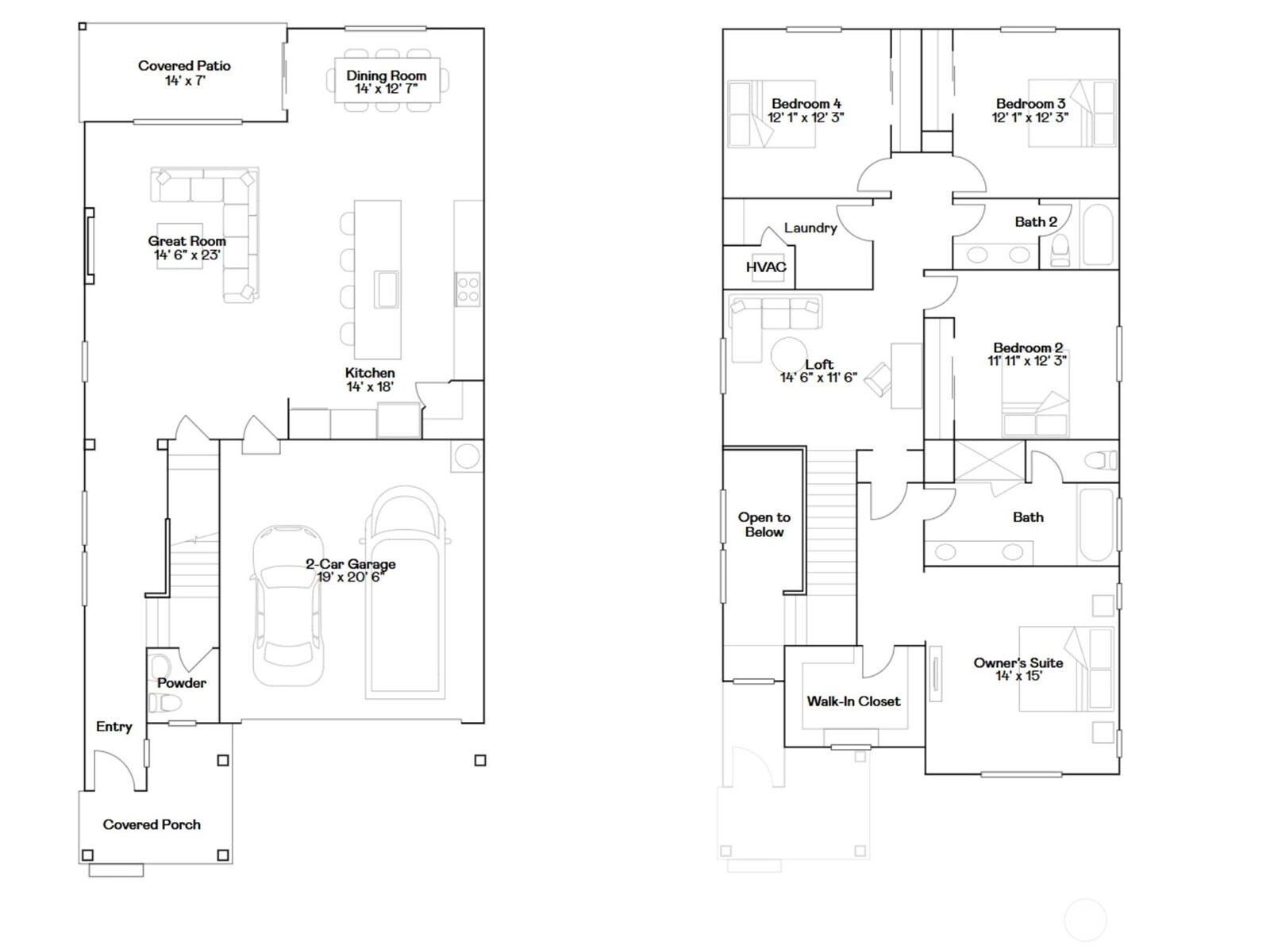
Welcome to the move-in ready Magnolia II on homesite 2103 at Ten Trails Mountain View, a Lennar community. Live at Ten Trails to enjoy an active lifestyle with trails and parks, plus future conveniences like dining, shopping, and entertainment close to home. Explore open-concept living among the kitchen, dining area, and great room with sliding glass doors to the covered patio. Upstairs hosts a loft and four bedrooms, including a luxurious owner’s suite. With Lennar’s signature Everything’s Included®, enjoy new stainless steel appliances, quartz countertops, shaker-style cabinetry and more—all at no extra cost. Buyer’s broker must be registered during the customer’s first interaction with a Lennar Associate to be eligible for compensation.
Offer Review
Will review offers when submitted
Builder
Project
Lennar at Ten Trails Mountain View
Listing source NWMLS MLS #
2481561
Listed by
Paul G. Foster, Lennar Sales Corp.
Eugene Shevchuk, Lennar Sales Corp.
Contact our
Black Diamond
Real Estate Lead
TPG Realty | Keller Williams
Phone...
Bedroom & Bathroom Layout
SECOND
BDRM
BDRM
BDRM
BDRM
FULL
BATH
FULL
BATH
MAIN
½
BATH
Property History
Apr 07, 2026
Price Reduction arrow_downward
$749,950
NWMLS #2481561
Mar 31, 2026
Price Reduction arrow_downward
$774,950
NWMLS #2481561
Mar 30, 2026
Price Reduction arrow_downward
$809,500
NWMLS #2481561
Mar 27, 2026
Price Reduction arrow_downward
$809,950
NWMLS #2481561
Feb 17, 2026
Listed
$819,950
NWMLS #2481561
More
Listing Details
  • Status
    For Sale
  • Price
    $749,950
  • Original Price
    $819,950
  • List Date
    February 17, 2026
  • Last Status Change
    February 17, 2026
  • Last Update
    April 9, 2026
  • Days on Market
    54 Days
  • Cumulative DOM
    54 Days
  • $/sqft (Total)
    $295/sqft
  • $/sqft (Finished)
    $295/sqft
  • Listing Source
  • MLS Number
    2481561
  • Listing Broker
    Paul G. Foster
  • Listing Office
    Lennar Sales Corp.
Monthly Payment Estimate
  • Principal and Interest
    $3,931 / month
  • HOA
    $232 / month
  • Property Taxes
    $519 / month
  • Homeowners Insurance
    $150 / month
  • TOTAL
    $4,832 / month

  • based on 20% down
    ($149,990)
  • and a
    6.85% Interest Rate
  • About:
    All calculations are estimates only and provided by Mainview LLC. Actual amounts will vary.
House Details
  • Sqft (Total)
    2,540 sqft
  • Sqft (Finished)
    2,540 sqft
  • Sqft (Unfinished)
    None
  • Property Type
    House
  • Sub Type
    2 Story
  • Bedrooms
    4 Bedrooms
  • Bathrooms
    2.5 Bathrooms
  • Lot
    3,687 sqft Lot
  • Lot Size Source
    Plot Plan
  • Lot #
    2103
  • Project
    Lennar at Ten Trails Mountain View
  • Total Stories
    2 stories
  • Basement
    None
  • Sqft Source
    Builder Floorplan
Property Tax Info
  • 2026 Property Taxes
    $6,225 / year
  • No Senior Exemption
Public Parcel Data & Maps
Schools
  • School District
    Enumclaw
  • Elementary
    Black Diamond Elem
  • Middle
    Thunder Mtn Mid
  • High School
    Enumclaw Snr High
HOA
  • HOA Dues
    $232 / month
  • Fees Assessed
    Monthly
  • HOA Dues Include
    Internet
  • HOA Contact
    Unspecified
  • Management Contact
Community Features
  • Community Features
    Athletic Court
    CCRs
    Park
    Playground
    Trail(s)
Parking
  • Covered
    2-Car
  • Types
    Driveway
    Attached Garage
  • Has Garage
    Yes
  • Nbr of Assigned Spaces
    2
Construction
  • Year Built
    2026
  • New Construction
    Yes
  • Construction State
    Unspecified
  • Home Builder
    Lennar
Cooling
  • Includes
    Forced Air
    Heat Pump
Heating
  • Includes
    90%+ High Efficiency
    Forced Air
    Heat Pump
Interior
  • Flooring
    Ceramic Tile
    Laminate
    Vinyl
    Vinyl Plank
    Carpet
  • Features
    Bath Off Primary
    Dbl Pane/Storm Window
    Dining Room
    Fireplace
    Walk-In Closet(s)
    Water Heater
Property
  • Lot Features
    Paved
    Sidewalk
  • Site Features
    Athletic Court
Appliances
  • Included
    Dishwasher
    Disposal
    Double Oven
    Microwave
    Refrigerator
    Stove(s)/Range(s)
Terms
  • 3rd Party Approval Required)
    No
  • Bank Owned (REO)
    No
  • Complex FHA Availability
    Unspecified
  • Potential Terms
    Cash
    Conventional
    FHA
    USDA Loan
    VA Loan
Utilities
  • Energy
    Electric
  • Sewer
    Sewer Connected
  • Water Source
    Public
Additional Info
  • Waterfront
    No
  • Air Conditioning (A/C)
    Yes
  • Buyer Broker's Compensation
    2%
  • MLS Area #
    Area 320
  • Number of Photos
    19
  • Last Modification Time
    Thursday, April 9, 2026 8:57 AM
  • System Listing ID
    5519985
Update Info
  • Public Open Houses
    2026-04-08 17:12:32
  • Price Reduction
    2026-04-07 14:16:58
  • First For Sale
    2026-02-17 16:06:13
Listing details based on information submitted to the MLS GRID as of Thursday, April 9, 2026 8:57 AM. All data is obtained from various sources and may not have been verified by broker or MLS GRID. Supplied Open House Information is subject to change without notice. All information should be independently reviewed and verified for accuracy. Properties may or may not be listed by the office/agent presenting the information.
View
Sort

Sharing

 
For Sale 54 Days Online
$749,950  
4 BR    2.5 BA    2,540 SQFT  
Offer Review: Anytime
NWMLS #2481561. Paul G. Foster, Lennar Sales Corp.
Map
 
Listing information is provided by the listing agent except as follows: BuilderB indicates that our system has grouped this listing under a home builder name that doesn't match the name provided by the listing broker. DevelopmentD indicates that our system has grouped this listing under a development name that doesn't match the name provided by the listing broker.