to
Reset
Houses
Townhouses
Condos
Land
Price
to
SQFT
to
Bdrms
to
Baths
to
Lot
to
Yr Built
to
Sold
Listed within...
Listed at least...
Offer Review
New Construction
Waterfront
Short-Sales
REO
Parking
to
Unit Flr
to
Unit Nbr
Listings
Neighborhoods
Complexes
Developments
Cities
Counties
Zip Codes
Neighborhood · Condo · Development
School District
Zip Code
City
County
Builder
Listing Numbers
Broker LAG
Boundary Lines
Labels
View
Sort
For Sale 33 Days Online
$709,950
Originally $724,950
5 Bedrooms
3 Bathrooms
3,360 Sqft House
New Construction
Built 2026
5,221 Sqft Lot
2-Car Garage
HOA Dues $93 / month
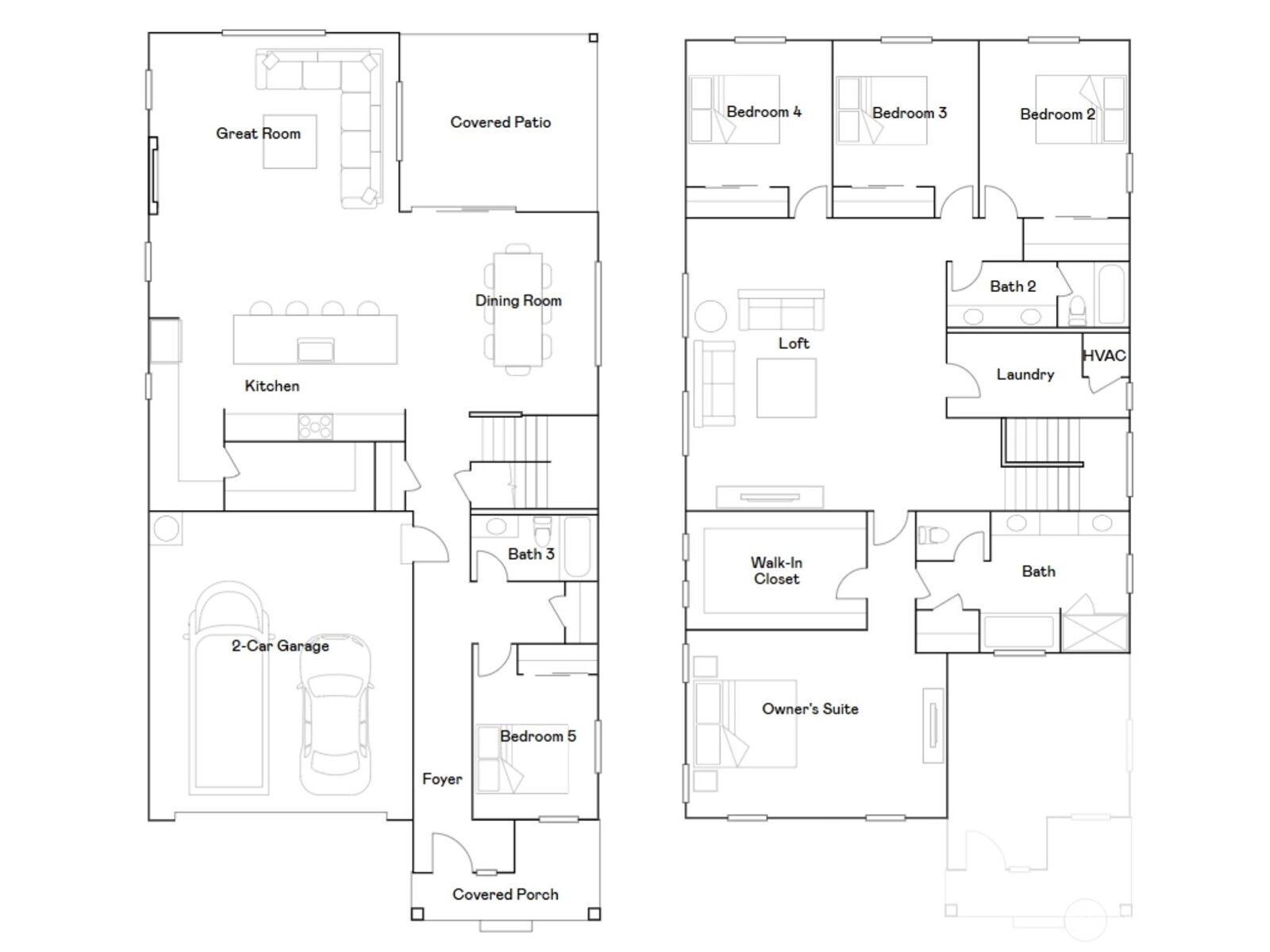
Welcome to the Lilac at Tehaleh Glacier Pointe by Lennar! Tucked away on a quiet cul-de-sac street, this homesite offers added privacy with no neighbors behind and serene views of the surrounding wooded preserve. The home features an open-concept living and dining areas flow seamlessly from the kitchen with sliding glass doors leading you to a covered patio that extends the living space outdoors. A main floor bedroom adds convenience with an adjacent bathroom offering a great space for guests. Upstairs, the owner’s suite and three additional bedrooms are connected by a versatile loft, offering flexible space for work, play, or leisure. With Lennar’s signature Everything’s Included®, you’ll find stainless steel appliances, quartz countertops, shaker-style cabinetry and more—all at no extra cost. Buyer’s broker must be registered during the customer’s first interaction with a Lennar Associate to be eligible for compensation.
Offer Review
Will review offers when submitted
Builder
Project
Lennar at Tehaleh Glacier Pointe
Listing source NWMLS MLS #
2490573
Listed by
Katie Foster, Lennar Sales Corp.
Jeffrey Napalan, Lennar Sales Corp.
Contact our
Bonney Lake
Real Estate Lead
TPG Realty | Keller Williams
Phone...
Bedroom & Bathroom Layout
SECOND
BDRM
BDRM
BDRM
BDRM
FULL
BATH
FULL
BATH
MAIN
BDRM
FULL
BATH
Property History
Apr 07, 2026
Price Reduction arrow_downward
$709,950
NWMLS #2490573
Mar 10, 2026
Listed
$724,950
NWMLS #2490573
More
Listing Details
  • Status
    For Sale
  • Price
    $709,950
  • Original Price
    $724,950
  • List Date
    March 10, 2026
  • Last Status Change
    March 10, 2026
  • Last Update
    April 8, 2026
  • Days on Market
    33 Days
  • Cumulative DOM
    33 Days
  • $/sqft (Total)
    $211/sqft
  • $/sqft (Finished)
    $211/sqft
  • Listing Source
  • MLS Number
    2490573
  • Listing Broker
    Katie Foster
  • Listing Office
    Lennar Sales Corp.
Monthly Payment Estimate
  • Principal and Interest
    $3,722 / month
  • HOA
    $93 / month
  • Property Taxes
    $550 / month
  • Homeowners Insurance
    $143 / month
  • TOTAL
    $4,508 / month

  • based on 20% down
    ($141,990)
  • and a
    6.85% Interest Rate
  • About:
    All calculations are estimates only and provided by Mainview LLC. Actual amounts will vary.
House Details
  • Sqft (Total)
    3,360 sqft
  • Sqft (Finished)
    3,360 sqft
  • Sqft (Unfinished)
    None
  • Property Type
    House
  • Sub Type
    2 Story
  • Bedrooms
    5 Bedrooms
  • Bathrooms
    3 Bathrooms
  • Lot
    5,221 sqft Lot
  • Lot Size Source
    Builder Plans
  • Lot #
    939
  • Project
    Lennar at Tehaleh Glacier Pointe
  • Total Stories
    2 stories
  • Basement
    None
  • Sqft Source
    Builder Plans
Property Tax Info
  • 2026 Property Taxes
    $6,597 / year
  • No Senior Exemption
Public Parcel Data & Maps
Schools
  • School District
    Orting
  • Elementary
    Buyer To Verify
  • Middle
    Buyer To Verify
  • High School
    Buyer To Verify
HOA
  • HOA Dues
    $93 / month
  • Fees Assessed
    Monthly
  • HOA Dues Include
    Common Area Maintenance
  • HOA Contact
    Tehaleh Owners Association
  • Management Contact
Community Features
  • Community Features
    CCRs
    Park
    Playground
Parking
  • Covered
    2-Car
  • Types
    Attached Garage
  • Has Garage
    Yes
  • Nbr of Assigned Spaces
    2
Construction
  • Year Built
    2026
  • New Construction
    Yes
  • Construction State
    Unspecified
  • Home Builder
    Lennar
Cooling
  • Includes
    90%+ High Efficiency
Heating
  • Includes
    90%+ High Efficiency
Interior
  • Flooring
    Ceramic Tile
    Laminate
    Carpet
  • Features
    Bath Off Primary
    Dining Room
    Fireplace
    Loft
    Pantry
    Security System
    Walk-In Closet(s)
Property
  • Lot Features
    Curbs
    Paved
    Sidewalk
  • Site Features
    Fenced-Fully
Appliances
  • Included
    Dishwasher
    Disposal
    Microwave
    Refrigerator
    See Remarks
    Stove(s)/Range(s)
Terms
  • 3rd Party Approval Required)
    No
  • Bank Owned (REO)
    No
  • Complex FHA Availability
    Unspecified
  • Potential Terms
    Cash
    Conventional
    FHA
    VA Loan
Utilities
  • Energy
    Electric
  • Sewer
    Sewer Connected
  • Water Source
    Public
Additional Info
  • Waterfront
    No
  • Air Conditioning (A/C)
    Yes
  • Buyer Broker's Compensation
    2%
  • MLS Area #
    Area 109
  • Number of Photos
    27
  • Last Modification Time
    Wednesday, April 8, 2026 9:12 AM
  • System Listing ID
    5527370
Update Info
  • Price Reduction
    2026-04-07 14:16:59
  • First For Sale
    2026-03-10 12:32:16
Listing details based on information submitted to the MLS GRID as of Wednesday, April 8, 2026 9:12 AM. All data is obtained from various sources and may not have been verified by broker or MLS GRID. Supplied Open House Information is subject to change without notice. All information should be independently reviewed and verified for accuracy. Properties may or may not be listed by the office/agent presenting the information.
View
Sort

Sharing

 
For Sale 33 Days Online
$709,950     ▼ Price Reduction $15K
5 BR    3 BA    3,360 SQFT  
Offer Review: Anytime
NWMLS #2490573. Katie Foster, Lennar Sales Corp.
Map
 
Listing information is provided by the listing agent except as follows: BuilderB indicates that our system has grouped this listing under a home builder name that doesn't match the name provided by the listing broker. DevelopmentD indicates that our system has grouped this listing under a development name that doesn't match the name provided by the listing broker.